09.23

Новая Боровая
Личный кабинет
Войти с помощью соцсетей:
Для сброса пароля свяжитесь с менеджером по электронной почте: zenevich@t-s.by
Восстановление пароля
Придумайте новый пароль
Подтвердите новый пароль
Пароль минимум 7 символов. Буквы A-z (мин. одна заглавная) и цифры 0-9.

Объект недели: Двухуровневый лофт на Гастелло, 8. Шестиметровые потолки, панорама на парк и терраса под облаками

27.04.2026
Вы поднимаетесь на десятый этаж. За дверью - не квартира, а пространство. С высотой, потолков, от которой может перехватить дыхание: шесть метров. Свет из панорамных окон льётся сверху, снизу - со всехсторон. Два уровня соединены лестницей, которая сама по себе арт-объект. Внизу - кухня и гостиная, место для жизни и встреч. Наверху - спальня под самой крышей, с видом на один из самых больших парков Минска. У такой квартиры нет аналогов. Она уникальна. Это не 50 квадратных стандартных метров. Это 50 квадратов, превратившихся в 250 кубов воздуха и свободы. Но главное - это вид на парк и озеро, который открывается из панорамных окон, и тишина, которую вы не найдёте в другом месте в центре города.

Что это за пространство

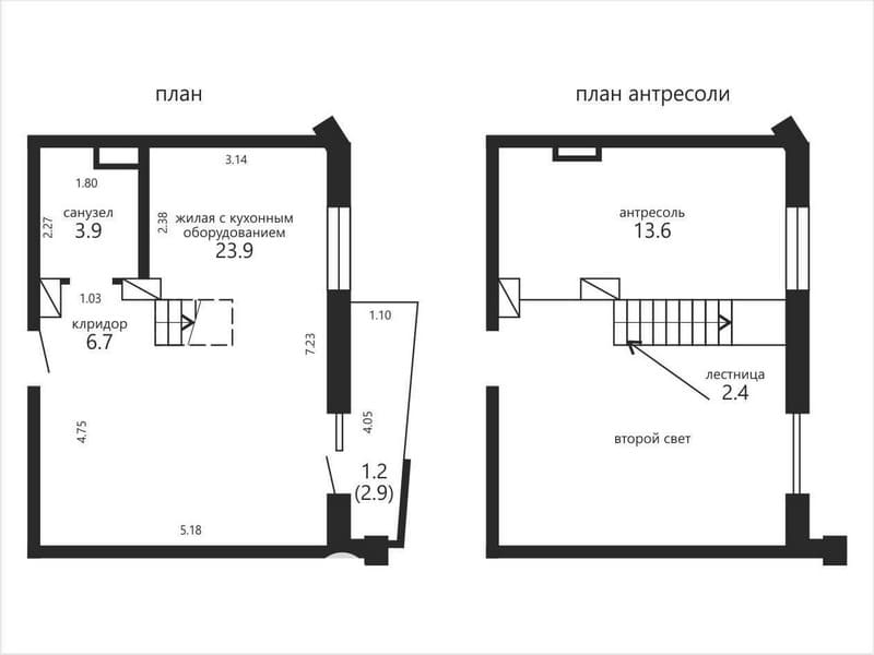
Лофт на верхнем этаже ЖК «Гастелло Резиденс», дом 2024 года. 10 этаж из 12. Высота потолков - 6 метров (второй свет). Два полноценных уровня.

Лофт на Гастелло 8. Планировка

Нижний этаж - около 30 квадратов. Здесь кухонная зона с выводами под всю технику (посудомойка, стиральная, сушильная, измельчитель - всё уже есть). Гостиная-столовая, где можно принимать гостей, не заглядывая в спальню. Зона релакса с диваном, креслом и торшером - для чтения или просто любования закатом над парком.

На верхний уровень ведёт лестница, сделанная на заказ. Её форма и конструкция уникальны, она очень надёжна. Верхний уровень - открытая галерея около 20 квадратов. Там может быть спальня, кабинет, библиотека, творческая мастерская. Решать вам. Но главное - панорамное окно, через которое вы видите парк круглые сутки: ложась спать вечером или просыпаясь утром.

Лофт на Гастелло 8. Лестница

Терраса - 6 квадратных метров уютного пространства на свежем воздухе. Утром - кофе, вечером - бокал хорошего вина и звезды. Достаточно для кресла, столика и цветов.

Почему это не просто квартира, а редкий актив

Шестиметровые потолки - это не просто «высоко». Это ощущение, что вы живёте в доме с характером собора или студии художника. В Минске такие квартиры можно пересчитать по пальцам.

Цена, которая удивит. Многие думают, что лофт с шестиметровыми потолками стоит заоблачных денег. Но цена за метр - 10 272 белорусских рубля - сопоставима с ценой квартиры в обычном панельном доме в том же районе. Разница - в 3 метрах высоты и панорамном виде на парк. Вам даже не нужно доплачивать за воздух и статус.

Отделка, которая не потребует переделки: ламинат Joss Beaumon, дизайнерские радиаторы Arbonia, сантехника Grohe, душевая Rea, электрика Legrand, двери с итальянскими замками. Стены покрыты декоративной штукатуркой - не обоями, которые через два года пойдут волнами. Десять сценариев освещения позволяют менять настроение комнаты одним нажатием: от яркого света для работы до приглушённого для киновечера.

Инженерия премиум-класса. У вас своя система отопления и электроснабжения (новый вводной кабель, свой щит). Резервный бойлер. Вы не зависите от соседей и общедомовых перебоев. Индивидуальные выводы для стиральной, сушильной, посудомоечной машин и даже измельчителя отходов - всё уже продумано до вас.

Лофт на Гастелло 8. Главное фото

Локация и ликвидность. Дом стоит у одного из самых больших парков Минска. Озеро, велодорожки, пробежки, йога на траве - всё почти сразу за порогом. При этом три огромных торговых центра, кофейни, салоны - в шаговой доступности. До Немиги - 15 минут. Это центр, но без шума и суеты.

Инвестиционная привлекательность (немного цифр). По данным нашего агентства, спрос на двухуровневые квартиры с панорамным остеклением в 3 раза превышает предложение. Срок сдачи в аренду - не более 2–4 недель. Потенциальная доходность - до 10% годовых (при покупке за свои). Такие объекты не теряют в цене, а растут. Через 3–5 лет перепродажа может принести 20–30% сверху.

Дом и территория

«Гастелло Резиденс» - формально, комфорт-класс, но с премиальным наполнением. Монолит, фиброфасады, система охраны, видеонаблюдение, закрытый двор. Соседи поддерживают порядок через общедомовой чат.

Для владельцев электромобилей - два машиноместа с личными зарядными станциями. Прямой спуск на лифте с этажа. Вы всегда приезжаете к заряженному авто. Это будущее, которое уже здесь.

Кому это подойдёт

Этот лофт создан для тех, кто не ищет стандартных решений.

  • Для предпринимателя, дизайнера, архитектора, музыканта - пространство, которое вдохновляет на творчество и не ограничивает рамками.
  • Для топ-менеджера или владельца бизнеса - статус, приватность и нестандартный вкус, подчёркнутый самим жильём.
  • Для удалённого профессионала, IT-специалиста - два уровня позволяют разделить рабочее и личное пространство: кабинет наверху, отдых внизу.
  • Для пары или семьи с одним ребёнком - жизнь в центре событий, но выше городской суеты.
  • Для инвестора - актив, который сложно повторить, а значит, его ценность будет только расти.

Условия покупки

Цена: 518 733 белорусских рубля. Цена за метр: 10 272 рубля - сопоставима с обычной квартирой, но преимущества - несравнимы.

Чистая продажа от собственника. Поможем выгодно продать вашу текущую квартиру для переезда сюда. Консультация по кредиту - подберём оптимальную программу.

Получить более подробную консультацию можно в Центральном офисе: Минск, ул. Кирова, 8, Бизнес-центр Kiroff, 2 этаж.

Экспертное мнение

За долгие годы работы я видела тысячи квартир. Лофтов с шестиметровыми потолками в Минске - единицы. Это больше чем недвижимость, это арт-объект. Ошибка многих покупателей - считать квадратные метры. Здесь важнее кубатура и атмосфера. 250 кубов воздуха меняют психологию восприятия: вы перестаёте чувствовать стены, вы живёте в пространстве.

Отделка - не «для галочки», а премиум-бренды, которые служат десятилетиями. Инженерные коммуникации - индивидуальные, редкость для многоквартирного дома. Локация у самого большого парка Минска добавляет баллы к качеству жизни.

Цена за метр (около 10 270 рублей) адекватна уникальности объекта. Более того, она ниже, чем в некоторых новых ЖК бизнес-класса с обычными потолками. За эти деньги вы получаете не метры, а стиль жизни. Такие лоты обычно не залёживаются - их покупают те, кто понимает: “квадраты” можно купить везде, а свободу и вид - только здесь».

Приглашение

Приезжайте. Поднимитесь на десятый этаж. Встаньте под шестиметровым потолком. Посмотрите в панорамное окно на парк. Поднимитесь по лестнице на второй уровень. Оцените высоту, свет и тишину. Вдохните.

Только личный визит даст ощущение этого места. Уникальные объекты такого уровня продаются без торга. Первый, кто приедет и увидит, скорее всего, его и купит. Не откладывайте на завтра - один звонок отделяет вас от обладания пространством, которое в Минске можно пересчитать по пальцам.

Звоните +375 44 539 71 94 - ваш персональный гид по этому пространству.

P.S. Собственникам недвижимости

Хотите, чтобы ваш уникальный объект был представлен с таким же вниманием и уважением? Обращайтесь. Мы умеем продавать выгодно любые объекты. И да, успейте получить 3% скидки и прочие бонусы до конца акции (осталось всего три дня!). А через три недели вступят в силу новые, более высокие государственные тарифы - успейте заключить договор на старых условиях!

Подробнее о квартире

Хочу посмотреть эту квартиру
*
*
Соглашаюсь с обработкой персональных данных для получения консультации

Возврат к списку
Узнавайте актуальные новости - подписывайтесь
ЗАКАЗАТЬ
ЗВОНОК:
00
:
15
:
00
Да
Нет