+375 29 688-22-00
Войти
Личный кабинет
Вход
Регистрация
Войти с помощью соцсетей:
Используйте вашу учетную запись Google для входа на сайт.
Используйте вашу учетную запись Odnoklassniki.ru для входа на сайт.
Введите email
Введите пароль
Забыли пароль?
Войти
Введите email
Придумайте пароль для регистрации
Повторите пароль
Пароль минимум 7 символов. Буквы A-z (мин. одна заглавная) и цифры 0-9.
Соглашаюсь с обработкой
персональных данных
для получения консультации
Необходимо принять политику конфиденциальности
Зарегистрироваться
Для сброса пароля свяжитесь с менеджером по электронной почте: zenevich@t-s.by
Восстановление пароля
Придумайте новый пароль
Подтвердите новый пароль
Пароль минимум 7 символов. Буквы A-z (мин. одна заглавная) и цифры 0-9.
Отмена
Восстановить
новостройки
Новостройки Минска
Новостройки Беларуси
NEW "Узнай свою новостройку"
Застройщики
Программа "Переезжаем в новостройку"
Кредитный калькулятор
Советы покупателям
Классификация новостроек
Экскурсии по новостройкам
Квартиры
Однокомнатные
Двухкомнатные
Трехкомнатные
Четырехкомнатные
Недорогие
В центре
Пригород
Разместить объявление
С ремонтом
NEW Карта сделок
Калькулятор стоимости квартиры
коммерческая
База бизнес-центров
База встроенных помещений
Готовые бизнес-центры
Аренда встроенных помещений
Продажа встроенных помещений
Классификация бизнес-центров
Аналитика рынка коммерческой недвижимости
Офисы в аренду
Офисы на продажу
Офисы у метро
Офисы от 100м2
новости
акции
кредиты
услуги
аналитика
рейтинги
Скидки на новостройки, бонусы
Готовые новостройки
Доступное жильё
Квартиры у метро
Сдать квартиру в аренду
Главная
База встроенной недвижимости
Аренда коммерческой недвижимости в Минске и пригороде
Все
Аренда
Продажа
Тип объекта
Медицина
Офис
Производство
Склад
Сфера услуг
Торговые
м
2
eur/м
2
eur/м
2
руб./м
2
Все
с отделкой
1 этаж
Отд. вход
Выбрано:
0
Показать
В сравнении
0
Аренда
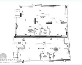
Аренда помещения Минск, Игоря Лученка, 4
БЦ "IT-Max" (корпус А)
, 1 этаж , отдельный вход
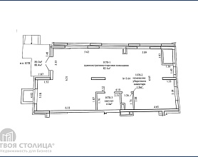
Сдается встроенное помещение в г.Минск, ул.Лученка, 4, административно-торгового назначения. Площадь 27.7 кв.м, 1 этаж,...
27.7м²
Свободного назначения
от 98 руб./м² в мес.
Аренда
Аренда помещения Минск, Жореса Алфёрова, 22
БЦ "IT-Max" (корпус А)
, 1 этаж , отдельный вход
Аренда встроенное помещение в г.Минске,ул. Жореса Алфёрова 22. Встроенное помещение (торгового назначения) площадью 68...
68.3м²
Свободного назначения
от 49.0 руб./м² в мес.
Аренда
Аренда помещения Минск, Свердлова ул., 22
Ленина пл.
БЦ "IT-Max" (корпус А)
, 1 этаж , отдельный вход
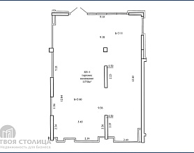
помещение в г.Минске, ул.Кирова, 3, торгового назначения. Площадь (231.3) кв.м, (1) этаж жилого дома, отдельный вход, 3...
231.3м²
Свободного назначения
от 55 руб./м² в мес.
Аренда
Аренда помещения Минск, Асаналиева ул., 44
БЦ "IT-Max" (корпус А)
, 1 этаж , отдельный вход
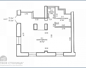
Аренда торгового помещения в г. Минск, ул. Асаналиева, 44. Недалеко находятся остановки общественного транспорта, торгов...
80м²
Свободного назначения
от 70 руб./м² в мес.
Аренда
Аренда помещения Минск, Тимирязева ул., 130
БЦ "IT-Max" (корпус А)
, 1 этаж , отдельный вход
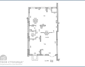
Сдается встроенное помещение в г.Минск, Тимирязева ул., 130. Площадь 78,8 кв.м, 1-ый этаж, отдельный вход, 1 комната, то...
78.8м²
Свободного назначения
от 53.0 руб./м² в мес.
Аренда
Аренда помещения Минск, Янковского ул., 44
БЦ "IT-Max" (корпус А)
, 1 этаж , отдельный вход
сдается встроенное помещение в г. Минске, ул. Янковского 44, торгового назначения. Площадь (64.3) кв.м, (1) этаж, отд...
64.3м²
Свободного назначения
от 60 руб./м² в мес.
Аренда
Аренда помещения Минск, Белградская, 5
БЦ "IT-Max" (корпус А)
, 1 этаж , отдельный вход
Сдается встроенное помещение в г. Минске, ул. Белградская 5, торгового назначения. Площадь (78.2) кв.м, (1) этаж, отде...
78.2м²
Свободного назначения
от 66.0 руб./м² в мес.
Аренда
Аренда помещения Минск, Жореса Алфёрова, 22
БЦ "IT-Max" (корпус А)
, 16 этаж
Сдается встроенное помещение в г.Минск, Алферова, 22. Недалеко находятся . Встроенное помещение () площадью 0м.кв., нахо...
66.8м²
Свободного назначения
от 33.0 руб./м² в мес.
Аренда
Аренда помещения Минск, Жореса Алфёрова, 22
БЦ "IT-Max" (корпус А)
, 16 этаж
Сдается встроенное помещение в г.Минск, Алферова, 22. Недалеко находятся . Встроенное помещение () площадью 0м.кв., нахо...
66.8м²
Свободного назначения
от 33.0 руб./м² в мес.
Аренда
Аренда помещения Минск, Дзержинского просп., 9
Грушевка
БЦ "IT-Max" (корпус А)
, 1 этаж , отдельный вход
Сдается встроенное помещение в г.Минск, Дзержинского просп., 9. Недалеко находятся станция метро Грушевка. Встроенное по...
76.1м²
Свободного назначения
от 47 руб./м² в мес.
Аренда
Аренда помещения Минск, Маркса ул. , 20
Октябрьская
БЦ "IT-Max" (корпус А)
, -1 этаж , отдельный вход
Сдается встроенное помещение в г.Минске, ул.К.Маркса, 20, торгового назначения. Площадь 63 кв.м, цокольный этаж, отдель...
63м²
Свободного назначения
от 79.0 руб./м² в мес.
Аренда
Аренда помещения Минск, Быховская ул., 10
Ковальская слобода
БЦ "IT-Max" (корпус А)
, 1 этаж , отдельный вход
Сдается встроенное помещение в г.Минск, ул.Быховская, 10 административно-торгового назначения. Площадь 80,2 кв.м, 1 эт...
80.2м²
Свободного назначения
от 39.0 руб./м² в мес.
Аренда
Аренда помещения Минск, Жореса Алфёрова ул., 8
БЦ "IT-Max" (корпус А)
, 1 этаж , отдельный вход
Сдается встроенное помещение г.Минске, ул. Жореса Алферова 8, административно-торговое назначение. Площадь 108.9 кв.м...
108.9м²
Свободного назначения
от 42.0 руб./м² в мес.
Аренда
Аренда помещения Минск, Игоря Лученка, 15
БЦ "IT-Max" (корпус А)
, 1 этаж , отдельный вход
Сдается встроенное помещение в г.Минск, ул. И. Лученка, 15. Многофункциональное помещение площадью 147,2 м.кв., находитс...
147.2м²
Свободного назначения
от 115.0 руб./м² в мес.
Аренда
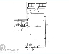
Аренда помещения Минск, Каховская ул., 17
БЦ "IT-Max" (корпус А)
, этаж , отдельный вход
Продается встроенное помещение в г., , . Недалеко находятся . Встроенное помещение () площадью 0м.кв., находится на эта...
126.3м²
Свободного назначения
от 26.0 руб./м² в мес.
Аренда
Аренда помещения Минск, Филимонова, 22
Московская
БЦ "IT-Max" (корпус А)
, 1 этаж , отдельный вход
Сдается встроенное помещение в г.Минск, ул. Филимонова, 22. Многофункциональное помещение площадью 132,3 м.кв., находитс...
132.3м²
Свободного назначения
от 56.0 руб./м² в мес.
Аренда
Аренда помещения Минск, Независимости просп., 28
Октябрьская
БЦ "IT-Max" (корпус А)
, 1 этаж , отдельный вход
Сдается встроенное помещение в г.Минск, пр.Независимости, 28, культурно-просветительного и (или) зрелищного назначения. ...
215.4м²
Свободного назначения
от 43.0 руб./м² в мес.
Аренда
Аренда помещения Минск, Мстиславца ул., 8
Восток
БЦ "IT-Max" (корпус А)
, этаж , отдельный вход
Сдается встроенное помещение в г.Минск, ул.Мстиславца 8, торговое назначение. Площадь (131,5) кв.м, (цокольный) этаж, о...
131.5м²
Свободного назначения
от 46.0 руб./м² в мес.
Аренда
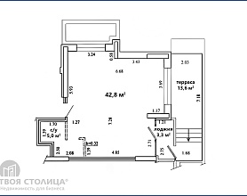
Аренда помещения Минск, Независимости просп., 58
Якуба Коласа пл.
БЦ "IT-Max" (корпус А)
, 4 этаж , отдельный вход
Сдается встроенное помещение в г.Минск, Независимости просп., 58. Недалеко находятся . Встроенное помещение () площадью ...
857м²
Свободного назначения
от 25 руб./м² в мес.
Аренда
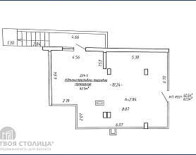
Аренда помещения Минск, Гурского ул., 44
Михалово
БЦ "IT-Max" (корпус А)
, 1 этаж , отдельный вход
Сдается торговое помещение в г.Минск, Гурского ул., 44. Аренда этажа площадью 949,1 кв.м, отдельный вход на стилобатную ...
949.1м²
Свободного назначения
от 36 руб./м² в мес.
Аренда
Аренда помещения Минск, Гурского ул., 44
Михалово
БЦ "IT-Max" (корпус А)
, 6 этаж , отдельный вход
Сдается встроенное помещение в г.Минск, Гурского ул., 44. Недалеко находятся станция метро Михалово. Встроенное офисное ...
1321.3м²
Свободного назначения
от 52.0 руб./м² в мес.
Аренда
Аренда помещения Минск, Мстиславца ул., 20
Восток
БЦ "IT-Max" (корпус А)
, этаж , отдельный вход
Сдается встроенное помещение в г.Минск, ул.Мстиславца, 20, административно-торгового назначения. Площадь (62.5) кв.м, ц...
62.5м²
Свободного назначения
от 48 руб./м² в мес.
Аренда
Аренда помещения Минск, Дзержинского просп., 19
Грушевка
БЦ "IT-Max" (корпус А)
, 1 этаж , отдельный вход
Сдается встроенное помещение в г. Минске, пр-т Дзержинского 19, медицинского и социально-бытового назначения. Площадь ...
125.5м²
Свободного назначения
от 76.0 руб./м² в мес.
Аренда
Аренда помещения Минск, Маяковского ул., 22
Ковальская слобода
БЦ "IT-Max" (корпус А)
, 1 этаж , отдельный вход
Сдается встроенное помещение в г.Минск, ул. Маяковского, 22/1. Торговое помещение площадью 121 м.кв., находится на перво...
121м²
Свободного назначения
от 31.0 руб./м² в мес.
Аренда
Аренда помещения Минск, Дзержинского просп., 19
Грушевка
БЦ "IT-Max" (корпус А)
, 1 этаж , отдельный вход
Сдается встроенное помещение в г. Минске, пр-т Дзержинского 19, медицинского и социально-бытового назначения. Площадь ...
125.5м²
Свободного назначения
от 76.0 руб./м² в мес.
Аренда
Аренда помещения Минск, Михаила Савицкого, 23
БЦ "IT-Max" (корпус А)
, 1 этаж , отдельный вход
Сдается встроенное помещение в г.Минске, ул.М.Савицкого, 23, административно-торгового назначения назначения. Площадь 9...
95.9м²
Свободного назначения
от 66.0 руб./м² в мес.
Аренда
Аренда помещения Минск, Михаила Савицкого, 23
БЦ "IT-Max" (корпус А)
, 1 этаж , отдельный вход
Сдается встроенное помещение в г.Минске, ул.М.Савицкого, 23, административно-торгового назначения назначения. Площадь 9...
94м²
Свободного назначения
от 66.0 руб./м² в мес.
Аренда
Аренда помещения Минск, Михаила Савицкого, 23
БЦ "IT-Max" (корпус А)
, 1 этаж , отдельный вход
Сдается встроенное помещение в г.Минске, ул.М.Савицкого, 23, административно-торгового назначения назначения. Площадь 8...
88.4м²
Свободного назначения
от 66.0 руб./м² в мес.
Аренда
Аренда помещения Минск, Дзержинского просп., 23
Грушевка
БЦ "IT-Max" (корпус А)
, 1 этаж , отдельный вход
Сдается изолированное встроенное помещение в г.Минск, Дзержинского просп., 23. Площадь блока составляет 180.4 кв.м., отд...
180.4м²
Свободного назначения
от 34.0 руб./м² в мес.
Аренда
Аренда помещения Минск, Михаила Савицкого, 23
БЦ "IT-Max" (корпус А)
, 1 этаж , отдельный вход
Сдается встроенное помещение в г.Минске, ул.М.Савицкого, 23, административно-торгового назначения назначения. Площадь 8...
182.4м²
Свободного назначения
от 66.0 руб./м² в мес.
Аренда
Аренда помещения Минск, Гурского ул., 44
Михалово
БЦ "IT-Max" (корпус А)
, 2 этаж , отдельный вход
Сдается встроенное помещение в г.Минск, Гурского ул., 44. Недалеко находятся станция метро Михалово. Кафе площадью 444.7...
444.7м²
Свободного назначения
от 36 руб./м² в мес.
Аренда
Аренда помещения Минск, Гурского ул., 44
Михалово
БЦ "IT-Max" (корпус А)
, 7 этаж , отдельный вход
Сдается встроенное помещение в г.Минск, Гурского ул., 44. Недалеко находятся станция метро Михалово. Встроенное помещени...
1319.6м²
Свободного назначения
от 36 руб./м² в мес.
1
2
След.
Объект недели: 3-этажный коттедж под офис в Лебяжьем на одного арендат...
13.05.2026
коммерческая
Дизайнерский ремонт, парковка на 15+ мест и ставка ниже рынка.
Новые возможности: “Ипотека-Микс” - специальная программа покупки ново...
13.05.2026
новостройки
МТБанк помогает покупать квартиры в Зеленой гавани
Беларусбанк теперь кредитует и строительство: новые условия кредита «Н...
13.05.2026
новостройки
Разбираем, что это меняет
Не как у всех: зачем «Зеленая гавань» вернула изолированную кухню и го...
12.05.2026
новостройки
Отдельные кухни возвращаются!
Для обеспечения удобства пользователей сайта
используются cookies
Принять
Отклонить
Хотите получить предложение дешевле? Узнать больше?
Специалист prometr.by перезвонит за 15 секунд
00
:
15
:
00
Да
Нет
Соглашаюсь с обработкой
персональных данных
для получения консультации
Отправить
Узнать подробнее по
Ваше имя*
Телефон*
Например: 375-33XXXXXXX
Количество комнат
Соглашаюсь с обработкой
персональных данных
для получения консультации
Получить консультацию
Новостройка в избранном
Добавляя объекты в «Избранное», вы не пропустите изменение цены в интересных вам предложениях. Авторизируйтесь для дополнительных функций избранного.
Войти
Зарегистрироваться