09.23

право (7).png
Личный кабинет
Войти с помощью соцсетей:
Для сброса пароля свяжитесь с менеджером по электронной почте: zenevich@t-s.by
Восстановление пароля
Придумайте новый пароль
Подтвердите новый пароль
Пароль минимум 7 символов. Буквы A-z (мин. одна заглавная) и цифры 0-9.
eye
0 просмотр
Обновлен 20.05.2026

Продажа 2-комнатной квартиры, 50.5м2, 10 этаж

506 110.0 BYN
ориентировочная цена
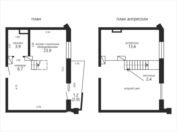
Описание квартиры:
50.5 м2 - общая площадь
37.5 м2 - жилая площадь
51.7 м2 - площадь по СНБ
8.7 м2 - кухня
Количество комнат: 2
Ремонт: Евро
Санузел: Совмещенный
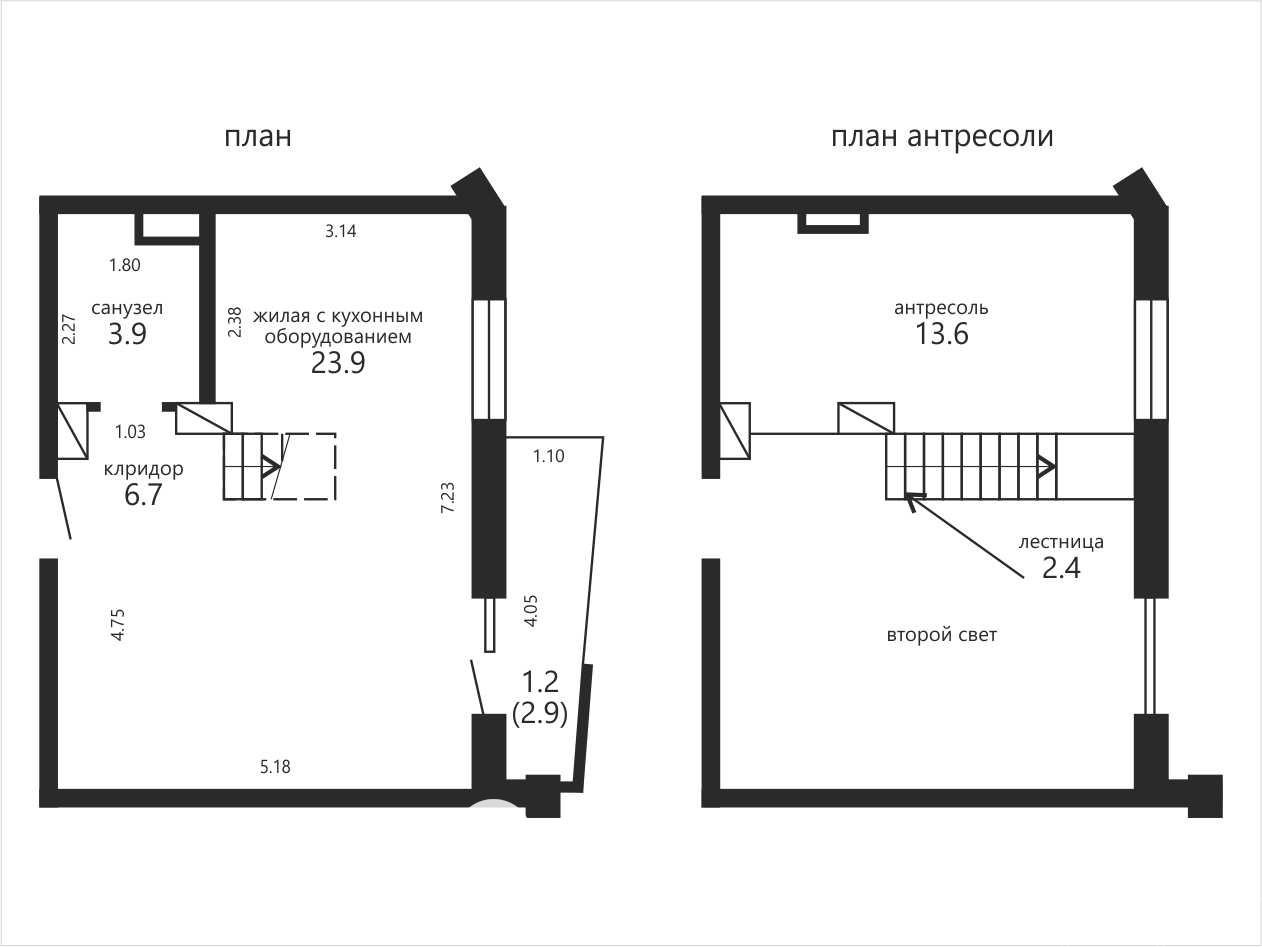
10 из 12 этажей
Высота потолков: 5.7 м
Балкон или лоджия: 1
О доме:
Тип дома: Современная непанель
Год постройки: 2024
Стены: Монолит

Два уровня свободы для самых смелых, динамичных и творческих.

Представляем пентхаус на верхнем этаже в ЖК комфорт-класса "Гастелло резиденс". Роскошный лофт: потолки 6 метров, первый уровень для зоны релакса и кухни, наверху спальня или кабинет со вторым светом. Панорамное остекление открывает вид на город и самый большой парк в Минске. Это не 52 квадрата, это 250 кубов свободы. Выше только звезды и твои амбиции!

Квартира готова для финальной меблировки. Отделка экстра-класса: ламинат Joss Beaumon, дизайнерские радиаторы Arbonia, сантехника представлена брендом Grohe, душевая кабина Rea, электрика Legrand, премиальные двери с итальянскими замками, кондиционер Electrolux, вытяжка Franke, стены - декоративная штукатурка. 10 сценариев освещения! Лестница между этажами - на заказ, оригинальной формы и очень надежная.

В квартире премиум инженерные коммуникации: индивидуальная система отопления и электроснабжения (новый вводной кабель, свой распределительный щит), резервный электрический бойлер, заложены выводы для всей техники (сушильная, стиральная, посудомоечная машины, измельчитель и т.д).

Дом комфорт-класса: монолит, фиброфасады, система охраны, видеонаблюдение, общедомовой чат, закрытый двор. Супер инфраструктура - озеро и парк (пробежки, йога, романтика!), 3 огромных ТЦ, много продуктовых и кофейни, салоны, до Немиги 15 минут.

Большой потенциал для аренды или счастливой жизни.

Твой масштаб? Звони и приходи убедиться!

Возможна покупка двух парковочных мест с личной электрозарядной станцией, прямой спуск на лифте.

Поможем выгодно продать вашу квартиру для покупки этой!

Консультация по кредиту!

Расширенные консультации по покупке, продаже и обмену вашей недвижимости можно получить в офисе Центральном , расположенном в Бизнес-центре Kiroff по адресу Минск, улица Кирова, 8. 2 этаж.

Возможно купить в лизинг
logo_bank
Выгодная альтернатива кредитам при покупке квартир на вторичном рынке и готовых новостроек.
Узнайте больше у консультантов Prometr.by
Получить бесплатную консультацию.png
от 13%
60,120 месяцев
Площадь: 50.5 / 37.5 / 8.7 м2
Этаж: 10 из 12 этаж
Цена:
506 110.0 BYN
ориентировочная цена,
Продажа
Агентство :
ООО "ТВОЯ СТОЛИЦА"
УНП: 101136973
Лицензия: № 02240/15 от 17.02.2005 г
Договор: 365/13 от 03.04.2026
Похожие предложения
Фото объекта 1
Агентство
с ремонтом
eye 76
28.04.2026
Минск, Минская область, Нововиленская ул.., 51
42.3 / 29.8 / 1 м2
6 этаж
Фото объекта 1
Агентство
с ремонтом
eye 134
27.02.2026
Минск, Минская область, Скрыганова ул.., 4, Д, метро Молодежная
77.6 / 42.7 / 13.9 м2
20 этаж
Фото объекта 1
Собственник
с ремонтом
eye 416
09.07.2025
Минск, Минская область, Сурганова ул.., 27
79 / 42 / 12.10 м2
8 этаж
Купить квартиру в Минске в новостройке: список предложений
Добавить объявление