09.23

Новая Боровая
Личный кабинет
Войти с помощью соцсетей:
Для сброса пароля свяжитесь с менеджером по электронной почте: zenevich@t-s.by
Восстановление пароля
Придумайте новый пароль
Подтвердите новый пароль
Пароль минимум 7 символов. Буквы A-z (мин. одна заглавная) и цифры 0-9.

Последний шанс купить квартиру в «Дубравинском»

30.11.2023

Если вы хотите купить квартиру в новостройке и не ждать ключи годами — обратите внимание на ЖК «Дубравинский». Сдача домов планируется до конца 2023 года.

дубр обл 690х471-100.jpg

В продаже осталось всего 9 квартир, которые отлично подойдут для семей с детьми или тем, кому просто нужно много свободного пространства. Жилой комплекс строится в уже готовом для жизни районе, рядом есть все необходимое для жизни: школы, детские сады, остановки общественного транспорта, магазины и торговый центр.

В продаже остались 2-х и 3-х комнатные квартиры от 50,17 м² и стоимостью от 1230 USD за м².

Какие квартиры доступны к покупке?

b1d08b82e3508ff8fb16a1df9f4c1697 (1).jpeg

Количество комнат: 2;

Площадь: 50.81 м²;

Стоимость: 65 545 USD (1290 USD за м²)*;

Окна выходят на юго-восток.47204932460ee5820c722c77a4f54fc1 (1).jpeg


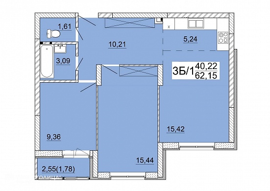
Количество комнат: 3;

Площадь: 62.15 м²;

Стоимость: 80 174 USD (1290 USD за м²)*;

Окна выходят на юго-восток.

Смотреть все предложения в жилом комплексе «Дубравинский»

Во всех квартирах при сдаче будет выполнена стяжка пола и штукатурка стен от застройщика, установлены радиаторы отопления, розетки и выключатели.

Какие важные объекты инфраструктуры есть рядом с комплексом?

  • Остановки общественного транспорта — 2-10 минут;
  • Средняя школа №83 им. Жукова — 12 минут;
  • Детская поликлиника №12 — 17 минут;
  • ТК «Outleto» — 7 минут;
  • ТЦ «Глобо» — 18 минут;
  • Спортивный комплекс «Академия управления» — 14 минут;
  • Сквер им. Минина — 2 минуты;
  • Сквер им. Г. К. Жукова — 2 минуты.

Успейте купить одну из последних квартир в комплексе!
Звоните!

+375 17 336-77-30
+375 29 371-01-01

А главное, для вас наши услуги абсолютно бесплатны, комиссию оплачивает застройщик!

*Стоимость указана при 100% оплате по курсу НБ РБ

Получить консультацию
*
*
Соглашаюсь с обработкой персональных данных для получения консультации

Возврат к списку
Узнавайте актуальные новости - подписывайтесь
ЗАКАЗАТЬ
ЗВОНОК:
00
:
15
:
00
Да
Нет