Лимитированное предложение: Квартира с антресольным этажом и панорамным светом в малоэтажном доме, новогодняя акция минус 200 евро за квадрат.
Почему ТОП:
Предлагается формат жизни как в кинофильме, с видом на парковую зону в эксклюзивном доме напротив первого аэровокзала. Антресольный этаж с уютной лестницей и панорамными окнами, всего два малоэтажных дома в пешей доступности у метро.

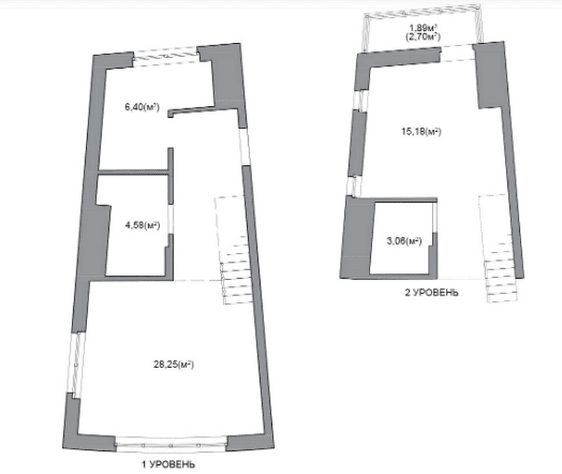
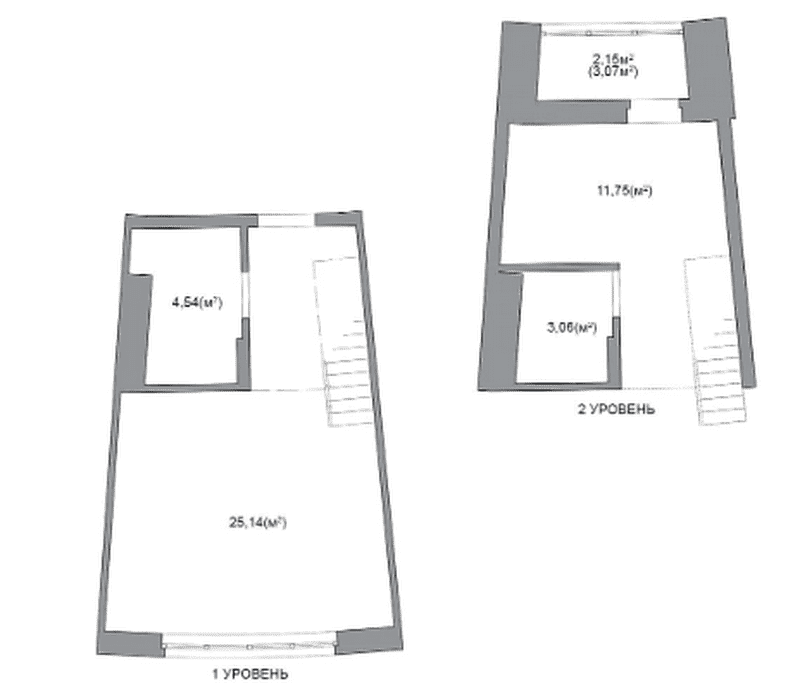
Параметры квартиры:
Фишка квартиры - панорамное окно высотой в 4,4 метра и шириной в 3 метра с видом на парк. Высота помещения составляет 5,1 метр. На второй уровень установлена деревянная лестница. Здесь можно уединиться в кабинете или спальне, второй уровень имеет выход на остекленный по всей высоте балкон. В квартире два санузла на каждом уровне.
Вы можете выбрать квартиру как с двумя жилыми комнатами, так и с тремя.
С двумя комнатами предлагаются квартиры площадью от 48 и 52 кв.м., новогодняя стоимость таких планировок составит от 113 250 евро в эквиваленте (* с учетом новогодней акции).
Также можно выбрать квартиру от 61 кв.м. с тремя жилыми комнатами стоимостью от 132000 евро в эквиваленте (* с учетом новогодней акции). Две жилых комнаты расположены на первом уровне, и одна на втором.


ТОП-локация:
Дом находится по улице Левина в квартале Хеппи Плэнет многофункционального комплекса “Минск Мир”.
Современные школы и детские сады с бассейнами и спортивными площадками, а также станция метро находятся в пешей доступности от дома.
Вы получаете не только уникальный формат квартиры, но и выгодную локацию в супер современном многофункциональном комплексе с жилой, коммерческой и деловой недвижимостью.
Описание дома:
Архитектурное решение жилого дома с панорамными окнами оформлено полудугой в 7 жилых этажей. На первом этаже находятся помещения под коммерцию с отдельным входом. В жилое здание организовано 2 входа с комфортным лобби, дом оснащен 2-умя лифтами. На каждом этаже находится 11 уникальных двухуровневых квартир.

Условия приобретения
Вы можете купить эту квартиру в кредит, в рассрочку или продать свою старую квартиру взамен. Вы можете воспользоваться специальными условиями от Застройщика и получить новогоднюю скидку в 200 евро за кв.м. при 100% оплате (акция действует по 30 декабря 2025 года). Выгодно продать свою старую квартиру и забронировать такую новостройку Вы можете с официальным представителем Застройщика “Твоя столицаконсалт”.
Хотите подробности?
Получите консультацию и персональный подбор квартиры по телефону
+375 29 694-76-24.
ОДО Твоя столицаконсалт,
УНП 190285638,
лицензия №02240/129 от 06.09.06г.,
договор на оказание риэлтерских услуг №449/6 от 04.09.2025г.