
Описание объекта:
Многофункциональное помещение рядом с центром столицы для проживания и/или ведения бизнеса стоимостью 43 189 евро. Площадь помещения составляет 29.62 кв.м.
Цена - 1520 евро/м2 в эквиваленте по курсу НБ РБ на день оплаты: это лучшая цена для малогабаритных квартир на рынке недвижимости в городе Минске.
Срок сдачи 2027 год.
В многофункциональном помещении можно зарегистрироваться как физическому, так и юридическому лицу, проживать или вести бизнес. Правовой статус объекта регулируется Указом Президента Республики Беларусь № 370 от 20.10.2020.
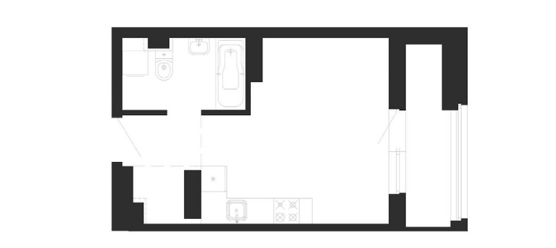
Планировка многофункционального помещения площадью 29.38 кв.м. в здании “Эверест”
Высота потолка 2,67м, планировкой предусмотрена ниша под гардеробную и лоджия с панорамным остеклением.
Описание здания
Многофункциональное помещение находится в 15-этажном здании “Эверест” с подземным паркингом и помещениями под коммерцию на первом этаже. Форма здания буквой ”П” повторяет очертания горы, а панорамное остекление делает фасад зеркальным. Респектабельный холл встретит посетителей стильным лобби со стойкой для консьержа.
Многофункциональные помещения для проживания или ведения бизнеса занимают все здание со 2 по 15 этаж. Окна многофункциональных помещений выходят как вовнутрь, так и наружу здания
План этажа многофункционального здания “Эверест”
Изображение: рендер многофункционального здания “Эверест”, вид сверху
Почему ТОП:
- Возможность регистрации в помещении физического и/или юридического лица.
- Возможность и вести бизнес, и/или проживать в одном объекте недвижимости.
- Расположение в масштабном жилом комплексе с деловым финансовым центром.
- Новые современные школы, детские сады, поликлиника в соседних кварталах.
- Длительная рассрочка до 4 лет.
Локация:
Улица Николы Теслы, 31 в ЖК “Минск Мир”. В пешей доступности метро Аэродромная, ТЦ АВИА Молл, Международный финансовый центр.
В чем отличие от обычной квартиры или офиса:
Многофункциональные бизнес-апартаменты предназначены для проживания и/или ведения бизнеса за счет особенного правового статуса помещения: в нем можно зарегистрировать юридическое лицо любой формы собственности и/или оформить регистрацию по месту жительства физического лица.
Не только многофункциональное помещение, но и сам
жилой комплекс Минск-Мир имеет особый статус. Вместе с наличием комфортной городской среды со всей социальной инфраструктурой, “Минск-Мир” станет крупным деловым и финансовым центром с льготным режимом ведения бизнеса.
Больше не нужно выбирать между покупкой квартиры и покупкой офиса: станьте первым, кто получит универсальный формат недвижимости в мегаполисе!
Хотите забронировать?
Обратитесь за персональным подбором по телефону
+375 29 694 76 24. Специалист по новостройкам подберет для вас оптимальный вариант.
ОДО Твоя столицаконсалт,
УНП 190285638,
лицензия №02240/129 от 06.09.06г.,
договор на оказание риэлтерских услуг №449/6 от 04.09.2025г.