Инвестору больше не нужно выбирать между покупкой квартиры или офиса, искать лучшее место для жизни и аренды. На рынке есть универсальные объекты, выбирая которые невозможно ошибиться.
Что это:
Бизнес-апартаменты это многофункциональное помещение, в котором можно жить и/или вести бизнес за счет предназначения здания и особенного правового статуса помещения. В нём можно зарегистрировать юридическое лицо любой формы собственности и вести бизнес и/или оформить регистрацию по месту жительства и проживать.
Это универсальная ликвидная недвижимость, которую можно оставить после себя наследникам.
Бизнес-апартаменты располагаются в многофункциональных зданиях комплекса
Минск-Мир - суперсовременного района недалеко от центра города.
Многофункциональные здания могут совмещать в себе элементы торгово-развлекательного, бизнес-центра и жилого дома. Кроме офисов, коммерческих, торговых помещений, в нем могут находится супермаркет, фуд-корт и гастрономические заведения, фитнес центр, боулинг или бассейн со СПА, а также бизнес-апартаменты для проживания или размещения в них офиса. В домах также запроектированы террасы и эксплуатируемые кровли для отдыха. В таком многофункциональном здании можно одновременно проживать, работать и отдыхать, оно становится точкой притяжения для большого количества людей.
Многофункциональные помещения изменят рынок аренды как жилой, так и коммерческой недвижимости, а может и концепцию комфорта проживания в большом городе. Вы можете стать одним из первых, кто будет жить и работать по-новому.
Преимущества многофункциональных помещений:

- Это возможность проживать, работать, развлекаться, отдыхать и покупать в одном месте.
- Расположение в современной городской среде с численностью жителей порядка 150 000 человек, а это экономически активные люди и семьи с детьми.
- Открытие международного финансово-делового центра привлечет в комплекс аудиторию деловых людей.
- Для гостей столицы аренда помещения в многофункциональном доме привлекательнее, чем в многоквартирном жилом доме за счет наличия торгово-развлекательных, спортивных и гастрономических заведений.
- Наличие в комплексе детских садов, школ и поликлиники делает комфортным проживание с детьми.
- Возможность регистрации в помещении физического и юридического лица, открытия бизнеса.
- Продаются без привязки к покупке машиноместа, даже большие площади.
- Гибкие условия приобретения: скидка за быструю оплату, длительная рассрочка до четырех лет.
Инвестиционная привлекательность
С начала 2025 года стоимость квадратного метра в многофункциональных бизнес-апартаментах уже выросла на 500 евро и стала сопоставима со стоимостью квадрата в жилой квартире-новостройке комфорт- класса.
Транспортная доступность
Рядом станции метро Аэродромная и Ковальская Слобода, все виды наземного транспорта, кроме трамвая. Постоянное наличие и большой выбор машиномест в паркингах рядом с домом.
Предложение:
Можно выбрать помещение со свободной планировкой от 30 до 130 кв.м с высотой потолка от 2,7 до 3 метров и совмещенным санузлом. У вас есть возможность приобрести как стандартные бизнес-апартаменты, так и двухуровневые, с выходом на террасу. На первых этажах зданий МФК предусмотрены рецепции.
Первые многофункциональные помещения будут сданы в эксплуатацию уже в сентябре 2026 года.
Варианты планировок
Минимальная площадь бизнес-апартаментов на сегодня составляет 32,88 кв.м. со стоимостью 1650 евро за кв.м.

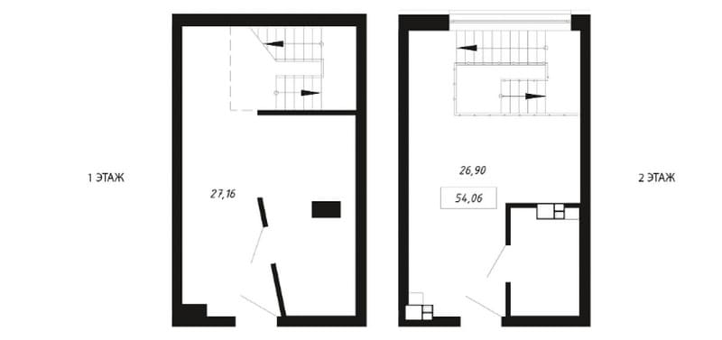
Планировка двухуровневых апартаментов с внутренней лестницей общей площадью 54, 06 кв.м, стоимость 1590 евро за кв.м. в эквиваленте. Готовность - 2027 год.
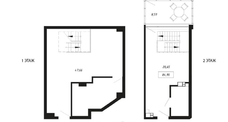
Двухэтажные апартаменты с террасой, общая площадь 84,9 кв.м.
Апартаменты на верхнем, 15 этаже, 78 кв.м. стоимость 1490 евро за кв.м.
Особенности:
Панировка сдаваемых собственникам помещений - свободная с возможностью перепланировки по индивидуальному проекту, санузел совмещен. Платежи за электро-и теплоэнергию в апартаментах могут отличаться от расценок на жилую недвижимость.
Местоположение
Бизнес апартаменты находятся:
МФК Континенталь в квартале Западный:

МФК Адриатик в квартале Австралия и Океания:

МФК Несвижский замок в квартале Родная сторона комплекса Минск-Мир
Каждое многофункциональное здание уникально и имеет свои преимущества и особенности. Одни больше располагают для комфортного проживания с семьей, а другие для аренды и ведения бизнеса.
О локации
“Минск-Мир” это не просто спальный район. Уже через 2 года здесь откроется международный финансовый центр, который станет крупным деловым хабом страны с особым режимом для ведения бизнеса. Многофункциональность в “Минск-Мире” соблюдена во всем - он включает в себя все, зачем мы живем в городе.
Условия приобретения:
Бизнес апартаменты можно приобрести на условиях заключения Договора долевого строительства. Стоимость квадратного метра от 1 480 евро до 1 700 евро. На сегодняшний день действует скидка 3% при условии быстрой оплаты, длительная рассрочка до 48 месяцев с первоначальным взносом от 20%. Индивидуальный подход к каждому клиенту.
Поможем взять выгодный кредит по партнёрской программе "Партнёр-кредит".
Приглашение
Выбираете выгодный объект для инвестиций? Обратитесь за консультацией и персональным подбором по телефону
+375 29 371 01 01. Наш эксперт
Наталья Витковская по новостройкам подберет для вас оптимальный вариант.
ОДО Твоя столицаконсалт,
УНП 190285638,
лицензия №02240/129 от 06.09.06г.,
договор на оказание риэлтерских услуг
№449/6 от 04.09.2025г.
Чтобы не пропускать важные новости о недвижимости - подписывайтесь на наши информационные каналы 