09.23

Новая Боровая
Личный кабинет
Войти с помощью соцсетей:
Для сброса пароля свяжитесь с менеджером по электронной почте: zenevich@t-s.by
Восстановление пароля
Придумайте новый пароль
Подтвердите новый пароль
Пароль минимум 7 символов. Буквы A-z (мин. одна заглавная) и цифры 0-9.

АПАРТАМЕНТЫ НЕДЕЛИ: НОВОГОДНИЕ ПРЕДЛОЖЕНИЯ

27.12.2023

Началась та самая пора, когда появилась возможность воспользоваться самыми выгодными и интересными новогодними предложениями. Давайте рассмотрим предложения недели (срок действия ограничен!).

Апартаменты свободной планировки на 16 этаже площадью 53,53 м², цена м² – всего 950 евро!

апарт недели 1.jpg


Узнать больше о предложении...

Апартаменты свободной планировки с панорамными окнами площадью 67,3 м², цена м² – всего 950 евро!

апарт недели 2.jpg

Узнать больше о предложении...

Эти и еще несколько заманчивых предложений с новогодними ценами расположены в доме «Мирский замок» и «Несвижский замок» в квартале «Родная страна», в котором появятся:

  • два многофункциональных здания с апартаментами для жизни и бизнеса;
  • школа с бассейном и спортивными площадками, рассчитанная на 920 учащихся;
  • детский сад с бассейном для 230 воспитанников;
  • места для парковки велосипедов;
  • стоянка для владельцев автомобилей.

мирский замок2-1.jpg

В апартаментах для всех проживающих есть возможность:

  • регистрации по месту жительства с семьёй (оформить так называемую «прописку»)
  • оформить регистрацию юридического лица

ВАЖНО: правовой режим многофункциональных апартаментов предусмотрен Указом Президента Республики Беларусь от 22 сентября 2014 года № 456 с изменениями, внесёнными Указом Президента Республики Беларусь №370 от 20 октября 2020 г.

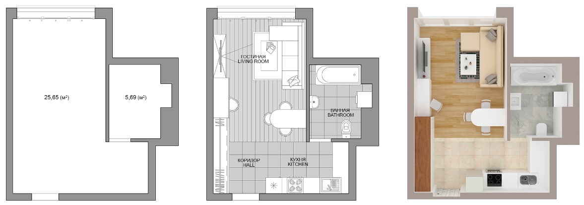
Апартаменты на 8 этаже площадью 31,34 м², цена м² – всего 1110 евро!

апарт недели 4.jpg


Узнать больше о предложении...

Светлые, просторные апартаменты на 7 этаже площадью 66,51 м², цена м² – всего 950 евро!

апарт недели 5.jpg


Узнать больше о предложении...

Эти и не только эти предложения с новогодними ценами расположены в домах квартала «Австралия и Океания», который расположен в самом центре жилого комплекса, в шаговой доступности крупнейший ТРЦ «Avia Mall», Международный финансовый центр – точка сосредоточения деловой активности, а также станция метро «Аэродромная» - самые значимые объекты!

апарт недели 789-100.jpg

апарт недели1 789-100.jpg

Для Вас предусмотрено множество вариантов приобретения! Программы кредитования.

Возможна рассрочка до 36 месяцев с первоначальным взносом всего 20%.

Заинтересовало предложение, хотите узнать подробнее? Звоните, оставляйте заявку – и мы все расскажем!

+375 17 336-77-30
+375 29 371-01-01


Получить консультацию
*
*
Соглашаюсь с обработкой персональных данных для получения консультации

Возврат к списку
Узнавайте актуальные новости - подписывайтесь
Смотрите полезные советы на
подписывайтесь