09.23

Новая Боровая
Личный кабинет
Войти с помощью соцсетей:
Для сброса пароля свяжитесь с менеджером по электронной почте: zenevich@t-s.by
Восстановление пароля
Придумайте новый пароль
Подтвердите новый пароль
Пароль минимум 7 символов. Буквы A-z (мин. одна заглавная) и цифры 0-9.

7.10 "Ницца", квартал «Средиземноморский»

от 358 531.0 BYN (128 120 USD)
ул. Николы Теслы
/
Обновлен 03.03.2026
  • 3 квартал 2021
  • стандарт
  • каркасно-блочный
  • Дом сдан

Возвышаясь на 25 этажей, здание стало одним из высотных акцентов квартала «Средиземноморский».

Квартиры от 28 до 72 кв. м — все свободной планировки. Можно реализовать любую дизайнерскую идею!

  • Высота потолков от 2,7 до 3 м.
  • Огромные панорамные окна, остекленные лоджии и открытые балконы наполняют квартиры светом!
  • Три лифта известной компании OTIS мгновенно и бесшумно доставят на любой этаж. Один из лифтов — панорамный!
  •  Дизайнерское лобби-рецепция со стойкой для консьержа и всеми удобствами: зоной ожидания гостей и санитарной комнатой с пеленальным столиком.
  • Отдельный бокс для хранения велосипедов и увеличенный тамбур для детских колясок. Кстати, парковки для велосипедов также размещены на придомовой территории.
  • В доме два выхода — в тихий зеленый двор и на улицу, к стоянкам автомобилей.
Показать еще

Обновлен 03.03.2026
  • 3 квартал 2021
  • стандарт
  • каркасно-блочный
  • Дом сдан

На карте
Показать инфраструктуру и панораму на карте
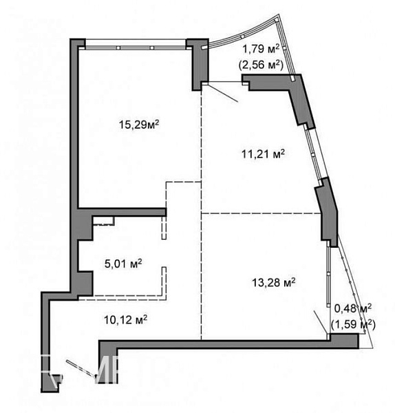
Квартиры
Ход строительства 7.10 "Ницца", квартал «Средиземноморский»

Узнай какая новостройка тебе подходит

Вопрос из

1. Сколько вы готовы потратить на покупку новостройки?

Вопрос из

2. Желаемая площадь

Вопрос из

3. Какой тип застройки Вы предпочитаете?

Вопрос из

4. Какой район города Вам нравится больше всего?

Вопрос из

5. Выберите срок сдачи

Размещение информации об этом объекте не носит коммерческий характер и представлено для максимально полного информирования о рынке новостроек Минска и Беларуси. Информация взята из открытых источников, актуализируется не реже одного раза в месяц.
Обновлен 03.03.2026
  • 3 квартал 2021
  • стандарт
  • каркасно-блочный
  • Дом сдан