09.23

Новая Боровая
Личный кабинет
Войти с помощью соцсетей:
Для сброса пароля свяжитесь с менеджером по электронной почте: zenevich@t-s.by
Восстановление пароля
Придумайте новый пароль
Подтвердите новый пароль
Пароль минимум 7 символов. Буквы A-z (мин. одна заглавная) и цифры 0-9.

Не эконом и ликвид: новостройка около метро напротив делового финансового центра

15.04.2026
Последние квартиры в доме “София”: новостройка комфорт-класса от Застройщика под 5% годовых.

Почему ТОП:

  • Безупречная локация: прямо у входа в метро и делового центра комплекса “Минск Мир”. 
  • Малоэтажный и мало-квартирный дом в 12 этажей с подземным паркингом и кладовыми помещениями.
  • Беспрецедентный партнерский кредит 5% в первые 24 месяца.

И квартира, и машино-место будут всегда востребованы и ликвидны как для собственного проживания, так и для аренды самыми взыскательными клиентами.

1.jpg

Лот пентхаус + машино-место+ кладовка:

Объекты можно приобрести по-отдельности, квартира продается без привязки к машино-месту. Мы рекомендуем приобрести лот, пока все объекты есть в наличии.

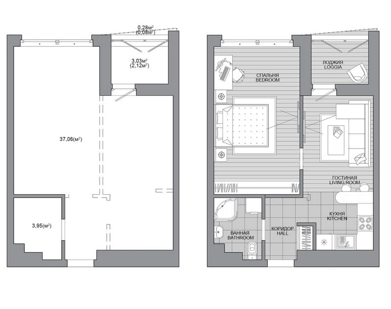
Площадь квартиры в 43.21 кв.м. вмещает гостиную с кухонной зоной и французским балконом,   просторную спальню с панорамным окном. Окно шумозащитное и оснащено детскими замками безопасности. 

Квартира сдается в свободной планировке и находится на верхнем, 12 этаже. Соседей сверху нет, только небо. 

2.jpg

Стоимость лота составляет 135 406 евро в эквиваленте, в том числе: 
  • квартира 112346 евро 
  • машино-место 20 000 евро 
  • кладовка 3060 евро
Ключи уже в декабре 2026 года.

3.jpg

Специальные условия покупки:

Вы можете купить эту квартиру в кредит или рассрочку.  Специальный кредит от банк “ДАБРАБЫТ”  - 5% на 24 месяца, с 25 месяца 18%.

Рассрочка от Застройщика до 48 месяцев.

Описание дома:

В вашем распоряжении будет 2 лифта, один грузовой а второй панорамный с видом на башни МФЦ.  

В подземном паркинге дома “София” всего 47 машино-места, 31 место для хранения велосипедов  и 72 кладовых помещений разной площади. Вход в паркинг предусмотрен через подвальный этаж.

На первом этаже пятнадцать торговых помещений с собственными санузлами и кафе, входы непосредственно с улицы и с открытой торговой галереи. На 2 этаже 3 квартиры и 15 административно-торговых помещений (из них 7 имеют собственные санузлы, 8 – общие).

4.jpg

ТОП-локация:

Дом “София” находится прямо у метро “Аэродромная” напротив делового международного финансового центра и ТОЦ “Авиа-Молл”. Во дворе большая площадка для отдыха, в комплексе новые школы и детские сады для ваших детей.

5.jpg

Остались вопросы?

Получите консультацию и персональный подбор квартиры по телефону  +375 29 694-76-24.

0% комиссии и помощь покупателю, официальный риэлтор Застройщика:

ОДО Твоя столицаконсалт,
УНП 190285638,
лицензия №02240/129 от 06.09.06г.,
договор на оказание риэлтерских услуг №449/6 от 04.09.2025г.

Интересует квартира в Зеленой гавани
*
*
Соглашаюсь с обработкой персональных данных для получения консультации

Возврат к списку
Узнавайте актуальные новости - подписывайтесь
ЗАКАЗАТЬ
ЗВОНОК:
00
:
15
:
00
Да
Нет