ТОП- объект:
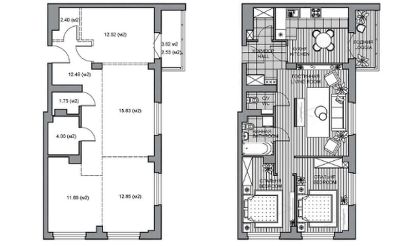
Новостройка около метро площадью в 77.9 кв.м. Дом сдан в 2021 году, можно приехать на осмотр. Квартира предоставляется в свободной планировке, возможное количество комнат - 4, находится на втором этаже 24-этажного дома. На этаже всего 6 квартир, красивое лобби. Планировка позволит максимально использовать жилую площадь и подходит для семьи: большая кухня-столовая, раздельный санузел, две спальни и гостиная.
Только до 30 ноября: доступен кредит от Беларусбанка по пониженной ставке в 13.75% годовых на покупку квартиры от Застройщика, и машиноместо от Застройщика - в подарок!
Общая стоимость квартиры составляет 112 176 евро в эквиваленте по курсу НБ РБ на день оплаты. В стоимость квартиры входит бесплатное машиноместо.
- Стоимость с учетом скидки в 3% за быструю оплату: 108 811 евро
- Рассрочка до 4 лет с первоначальным взносом от 30%
- Рассрочка без удорожания до 12 месяцев с первоначальным взносом от 50%
- Кредит от Беларусбанка → 13,75% годовых на 20 лет
Локация
Квартира находится в квартале Чемпионов в доме Пекин по адресу ул. Белградская, 1. Машиноместо находится в паркинге по ул. Германовская, 7.
Рядом с домом находится новая, современная школа с бассейном и оборудованными учебными классами по ул. Николы Теслы, 31. В шаговой доступности от дома находится метро Аэродромная и общественно-торговый центр АВИА-Молл - идеальное место, чтобы экономить время и иметь все для жизни в шаговой доступности.

Условия акции от Застройщика: в период действия акции с покупателем заключается договор на покупку машиноместа и договор на покупку выбранной квартиры по цене с вычетом стоимости машиноместа.
Заинтересовала новостройка?
Покажем, проконсультируем по кредиту и условиям приобретения. В случае необходимости поможем продать вашу старую квартиру взамен для покупки новостройки. Позвоните мне по телефону
+375 (29) 694-76-24, и я отвечу на все ваши вопросы.
Специалист Новостройцентра
Витковская Наталья.
ООО Твоя столицаконсалт,
УНП 190285638,
лицензия №02240/129 от 06.09.06г.,
договор на оказание риэлтерских услуг № 451/6 от 04.09.2025г.