09.23

Новая Боровая
Личный кабинет
Войти с помощью соцсетей:
Для сброса пароля свяжитесь с менеджером по электронной почте: zenevich@t-s.by
Восстановление пароля
Придумайте новый пароль
Подтвердите новый пароль
Пароль минимум 7 символов. Буквы A-z (мин. одна заглавная) и цифры 0-9.

Новостройка дня: Квартира-мечта от застройщика в доме Валетта

03.11.2025
3-комнатная новостройка в Минск Мире. Ключи в 2026, рассрочка и скидка.  

ТОП- объект:

Вы получите выгодную локацию у делового центра рядом с метро. Адекватную планировку жилой площади с двумя огороженными террасами с выходом на эксплуатируемый стилобат комфортного дома. Ключи уже в 1 квартале 2026 года.
 

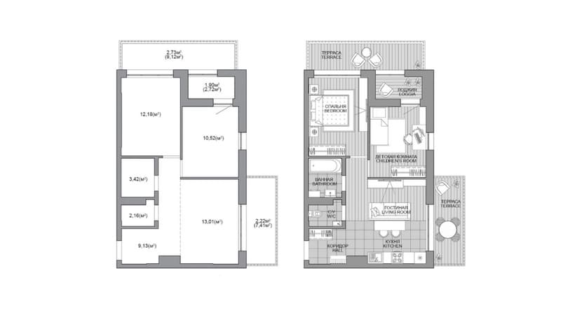
Планировка евротрёшки в доме Валетта в Минск-Мире

Террасы расширят границы вашей площади и станут местом отдыха. Вы сможете посидеть в городе, не выходя из дома. 

Холл в доме Валетта в Минск-Мире

В доме Валлетта всего 90 квартир и 10 этажей среди небоскребов. Подъезд сквозной с дизайнерским лобби, санитарной и пеленальной комнатой и местом для отдыха. 

Квартира расположена на втором этаже с эксплуатируемой кровлей стилобата, окна во двор. 

План этажа в доме Валетта в Минск-Мире

В стилобатной части находятся административно-торговые помещения с отдельными входами с улицы и с дворовой территории. Ваши дети смогут спокойно топать и бегать по полу без звукоизоляции, соседи снизу будут не против.  Во дворе дома строится детский сад, запроектирована зеленая зона с безопасными детскими игровыми площадками, площадками для отдыха, спортплощадками.

Параметры объекта:

Площадь квартиры 57,87 кв.м. Высота от пола до потолка = 2,72 м. Высота окна 1,7 метров, отличная инсоляция. Санузел раздельный. Европланировка, планируемое количество жилых комнат - 3. В квартире есть лоджия, где можно разместить рабочий кабинет. Квартира сдаётся в свободной планировке без отделки.

Стоимость и условия покупки

Стоимость квартиры составляет 109 953 евро в эквиваленте. При быстрой оплате Покупателю предоставляется скидка в 3% от стоимости квартиры, Возможна рассрочка с удорожанием до 48 месяцев, и рассрочка без удорожания до 12 месяцев.

Ключи: декабрь 2025 - март 2026 

Предложение актуально на 3.11.2025.

Локация:

Улица Жореса Алферова. В соседнем квартале строится международный финансовый центр и крупнейший в РБ торгово-общественный центр «АВИА-Молл” с гипермаркетом Green. Всего здесь откроются порядка 500 магазинов и сервисов, отделения банков, кафе и рестораны. До метро Аэродромная семь минут пешком.

Квартал Средиземноморский в Минск-Мире

 С этим объектом вы приобретаете повседневный комфорт городской жизни в лучших современных условиях.

Заинтересовала квартира?

В этой планировке возможен выбор этажа. Позвоните +375 (29) 694-76-24, и специалист проконсультирует по наличию и условиям приобретения. Возможна консультация кредитного консультанта, продажа вашей квартиры взамен. 

ООО Твоя столицаконсалт, УНП 190285638, лицензия №02240/129 от 06.09.06г., договор на оказание риэлтерских услуг № 451/6 от 04.09.2025г.

Нужна консультация по новостройкам
*
*
Соглашаюсь с обработкой персональных данных для получения консультации

Возврат к списку
Узнавайте актуальные новости - подписывайтесь
Смотрите полезные советы на
подписывайтесь
ЗАКАЗАТЬ
ЗВОНОК:
00
:
15
:
00
Да
Нет