09.23

Новая Боровая
Личный кабинет
Войти с помощью соцсетей:
Для сброса пароля свяжитесь с менеджером по электронной почте: zenevich@t-s.by
Восстановление пароля
Придумайте новый пароль
Подтвердите новый пароль
Пароль минимум 7 символов. Буквы A-z (мин. одна заглавная) и цифры 0-9.

7.12. "Анталья", квартал "Средиземноморский"

от 0 BYN (0 USD)
Минск, Октябрьский, ул. Жореса Алферова
метро «Ковальская Слобода», 566 м
/
Обновлен 10.02.2026
  • 1 квартал 2026
  • стандарт
  • каркасно-блочный
  • Строительство надземной части (выше 2 этажа)
Позвонить продавцу +375 29 565-80-21 +375 44 565-80-21
Упростить выбор / покупку

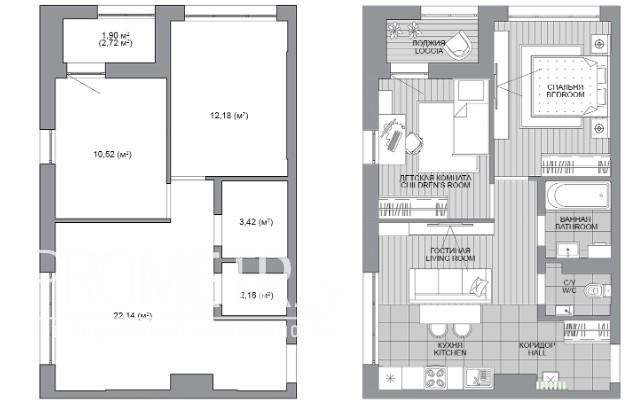
Дом Анталья в квартале Средиземноморский. Одна секция в 14 этажей по 10 квартир на этаже, начиная со 2-ого. Из лестнично-лифтового холла запроектированы выходы в 2 межквартирных коридора, в каждый из коридоров выходит по 5 квартир. Фишки: на 2 этаже 6 квартир – с собственными огражденными террасами, со всех террас есть выход на эксплуатируемую кровлю стилобата. Квартиры 3-14 этаж типовые, балконы - с ограждением экранного типа из безопасного стекла. На первом этаже размещены коммерческие помещения. Кровля дома не эксплуатируемая

ООО "Твоя столицаконсалт", УНП 190285638, лицензия №02240/129 от 06.09.06г.

Договор на оказание риэлтерских услуг № 447/6, от 04.09.2025

Показать еще

Обновлен 10.02.2026
  • 1 квартал 2026
  • стандарт
  • каркасно-блочный
  • Строительство надземной части (выше 2 этажа)
Позвонить продавцу +375 29 565-80-21 +375 44 565-80-21
Упростить выбор / покупку

На карте
Показать инфраструктуру и панораму на карте
Квартиры

Специальные условия покупки

Лизинг
Выгодная альтернатива кредитам/рассрочке от 13%
Описание:

Выгодная альтернатива кредитам и рассрочке от ЗАО "Авангард Лизинг" - партнер портала ProMetr.by

  • возвратный лизинг (для участия в долевом строительстве);
  • ставка от 13%;
  • лояльный подход к подтверждению дохода покупателя;
  • срок договора лизинга: от 12 до 60 месяцев; (для ИП и ЮР до 120 мес)
  • максимальная сумма финансирования: исходя из дохода.
  • сумма финансирования: до 80% от стоимости предмета лизинга;
  • авансовый платеж: от 20% стоимости приобретения предмета лизинга;
  • валюта: для физ. лиц - белорусские рубли, для ИП и юр. лиц - иностранная валюта (RUB, USD, EUR);
  • отсутствуют скрытые и дополнительные комиссии.
  • Схема погашения лизинговых платежей: ежемесячные, равные и не равные платежи.

Узнайте подробнее у консультантов ProMetr.by

Кредит от 5.99 %
Кредит от банков-партнеров
Описание:

Специалист Сектора ипотечного кредитования поможет выбрать кредит, сделать расчеты и оформить пакет документов на получение кредитных средств.

Партнерская программа:

Первоначальный взнос от 0%.

  • ОАО «Белинвестбанк» сроком до 20 лет. Ставки по кредиту: 7,34% годовых - первые 12 месяцев, с 13-го месяца - 15,50% годовых на стройку, 18,11% годовых на готовое. Кредитование до 90% стоимости квартир.
  • ОАО «АСБ Беларусбанк» сроком до 20 лет. Ставки по кредиту: 8,65% годовых - первые 12 месяцев, с 13-го месяца - 16,65% годовых. Кредитование до 100% стоимости квартир.
  • ОАО «Белгазпромбанк» сроком до 20 лет. Ставки по кредиту: 6,25% годовых - первые 6 месяцев, с 7-го месяца - 16,75% годовых. Кредитование до 90% стоимости квартир.
  • ОАО «Дабрабыт» сроком до 20 лет. Ставки по кредиту: 8,4% годовых - первые 15 месяцев, с 16-го месяца - 18% годовых. Кредитование до 90% стоимости квартир.
  • ОАО «БелВэб» сроком до 20 лет. Ставки по кредиту: 5,99% годовых - первые 12 месяцев, с 13-го месяца - 17,9% годовых.
Рассрочка до 48 месяцев
Рассрочка от застройщика
Описание:

На квартиры в готовых домах применяется специальный калькулятор с возможностью рассрочки до 48 месяцев. Первоначальный взнос не менее 30% с удорожанием стоимости. Также доступна экспресс-рассрочка до 12 месяцев.

На квартиры в строящихся домах (кроме апартаментов) применяется специальный калькулятор с возможностью рассрочки до 48 месяцев. Первоначальный взнос не менее 20% с удорожанием стоимости. Также доступна экспресс-рассрочка до 12 месяцев.

На многофункциональные бизнес-апартаменты применяется калькулятор специальный калькулятор с возможностью рассрочки до 48 месяцев. Первоначальный взнос не менее 20% с удорожанием стоимости.

Все дома в «Минск Мир»
  • 7.12. "Анталья", квартал "Средиземноморский" -  20.6 "Сальса", квартал "Мировые танцы"
    20.6 "Сальса", квартал "Мировые танцы" ул. Аэродромная
    Каждый покупатель квартиры в доме «Сальса» станет чуточку счастливее, особенно, когда увидит стоимость...
    Подробнее о доме
  • 7.12. "Анталья", квартал "Средиземноморский" -  25.10 "Бангкок", квартал "Азия"
    25.10 "Бангкок", квартал "Азия" ул. Брилевская
    Дом «Банкок» возвышается на 25 этажей. При возведении используется конструктивная схема с монолитным...
    Подробнее о доме
  • 7.12. "Анталья", квартал "Средиземноморский" -  25.2 "Токио", квартал "Азия"
    25.2 "Токио", квартал "Азия" ул. Савицкого
    В Японии есть традиция любоваться цветущей сакурой. Этому посвящен новый дом в квартале Азия – «Токио»....
    Подробнее о доме
  • 7.12. "Анталья", квартал "Средиземноморский" -  30.10 «Монреаль», квартал «Северная Америка»
    30.10 «Монреаль», квартал «Северная Америка» ул. Кижеватова
    Все квартиры — свободной планировки, с большими панорамными окнами и остекленными лоджиями. Площадь —...
    Подробнее о доме
  • 7.12. "Анталья", квартал "Средиземноморский" - «Диадема»
    «Диадема» ул. Аэродромная
    Жилой дом № 1 «Диадема» в составе 1-й очереди строительства жилого комплекса «Минск-Мир». Веден в эк...
    Подробнее о доме
  • 7.12. "Анталья", квартал "Средиземноморский" - 10.6 "Фиджи", квартал "Тропические острова"
    10.6 "Фиджи", квартал "Тропические острова" ул. Жореса Алфёрова, 10
        Фиджи — государство в южной части Тихого океана. Песчаные пляжи, коралловые рифы, голубые лагуны,...
    Подробнее о доме
  • 7.12. "Анталья", квартал "Средиземноморский" - 12.11 "Манчестер", квартал "Западная Европа"
    12.11 "Манчестер", квартал "Западная Европа" ул. Жореса Алферова
    Дом расположен в квартале «Западная Европа» - шедевр современной городской застройки, где для владельцев...
    Подробнее о доме
  • 7.12. "Анталья", квартал "Средиземноморский" - 12.12 "Лиссабон", квартал "Западная Европа"
    12.12 "Лиссабон", квартал "Западная Европа" ул. Жореса Алфёрова
    Дом расположен в квартале «Западная Европа» — шедевр современной городской архитектуры, где для владельцев...
    Подробнее о доме
  • 7.12. "Анталья", квартал "Средиземноморский" - 12.14 "Женева", квартал "Западная Европа"
    12.14 "Женева", квартал "Западная Европа" ул. Жореса Алфёрова
    Дом «Женева» - один из высотных акцентов квартала «Западная Европа».  Новостройка в 25 этажей, все ...
    Подробнее о доме
  • 7.12. "Анталья", квартал "Средиземноморский" - 12.2 "Рим", квартал "Западная Европа"
    12.2 "Рим", квартал "Западная Европа" ул. Леонида Щемелёва 28
    Квартал Западная Европа находится в восточной части комплекса Минск Мир и запроектирован таким образом,...
    Подробнее о доме
  • 7.12. "Анталья", квартал "Средиземноморский" - 12.3 "Мадрид", квартал "Западная Европа"
    12.3 "Мадрид", квартал "Западная Европа" ул.Леонида Щемелёва 28
    Строящийся дом «Мадрид» расположен в квартале «Западная Европа», где все объекты комфорта для взрослых...
    Подробнее о доме
  • 7.12. "Анталья", квартал "Средиземноморский" - 12.4 "Амстердам", квартал Западная Европа
    12.4 "Амстердам", квартал Западная Европа ул. Лученка
    В доме «Амстердам» 25 этажей. На 1-м расположены 6 помещений для обустройства коммерческих объектов,...
    Подробнее о доме
  • 7.12. "Анталья", квартал "Средиземноморский" - 12.5 "Берлин", квартал Западная Европа
    12.5 "Берлин", квартал Западная Европа ул. Игоря Лученка 32
    Дом расположен в квартале «Западная Европа» — шедевр современной городской архитектуры, где для владельцев...
    Подробнее о доме
  • 7.12. "Анталья", квартал "Средиземноморский" - 12.6 "Мюнхен", квартал Западная Европа
    12.6 "Мюнхен", квартал Западная Европа ул. Игоря Лученка
    Дом расположен в квартале «Западная Европа» — шедевр современной городской архитектуры, где для владельцев...
    Подробнее о доме
  • 7.12. "Анталья", квартал "Средиземноморский" - 18.1 «Пекин»,  квартал "Чемпионов"
    18.1 «Пекин», квартал "Чемпионов" Ул. Белградская - ул.Аэродромная
    Жилой дом «Пекин» находится в квартале «Чемпионов». Дом пятисекционный, угловой, два крыла , которые...
    Подробнее о доме
  • 7.12. "Анталья", квартал "Средиземноморский" - 18.2 "Солт Лейк Сити", квартал "Чемпионов"
    18.2 "Солт Лейк Сити", квартал "Чемпионов" ул. Аэродромная
    «Солт-Лейк-Сити» в квартале «Чемпионов», названный в честь американского города. Золотистый фасад этого...
    Подробнее о доме
  • 7.12. "Анталья", квартал "Средиземноморский" - 18.4 «Сидней Люкс», квартал «Чемпионов»
    18.4 «Сидней Люкс», квартал «Чемпионов» просп. Мира
    «Сидней Люкс» - это жилое здание, состоящее из двух секций переменной этажности 10 и 25 этажей – предлагает...
    Подробнее о доме
  • 7.12. "Анталья", квартал "Средиземноморский" - 19.1 «Стамбул», квартал  "Южная Европа"
    19.1 «Стамбул», квартал "Южная Европа" ул. Аэродромная
    Яркий, светлый, цвета моря и солнца, он мгновенно поднимет настроение даже в самую ненастную погоду....
    Подробнее о доме
  • 7.12. "Анталья", квартал "Средиземноморский" - 19.6 "Котор", квартал "Южная Европа"
    19.6 "Котор", квартал "Южная Европа" ул. Аэродромная
     «Котор» - это современный каркасно-монолитный дом высотой 25 этажей с квартирами площадью от 27 до ...
    Подробнее о доме
  • 7.12. "Анталья", квартал "Средиземноморский" - 19.7 "Дубровник", квартал "Южная Европа"
    19.7 "Дубровник", квартал "Южная Европа" ул. Аэродромная
     «Дубровник» - это современный каркасно-монолитный дом высотой 25 этажей с квартирами площадью от 27...
    Подробнее о доме
  • 7.12. "Анталья", квартал "Средиземноморский" - 19.8 "Салоники", квартал "Южная Европа"
    19.8 "Салоники", квартал "Южная Европа" ул. Белградская
    Яркий, стильный и необыкновенно комфортный. Это все про «Салоники» в квартале «Южная Европа»! Фасад ...
    Подробнее о доме
  • 7.12. "Анталья", квартал "Средиземноморский" - 2.1 «Эмиратс Волна»
    2.1 «Эмиратс Волна» просп. Мира
    Подробнее о доме
  • 7.12. "Анталья", квартал "Средиземноморский" - 20.1 «Танго», квартал «Мировые танцы»
    20.1 «Танго», квартал «Мировые танцы» ул. Брилевская
     Дом «Танго», расположен в квартале «Мировых танцев». В каждом подъезде, для удобства жильцов,  два ...
    Подробнее о доме
  • 7.12. "Анталья", квартал "Средиземноморский" - 20.11 «Вальс», квартал «Мировых танцев»
    20.11 «Вальс», квартал «Мировых танцев» ул. Николы Теслы
    «Вальс» - первый дом в новом квартале «Мировые танцы» будет состоять из пяти десятиэтажных секций.  ...
    Подробнее о доме
  • 7.12. "Анталья", квартал "Средиземноморский" - 20.3 "Румба", квартал "Мировых танцев"
    20.3 "Румба", квартал "Мировых танцев" ул. Брилевская 27
    В  доме вас ждут апартаменты со свободными планировками, высокими потолками и панорамными окнами. На...
    Подробнее о доме
  • 7.12. "Анталья", квартал "Средиземноморский" - 22.2 "Варшава", квартал "Центральная Европа"
    22.2 "Варшава", квартал "Центральная Европа" ул. Игоря Лученка
    Квартал «Центральная Европа» - это настоящая жемчужина многофункционального комплекса Minsk World! Здесь...
    Подробнее о доме
  • 7.12. "Анталья", квартал "Средиземноморский" - 22.7 "София", квартал "Центральная Европа"
    22.7 "София", квартал "Центральная Европа" просп .Мира д.10
    Дом «София» — 12-этажное здание, расположенное в шаговой доступности от станции метро «Аэродромная» ...
    Подробнее о доме
  • 7.12. "Анталья", квартал "Средиземноморский" - 23.4 "Баку", квартал "Евразия"
    23.4 "Баку", квартал "Евразия" ул. Белградская
    Хороший вариант для инвестиций - дом «Баку» - один из высотных акцентов квартала «Евразия». Новостройка...
    Подробнее о доме
  • 7.12. "Анталья", квартал "Средиземноморский" - 23.6 "Екатеринбург", квартал "Евразия"
    23.6 "Екатеринбург", квартал "Евразия" Ул. Белградская
    Великолепный «Екатеринбург» достоин особого внимания благодаря своим преимуществам! Возвышаясь на 25...
    Подробнее о доме
  • 7.12. "Анталья", квартал "Средиземноморский" - 25.1 "Сеул", квартал "Азия"
    25.1 "Сеул", квартал "Азия" ул. Михаила Савицкого
    Новостройки «Сеул» и «Куала-Лумпур» возводятся в квартале «Азия». Его построили в честь самого динамично...
    Подробнее о доме
  • 7.12. "Анталья", квартал "Средиземноморский" - 25.11 "Киото" квартал «Азия»
    25.11 "Киото" квартал «Азия» ул. Н.Теслы
    «Киото» квартал «Азия» В доме — 25 этажей с квартирами площадью от 28 до 75 кв. м., все квартиры свободной...
    Подробнее о доме
  • 7.12. "Анталья", квартал "Средиземноморский" - 25.3 "Манила", квартал "Азия"
    25.3 "Манила", квартал "Азия" ул. Кижеватова
    Дом «Манила», расположенный в квартале «Азия», назван в честь столицы Филиппин, островного государства...
    Подробнее о доме
  • 7.12. "Анталья", квартал "Средиземноморский" - 25.7 "Нью-Дели", квартал "Азия"
    25.7 "Нью-Дели", квартал "Азия" ул. Кижеватова 1А
    Дом «Нью-Дели», созданный по мотивам столицы далекой Индии. Такой же яркий, колоритный и притягательный...
    Подробнее о доме
  • 7.12. "Анталья", квартал "Средиземноморский" - 25.8 "Сингапур", квартал Азия
    25.8 "Сингапур", квартал Азия ул. Кижеватова
    Сингапур считают жемчужиной Азии и райским уголком на Земле. На сегодняшний день, эта страна – одно ...
    Подробнее о доме
  • 7.12. "Анталья", квартал "Средиземноморский" - 25.9 "Мумбаи", квартал "Азия"
    25.9 "Мумбаи", квартал "Азия" ул. Брилевская
    Дом «Мумбаи» возвышается на 25 этажей. При возведении используется конструктивная схема с монолитным...
    Подробнее о доме
  • 7.12. "Анталья", квартал "Средиземноморский" - 26.2 "Кейптаун", квартал "Африка"
    26.2 "Кейптаун", квартал "Африка" ул. Николы Теслы
    Фасад «Кейптауна», выполненный в светло-песочных тонах, в одну секунду переносит нас в далекую солнечную...
    Подробнее о доме
  • 7.12. "Анталья", квартал "Средиземноморский" - 26.5 "Найроби", квартал "Африка"
    26.5 "Найроби", квартал "Африка" ул. Теслы
    Дом «Найроби» находится в северной части квартала, в нескольких минутах ходьбы от здания бывшего аэропорта...
    Подробнее о доме
  • 7.12. "Анталья", квартал "Средиземноморский" - 26.6 "Александрия",  квартал "Африка"
    26.6 "Александрия", квартал "Африка" ул. Савицкого
    Квартал — «Африка». Именно там будет построен дом «Александрия»! В 24 этажах этого величественного ...
    Подробнее о доме
  • 7.12. "Анталья", квартал "Средиземноморский" - 27.2 "Центральный Парк", квартал "Счастливая планета"
    27.2 "Центральный Парк", квартал "Счастливая планета" ул. Левина 1
    Квартал Happy Planet находится в самом центре жилого комплекса Минск Мира. Через дорогу в здании бывшего...
    Подробнее о доме
  • 7.12. "Анталья", квартал "Средиземноморский" - 27.3 "Hyde Park", квартал "Счастливая планета"
    27.3 "Hyde Park", квартал "Счастливая планета" ул. Игоря Лученка 2
    Квартал Happy Planet находится в самом центре жилого комплекса Минск Мира. Через дорогу в здании бывшего...
    Подробнее о доме
  • 7.12. "Анталья", квартал "Средиземноморский" - 27.4 "Yoyogi Park", квартал "Happy Planet"
    27.4 "Yoyogi Park", квартал "Happy Planet" ул. И.Лученка
    Квартал «Happy Planet» — «седьмое небо счастья» для тех, кто давно мечтал жить, глядя из панорамного...
    Подробнее о доме
  • 7.12. "Анталья", квартал "Средиземноморский" - 27.5 «Калемегдан», «квартал Happy Planet»
    27.5 «Калемегдан», «квартал Happy Planet» ул. Левина, 3
    Готовый дом престиж-класса с двухуровневыми квартирами!В доме 77 квартир метражом от 48 до 61 кв.м. ...
    Подробнее о доме
  • 7.12. "Анталья", квартал "Средиземноморский" - 29.1 "Копенгаген", квартал "Северная Европа"
    29.1 "Копенгаген", квартал "Северная Европа" ул. Аэродромная
    В доме Копенгаген 25 этажей и 293 квартиры свободной планировки площадью от 29 до 74 квадратных метров,...
    Подробнее о доме
  • 7.12. "Анталья", квартал "Средиземноморский" - 29.2 «Стокгольм», квартал "Северная Европа"
    29.2 «Стокгольм», квартал "Северная Европа" Ул. Белградская
    Скандинавские страны из года в год занимают лидирующие строчки списка самых счастливых стран мира. Секрет...
    Подробнее о доме
  • 7.12. "Анталья", квартал "Средиземноморский" - 29.4 «Глазго», квартал "Северная Европа"
    29.4 «Глазго», квартал "Северная Европа" ул. Кижеватова
    «Глазго» назван в честь крупного портового города Шотландии   Добро пожаловать в «Глазго»! Сегодня...
    Подробнее о доме
  • 7.12. "Анталья", квартал "Средиземноморский" - 29.5 «Осло», квартал "Северная Европа"
    29.5 «Осло», квартал "Северная Европа" ул. Кижеватова
    Скандинавские страны из года в год занимают лидирующие строчки списка самых счастливых стран мира. Секрет...
    Подробнее о доме
  • 7.12. "Анталья", квартал "Средиземноморский" - 29.6 "Вильнюс", квартал "Северная Европа"
    29.6 "Вильнюс", квартал "Северная Европа" пр. Мира
    Дом «Вильнюс» – это 25 этажей с квартирами площадью от 28 до 75 кв. м. Ультрасовременный, красивый и...
    Подробнее о доме
  • 7.12. "Анталья", квартал "Средиземноморский" - 30.12 «Квебек», квартал "Северная Америка"
    30.12 «Квебек», квартал "Северная Америка" ул. Кижеватова
    Дом 20 этажей и 196 квартир площадью от 52 до 68 кв. м. — свободной планировки. В доме будут три бесшумных...
    Подробнее о доме
  • 7.12. "Анталья", квартал "Средиземноморский" - 30.7 «Нью-Йорк», квартал Северная Америка
    30.7 «Нью-Йорк», квартал Северная Америка ул. Белградская
    Жилой квартал «Северная Америка» - это часть масштабного проекта Minsk World, крупнейшей стройки столицы, ...
    Подробнее о доме
  • 7.12. "Анталья", квартал "Средиземноморский" - 30.8 "Майами", квартал "Северная Америка"
    30.8 "Майами", квартал "Северная Америка" ул. Кижеватова
    Ремонт – не ваш конек? Тогда для вас есть специальное предложение – солнечный дом «Майами» в квартале...
    Подробнее о доме
  • 7.12. "Анталья", квартал "Средиземноморский" - 30.9 "Новый Орлеан", квартал "Северная Америка"
    30.9 "Новый Орлеан", квартал "Северная Америка" ул. Кижеватова
    Дом находится в квартале «Северная Америка». Что готов предложить «Новый Орлеан» в жилом комплексе «Минск...
    Подробнее о доме
  • 7.12. "Анталья", квартал "Средиземноморский" - 7.10 "Ницца", квартал «Средиземноморский»
    7.10 "Ницца", квартал «Средиземноморский» ул. Николы Теслы
    Возвышаясь на 25 этажей, здание стало одним из высотных акцентов квартала «Средиземноморский». Квартиры...
    Подробнее о доме
  • 7.12. "Анталья", квартал "Средиземноморский" - 7.13 "Валлетта", квартал "Средиземноморский"
    7.13 "Валлетта", квартал "Средиземноморский" ул. Жореса Алферова
    Дом Валлетта в квартале Средиземноморский. Одна секция в10 этажей по 10 квартир на этаже, начиная со...
    Подробнее о доме
  • 7.12. "Анталья", квартал "Средиземноморский" - 7.3 "Родос", квартал "Средиземноморский"
    7.3 "Родос", квартал "Средиземноморский" ул. Игоря Лученка
    Квартал Средиземноморский – это идеальное место для комфортной городской жизни, работы и отдыха. Вся...
    Подробнее о доме
  • 7.12. "Анталья", квартал "Средиземноморский" - 7.4 "Лимасол" , квартал «Средиземноморский»
    7.4 "Лимасол" , квартал «Средиземноморский» ул. Игоря Лученка
    «Лимасол» - лакомый кусочек для любителей малоэтажной застройки – каждая по 10 этажей. Именно здесь ...
    Подробнее о доме
  • 7.12. "Анталья", квартал "Средиземноморский" - 9.10 "Гавана", квартал "Южная  Америка"
    9.10 "Гавана", квартал "Южная Америка" ул. Игоря Лученка
    Дом возвышается на 25 этажей, одноподъездный, в нем представлены квартиры свободной планировки с панорамными...
    Подробнее о доме
  • 7.12. "Анталья", квартал "Средиземноморский" - 9.4 "Бразилиа", квартал "Южная  Америка"
    9.4 "Бразилиа", квартал "Южная Америка" ул. Н. Теслы
    В доме «Бразилиа» 25 этажей. Цветовая гамма фасада решена в теплых песочно-коричневых тонах. Подъезд...
    Подробнее о доме
  • 7.12. "Анталья", квартал "Средиземноморский" - 9.5 "Монтевидео", квартал "Южная  Америка"
    9.5 "Монтевидео", квартал "Южная Америка" ул. Теслы 30
    В доме «Монтевидео» 25 этажей. Цветовая гамма фасада решена в теплых песочно-коричневых тонах. Подъезд...
    Подробнее о доме
  • 7.12. "Анталья", квартал "Средиземноморский" - 9.6 "Сан-Паулу", квартал "Южная  Америка"
    9.6 "Сан-Паулу", квартал "Южная Америка" ул. Николы Теслы
    Дом возвышается на 25 этажей, одноподъездный, в нем представлены квартиры свободной планировки с панорамными...
    Подробнее о доме
  • 7.12. "Анталья", квартал "Средиземноморский" - 9.7 "Мехико- Сити", квартал "Южная  Америка"
    9.7 "Мехико- Сити", квартал "Южная Америка" ул. Лученка
    Дом Мехико-Сити - 19-тиэтажная новостройка угловой формы, состоящая из трех секций. Открыв двери, мы...
    Подробнее о доме
  • 7.12. "Анталья", квартал "Средиземноморский" - 9.8 "Панама-Сити", квартал "Южная  Америка"
    9.8 "Панама-Сити", квартал "Южная Америка" ул. Леонида Щемелёва, 16
    Дом «Панама-Сити» — это 19 этажей с квартирами свободной планировки. «Панама-Сити» будет состоять из...
    Подробнее о доме
  • 7.12. "Анталья", квартал "Средиземноморский" - Сад Эрмитаж дом 27.6
    Сад Эрмитаж дом 27.6 ул.Лученка,4
    Подробнее о доме
Акции по «Минск Мир»
  • ЧЕРНАЯ ПЯТНИЦА! Только с 22 по 26 ноября!
    ЧЕРНАЯ ПЯТНИЦА! Только с 22 по 26 ноября!
    c 22.11.2023
  • КВАРТИРЫ НЕДЕЛИ
    КВАРТИРЫ НЕДЕЛИ
    c 07.12.2023
  • НОВОГОДНЕЕ ПРЕДЛОЖЕНИЕ!
    НОВОГОДНЕЕ ПРЕДЛОЖЕНИЕ!
    c 15.12.2023
  • ПОСЛЕДНИЙ ШАНС воспользоваться НОВОГОДНИМ ПРЕДЛОЖЕНИЕМ!
    ПОСЛЕДНИЙ ШАНС воспользоваться НОВОГОДНИМ ПРЕДЛОЖЕ...
    c 11.01.2024
  • СКИДКА 5% на апартаменты в «Минск Мире»
    СКИДКА 5% на апартаменты в «Минск Мире»
    c 23.01.2024
  • НОВАЯ АКЦИЯ: до 1 февраля! СКИДКА до 6% - от 1095€ за м²!
    НОВАЯ АКЦИЯ: до 1 февраля! СКИДКА до 6% - от 1095€...
    c 23.01.2024
  • СТАРТ ПРОДАЖ ДОМОВ В ЦЕНТРЕ РЯДОМ С МЕТРО!
    СТАРТ ПРОДАЖ ДОМОВ В ЦЕНТРЕ РЯДОМ С МЕТРО!
    c 02.02.2024
  • СКИДКА ДО 9%! ПРЕДЛОЖЕНИЕ ДЛЯ ВЛЮБЛЕННЫХ!
    СКИДКА ДО 9%! ПРЕДЛОЖЕНИЕ ДЛЯ ВЛЮБЛЕННЫХ!
    c 07.02.2024
  • Акция «8 дней скидка 8 процентов»!
    Акция «8 дней скидка 8 процентов»!
    c 11.03.2024
  • «Минск-Мир»: старт продаж в квартале «Хэппи Плэнет»!
    «Минск-Мир»: старт продаж в квартале «Хэппи Плэнет...
    c 17.06.2024
  • Только до конца июня АКЦИЯ в доме «Парк Гёреме»
    Только до конца июня АКЦИЯ в доме «Парк Гёреме»
    c 21.06.2024
Ход строительства 7.12. "Анталья", квартал "Средиземноморский"

Обменяйте свою квартиру на жилье от застройщика выгодно и удобно

Кредит и рассрочка

станут простыми и понятными с нашей помощью: рассчитаем платежи, поможем собрать и проверим пакет документов, запишем в банк для подачи

До 10% Moneyback

Вы получите от стоимости риэлтерских услуг по продаже квартиры (программа лояльности KeyCard ОАО «Приорбанк») как участник программы «Переезжаем в новостройку»

Бесплатно

Ответим на все вопросы по продаже и покупке жилья, подберем новостройку по цене застройщика и поможем оформить документы в том числе на получение кредита.

В каких проектах вы предпочли бы выбрать новую квартиру?

Сколько комнат должно быть в новой квартире?

На какой стадии готовности должна быть новая квартира?

Сколько комнат в старой квартире на продажу?

Где она находится?

Введите ваш адрес

Пожалуйста, представьтесь

Введите ваши контактные данные
Вопрос из
Отлично! Вы отправили нам свои пожелания, мы подготовим предложения и свяжемся с Вами в ближайшее время.
Размещение информации об этом объекте не носит коммерческий характер и представлено для максимально полного информирования о рынке новостроек Минска и Беларуси. Информация взята из открытых источников, актуализируется не реже одного раза в месяц.
Обновлен 10.02.2026
  • 1 квартал 2026
  • стандарт
  • каркасно-блочный
  • Строительство надземной части (выше 2 этажа)
Позвонить продавцу +375 29 565-80-21 +375 44 565-80-21
Упростить выбор / покупку