09.23

право (7).png
Личный кабинет
Войти с помощью соцсетей:
Для сброса пароля свяжитесь с менеджером по электронной почте: zenevich@t-s.by
Восстановление пароля
Придумайте новый пароль
Подтвердите новый пароль
Пароль минимум 7 символов. Буквы A-z (мин. одна заглавная) и цифры 0-9.
eye
0 просмотр
Обновлен 13.08.2025

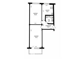
Продажа 2-комнатной квартиры, 45.2м2, 3 этаж

Агентство
с ремонтом
Фото объекта
Описание квартиры:
45.2 м2 - общая площадь
29.2 м2 - жилая площадь
5.9 м2 - кухня
Количество комнат: 2
Ремонт: Косметический
Санузел: Совмещенный
3 из 5 этажей
Высота потолков: 2.62 м
Балкон или лоджия: 1
О доме:
Тип дома: Хрущевка/брежневка
Год постройки: 1961
Стены: Кирпич

Двухкомнатная квартира рядом с набережной реки Свислочь, близко к центру города. Прекрасные виды, возможности для прогулок и активного отдыха. Живя в таком районе, можно наслаждаться тишиной природы, не покидая городской жизни.

В доме произведён капитальный ремонт. Заменены сантехнические коммуникации, новые радиаторы. выполнена модернизация фасада. Подключены приборы учёта воды и газа.

В квартире установлена входная металлическая дверь, межкомнатные двери - экошпон. В оконных проёмах установлены деревянные стеклопакеты. Балкон застеклён раздвижной алюминиевой рамой. Полы: ламинат. В санузле плитка современного дизайна. Кухонный гарнитур. Домофон, телефон, оптоволоконная сеть.

Дом расположен в одном из самых востребованных районов Минска. В шаговой доступности объекты сервисного обслуживания и досуга, магазины, образовательные, медицинские и спортивные учреждения. Рядом остановки общественного транспорта.

Хорошее транспортное сообщение со всеми районами столицы и пригородом.  

Рядом красивейшие городские парки - Лошицкий и Серебряный Лог. Рядом много мест для прогулок, занятий спортом и отдыха, в том числе экотропа "Город птиц" и набережная реки "Свислочь".

Поможем выгодно продать вашу квартиру для покупки этой. Расширенные консультации по покупке, продаже и обмену вашей квартиры на этот объект можно получить в офисе «Метро Партизанская» по адресу г. Минск, ул. Жилуновича 15- 312 .

Возможно купить в лизинг
logo_bank
Выгодная альтернатива кредитам при покупке квартир на вторичном рынке и готовых новостроек.
Узнайте больше у консультантов Prometr.by
Получить бесплатную консультацию.png
от 13%
60,120 месяцев
Площадь: 45.2 / 29.2 / 5.9 м2
Этаж: 3 из 5 этаж
Продажа
Агентство :
ОДО "Твоя столицаконсалт"
УНП: 190285638
Лицензия: № 02240/129 от 06.09.2006 г
Договор: 20/6 от 18.01.2025
Похожие предложения
Фото объекта 1
Агентство
с ремонтом
eye 13
28.04.2026
Минск, Минская область, Богдановича ул.., 78
53.2 / 33.9 / 10.1 м2
7 этаж
Фото объекта
Агентство
с ремонтом
eye 12
25.04.2026
Минск, Минская область, Рокоссовского просп.., 89
44.2 / 28.7 / 6.2 м2
5 этаж
Фото объекта 1
Агентство
с ремонтом
eye 13
24.04.2026
Минск, Минская область, Шаранговича ул.., 66
53.7 / 29.4 / 8.9 м2
8 этаж
Фото объекта 1
Агентство
с ремонтом
eye 25
22.04.2026
Минск, Минская область, Голубева ул.., 21
61.2 / 31 / 9.2 м2
17 этаж
Фото объекта 1
Собственник
eye 46
20.04.2026
Минск, Долгобродская ул.., 10,корпус 2
53 / 30 / 6.5 м2
4 этаж
Фото объекта 1
Агентство
с ремонтом
eye 33
18.04.2026
Минск, Минская область, Козыревская ул.., 21, 1
45.28 / 29.8 / 6.76 м2
3 этаж
Фото объекта 1
Агентство
с ремонтом
eye 102
10.04.2026
агрогородок Михановичи, Минская область, Советская ул.., 31
55.5 / 15.1 / 9.5 м2
1 этаж
Фото объекта 1
Агентство
с ремонтом
eye 81
10.04.2026
агрогородок Михановичи, Минская область, Советская ул.., 31
55.5 / 15.1 / 9.5 м2
1 этаж
Фото объекта 1
Агентство
с ремонтом
eye 32
10.04.2026
Минск, Минская область, Панченко ул.., 40
49.4 / 28.6 / 7.3 м2
8 этаж
Фото объекта 1
Агентство
с ремонтом
eye 55
10.04.2026
Минск, Минская область, Плеханова ул.., 64
52 / 27.8 / 9.3 м2
8 этаж
Фото объекта 1
Агентство
с ремонтом
eye 55
10.04.2026
деревня Боровляны, Минская область, 40 Лет Победы ул.., 12
39.5 / 27.7 / 5.6 м2
3 этаж
Фото объекта 1
Агентство
с ремонтом
eye 78
09.04.2026
Минск, Минская область, Люксембург ул.., 177, метро Грушевка
43.3 / 32.8 / 5.9 м2
3 этаж
Фото объекта 1
Собственник
с ремонтом
eye 80
07.04.2026
Минск, 18
46 / 32 / 6 м2
3 этаж
Фото объекта 1
Агентство
с ремонтом
eye 75
05.04.2026
Минск, Минская область, Бядули ул.., 8, метро Площадь Победы
50.3 / 46.2 / 1 м2
3 этаж
Купить квартиру в Минске в новостройке: список предложений
Добавить объявление