09.23

Новая Боровая
Личный кабинет
Войти с помощью соцсетей:
Для сброса пароля свяжитесь с менеджером по электронной почте: zenevich@t-s.by
Восстановление пароля
Придумайте новый пароль
Подтвердите новый пароль
Пароль минимум 7 символов. Буквы A-z (мин. одна заглавная) и цифры 0-9.

12.14 "Женева", квартал "Западная Европа"

от 0 BYN (0 USD)
ул. Жореса Алфёрова
/
Обновлен 02.04.2026
  • 2023
  • стандарт
  • каркасно-блочный
  • Дом сдан

Дом «Женева» - один из высотных акцентов квартала «Западная Европа». 

Новостройка в 25 этажей, все квартиры – свободной планировки с панорамными окнами. На первом этаже – дизайнерские лобби со стойкой консьержа, санитарной комнатой с пеленальным столиком и лапомойкой для домашних животных. В увеличенном тамбуре можно будет разместить детские коляски. До квартир жителей доставят 3 скоростных лифта, один из которых – панорамный.

В квартале «Западная Европа» в будущем появятся детский сад и поликлиника, запроектированы спортивные и десткие игровые площадки. Дом Женева находится в шаговой доступности от строящейся станции метро Аэродромная и торгово-развлекательного комплекса Avia mall. 

 

Показать еще

Обновлен 02.04.2026
  • 2023
  • стандарт
  • каркасно-блочный
  • Дом сдан

На карте
Показать инфраструктуру и панораму на карте
Квартиры
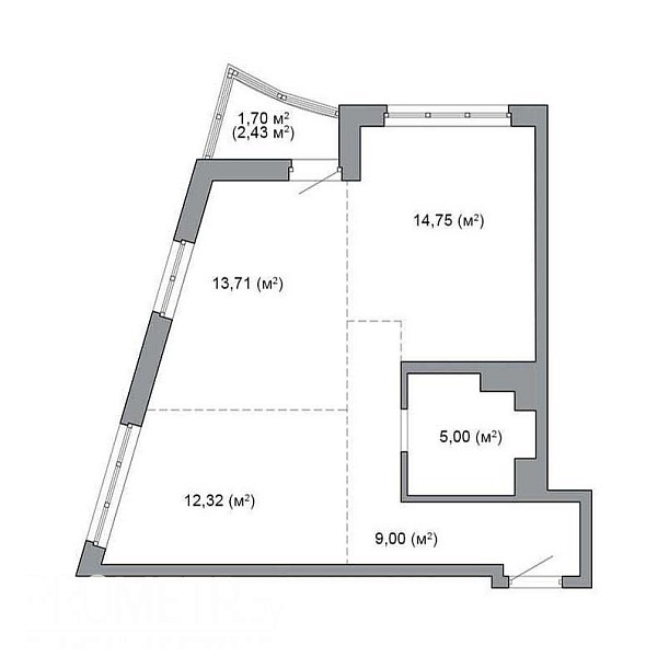
Планировки
Ход строительства 12.14 "Женева", квартал "Западная Европа"

Узнай какая новостройка тебе подходит

Вопрос из

1. Сколько вы готовы потратить на покупку новостройки?

Вопрос из

2. Желаемая площадь

Вопрос из

3. Какой тип застройки Вы предпочитаете?

Вопрос из

4. Какой район города Вам нравится больше всего?

Вопрос из

5. Выберите срок сдачи

Размещение информации об этом объекте не носит коммерческий характер и представлено для максимально полного информирования о рынке новостроек Минска и Беларуси. Информация взята из открытых источников, актуализируется не реже одного раза в месяц.
Обновлен 02.04.2026
  • 2023
  • стандарт
  • каркасно-блочный
  • Дом сдан