09.23

Новая Боровая
Личный кабинет
Войти с помощью соцсетей:
Для сброса пароля свяжитесь с менеджером по электронной почте: zenevich@t-s.by
Восстановление пароля
Придумайте новый пароль
Подтвердите новый пароль
Пароль минимум 7 символов. Буквы A-z (мин. одна заглавная) и цифры 0-9.

7.12. "Анталья", квартал "Средиземноморский"

нет в продаже
ул. Жореса Алферова
/
Обновлен 13.04.2026
  • 1 квартал 2026
  • стандарт
  • каркасно-блочный
  • Строительство надземной части (выше 2 этажа)

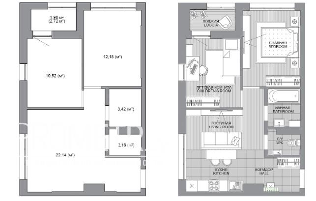
Дом Анталья в квартале Средиземноморский. Одна секция в 14 этажей по 10 квартир на этаже, начиная со 2-ого. Из лестнично-лифтового холла запроектированы выходы в 2 межквартирных коридора, в каждый из коридоров выходит по 5 квартир. Фишки: на 2 этаже 6 квартир – с собственными огражденными террасами, со всех террас есть выход на эксплуатируемую кровлю стилобата. Квартиры 3-14 этаж типовые, балконы - с ограждением экранного типа из безопасного стекла. На первом этаже размещены коммерческие помещения. Кровля дома не эксплуатируемая

Показать еще

Обновлен 13.04.2026
  • 1 квартал 2026
  • стандарт
  • каркасно-блочный
  • Строительство надземной части (выше 2 этажа)

На карте
Показать инфраструктуру и панораму на карте
Квартиры
Ход строительства 7.12. "Анталья", квартал "Средиземноморский"

Узнай какая новостройка тебе подходит

Вопрос из

1. Сколько вы готовы потратить на покупку новостройки?

Вопрос из

2. Желаемая площадь

Вопрос из

3. Какой тип застройки Вы предпочитаете?

Вопрос из

4. Какой район города Вам нравится больше всего?

Вопрос из

5. Выберите срок сдачи

Размещение информации об этом объекте не носит коммерческий характер и представлено для максимально полного информирования о рынке новостроек Минска и Беларуси. Информация взята из открытых источников, актуализируется не реже одного раза в месяц.
Обновлен 13.04.2026
  • 1 квартал 2026
  • стандарт
  • каркасно-блочный
  • Строительство надземной части (выше 2 этажа)