09.23

Новая Боровая
Личный кабинет
Войти с помощью соцсетей:
Для сброса пароля свяжитесь с менеджером по электронной почте: zenevich@t-s.by
Восстановление пароля
Придумайте новый пароль
Подтвердите новый пароль
Пароль минимум 7 символов. Буквы A-z (мин. одна заглавная) и цифры 0-9.

29.5 «Осло», квартал "Северная Европа"

от 329 071.0 BYN (116 259 USD)
ул. Кижеватова
/
Обновлен 02.04.2026
  • 4 квартал 2021
  • стандарт
  • каркасно-блочный
  • Дом сдан
Узнать подробнее
Упростить выбор / покупку

Скандинавские страны из года в год занимают лидирующие строчки списка самых счастливых стран мира. Секрет кроется в сохранении баланса между всеми сферами жизни, будь то работа, развлечения или семья.

Чтобы жители многофункционального комплекса Minsk World могли прочувствовать на себе эту удивительную философию, архитекторы создали дома «Стокгольм» и «Осло» в северноевропейском квартале. Застройщик планирует сдать их во второй половине 2021 года.

Квартал «Северная Европа» сочетает в себе комфорт городской жизни и экологичность загородной. Вся инфраструктура комплекса, в том числе детская и взрослая поликлиники, будет в пешей доступности, внутри квартала запроектирован детский сад, игровые и спортивные площадки, зоны отдыха и выгула домашних животных. Здесь будет много деревьев, кустарников и цветов, а через дорогу – шикарный парк – «зеленое» сердце проекта.

Парк запроектирован в самом центре комплекса

Квартал «Северная Европа» - отличный вариант в плане расположения. Одна из его границ – улица Кижеватова – важная магистраль столицы.  Отсюда удобно добираться в центр и к Минской кольцевой дороге. В нескольких минутах ходьбы находится метро и остановки наземного транспорта.

Дома «Осло» и «Стокгольм» расположены в разных частях квартала, но они схожи по техническим и качественным характеристикам. Каждый квадратный метр здесь создавался с заботой о клиентах. Именно поэтому все квартиры со свободной планировкой, а окна – панорамные, есть остекленные лоджии и террасы с защитными козырьками. Так в квартиру попадет больше естественного света, а любое дизайнерское решение будет выглядеть оригинально. В качестве бонуса застройщик предлагает первичную бесплатную консультацию дизайнеров.

Показать еще

Обновлен 02.04.2026
  • 4 квартал 2021
  • стандарт
  • каркасно-блочный
  • Дом сдан
Узнать подробнее
Упростить выбор / покупку

На карте
Показать инфраструктуру и панораму на карте
Квартиры
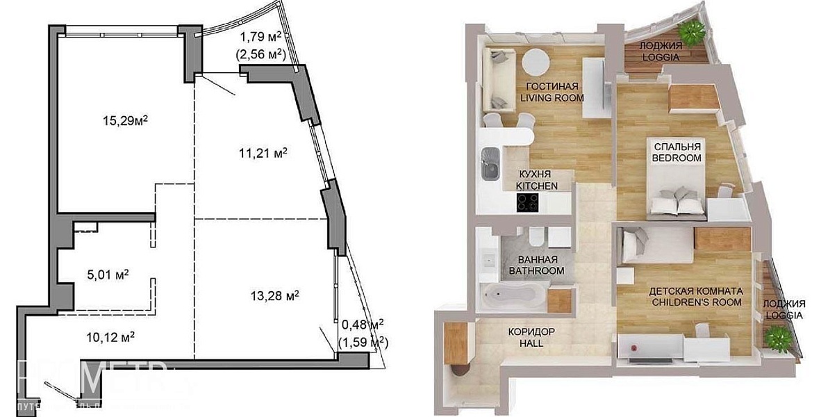
Планировки
Ход строительства 29.5 «Осло», квартал "Северная Европа"

Узнай какая новостройка тебе подходит

Вопрос из

1. Сколько вы готовы потратить на покупку новостройки?

Вопрос из

2. Желаемая площадь

Вопрос из

3. Какой тип застройки Вы предпочитаете?

Вопрос из

4. Какой район города Вам нравится больше всего?

Вопрос из

5. Выберите срок сдачи

Размещение информации об этом объекте не носит коммерческий характер и представлено для максимально полного информирования о рынке новостроек Минска и Беларуси. Информация взята из открытых источников, актуализируется не реже одного раза в месяц.
Обновлен 02.04.2026
  • 4 квартал 2021
  • стандарт
  • каркасно-блочный
  • Дом сдан
Узнать подробнее
Упростить выбор / покупку