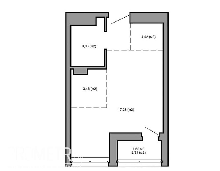
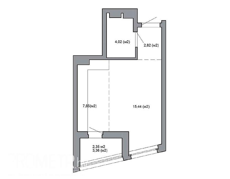
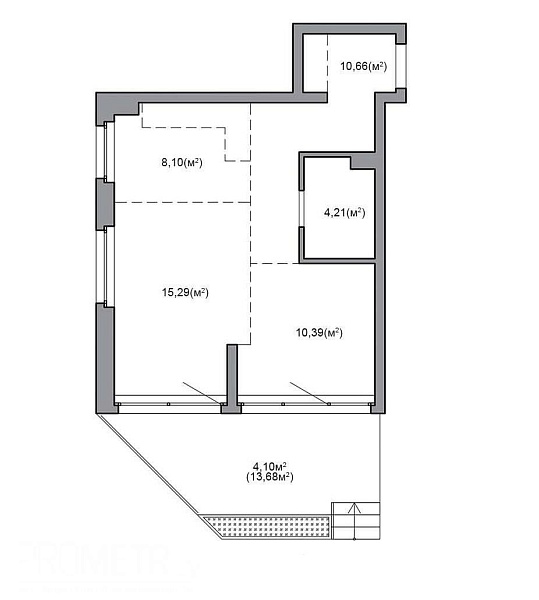
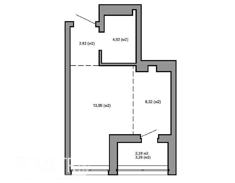
«Дубровник» - это современный каркасно-монолитный дом высотой 25 этажей с квартирами площадью от 27 до 65 кв. метров. Высота потолков – 2,7 метра.
· Все квартиры – свободной планировки. Вы сможете реализовать практически любую свою дизайнерскую идею!
· В доме – 3 бесшумных и скоростных лифта известного мирового производителя OTIS грузоподъемностью 1000 и 450 кг. В том числе и панорамный!
Большие окна от потолка до пола, остекленные лоджии и балконы. Солнца и света в квартирах будет много! Кстати, для безопасности и удобства жильцов нижняя часть окна высотой 1,1 метра от пола будет глухой с заполнением триплексом. Ограждения нижних частей лоджий – металлические со вставками из листов перфорированного металла.
· Просторные, светлые, с потолками высотой 3,6 метра и дизайнерским оформлением – лобби дома «Дубровник» будут дарить позитивные эмоции каждый день! А полный набор удобств позволит почувствовать себя как в пятизвездочном отеле в Хорватии или Черногории: здесь будет стойка консьержа, зона ожидания гостей, санитарная комната с пеленальным столиком.
· Предусмотрен байк-бокс для хранения велосипедов. Также на первом этаже расположатся административно-торговые помещения.
· Из дома выходы на обе стороны – можно свернуть во двор, когда отправляетесь с ребенком на прогулку, или на улицу, если спешите на работу. Очень удобно!
· Выходы оборудованы с использованием принципов безбарьерного пространства – для дополнительного комфорта людей с ограниченными способностями и мамочек с детскими колясками. Дом будет сдан в эксплуатацию в феврале 2022 года.
Беспроцентная рассрочка на срок до 100 месяцев:
· Без справок о доходах и поручителей.
· Для оформления договора нужен только паспорт.
· Первоначальный взнос от 30%.
Партнерский кредит Белинвестбанка:
· Доля участия собственными средствами – всего от 10%.
· В первый год ставка составит всего 10,99%
· Максимальный срок – до 20 лет.
· При желании вы сможете погасить кредит досрочно – без штрафных санкций.
ООО "Твоя столицаконсалт", УНП 190285638, лицензия №02240/129 от 06.09.06г.
Договор на оказание риэлтерских услуг № 447/6, от 04.09.2025
Специалист Сектора ипотечного кредитования поможет выбрать кредит, сделать расчеты и оформить пакет документов на получение кредитных средств.
Партнерская программа:
Первоначальный взнос от 0%.
На квартиры в готовых домах применяется специальный калькулятор с возможностью рассрочки до 48 месяцев. Первоначальный взнос не менее 30% с удорожанием стоимости. Также доступна экспресс-рассрочка до 12 месяцев.
На квартиры в строящихся домах (кроме апартаментов) применяется специальный калькулятор с возможностью рассрочки до 48 месяцев. Первоначальный взнос не менее 20% с удорожанием стоимости. Также доступна экспресс-рассрочка до 12 месяцев.