Личный кабинет
Войти с помощью соцсетей:
Для сброса пароля свяжитесь с менеджером по электронной почте: zenevich@t-s.by
Восстановление пароля
Придумайте новый пароль
Подтвердите новый пароль
Пароль минимум 7 символов. Буквы A-z (мин. одна заглавная) и цифры 0-9.

Описание

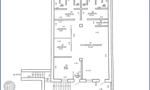
Сдается встроенное помещение в г.Минск, ул. И. Лученка, 15. Многофункциональное помещение площадью 147,2 м.кв., находится на первом этаже жилого дома, имеет два отдельных входа. Коммуникации и инженерия: электричество, центральное отопление, система приточно- вытяжной вентиляции с принудительным побуждением, пожарная сигнализация, подведена вода и канализация, резервный источник питания РИП-12. Рядом расположены: Международный финансовый центр, ТЦ "Авиа Молл", ст. метро "Аэродромная". Варианты использования: Банк,, Визовый центр, Аптека, Мед. центр, Общепит и пр. Арендатор не оплачивает услуги агентства. ОДО «Твоя столицаконсалт», лицензия выд. Минюстом 20.09.2006 № 02240/129, УНП 190285638, договор РУ №48/6а от 16.04.2026

Характеристики

Тип здания
в жилом доме
Название объекта
Сфера услуг
Этаж / этажность
1 / 25
Отдельный вход
Арендуемая площадь
147.2 м 2
Высота потолка
от 3.5 м.
Собственный с/у
2с/у
Парковка

Аренда помещения Минск, Игоря Лученка, 15

  • Минск, Игоря Лученка, 15
  • 147.2 м2
    общая площадь
  • 116.0 руб./м 2 в мес.
    (от 35 EUR) без НДС (УСН)
Контакты
Получить консультацию по коммерческой недвижимости
В сравнении 0