09.23

право (7).png
Личный кабинет
Войти с помощью соцсетей:
Для сброса пароля свяжитесь с менеджером по электронной почте: zenevich@t-s.by
Восстановление пароля
Придумайте новый пароль
Подтвердите новый пароль
Пароль минимум 7 символов. Буквы A-z (мин. одна заглавная) и цифры 0-9.
eye
0 просмотр
Обновлен 01.12.2025

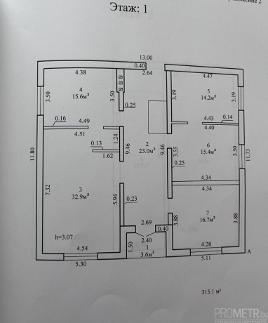
Продажа 5-комнатной квартиры, 315м2, 2 этаж

96 973.0 BYN
(34 500 USD)
Собственник
Фото объекта 1Фото объекта 2Фото объекта 3Фото объекта 4Фото объекта 5Фото объекта 6Фото объекта 7Фото объекта 8Фото объекта 9Фото объекта 10Фото объекта 11Фото объекта 12Фото объекта 13
Описание квартиры:
315 м2 - общая площадь
150 м2 - жилая площадь
20 м2 - кухня
Количество комнат: 5
2 этаж
Балкон или лоджия: нет
О доме:
Продается просторный кирпичный дом в г. Слониме – идеальный выбор для большой семьи!<br />
<br />
Адрес: г. Слоним, 4-й Нагорный переулок, 31.<br />
Общая площадь: 315,1 кв.м.<br />
Участок: 10 соток.<br />
<br />
Дом находится в тихом районе частного сектора, окруженном дружелюбными и отзывчивыми соседями. Прекрасное место для комфортной жизни!<br />
<br />
Особенности дома:<br />
<br />
•  Готовность: 80% готовности, что позволяет вам завершить отделку по своему вкусу и создать интерьер своей мечты.<br />
•  Коммуникации: В дом подведена вода, электричество разведено по всему дому. Имеется готовый проект на газ. В большей части дома уже выполнена черновая отделка.<br />
•  Дополнительные помещения: Под домом расположен вместительный гараж с ямой и просторные подвальные помещения.<br />
<br />
Преимущества:<br />
<br />
•  Простор и планировка: Большая площадь (315 кв.м) и возможность свободной планировки идеально подойдут для большой семьи.<br />
•  Обширный участок (10 соток): Отличная возможность обустроить прекрасный сад, огород или уютную зону отдыха.<br />
•  Уникальное расположение: Всего в 7 минутах езды от дома находится агрогородок Жировичи, известный своим Свято-Успенским монастырем – уникальным архитектурным комплексом XVII-XVIII веков и одним из главных духовных центров Беларуси. Жировичи славятся своей чудотворной Жировичской иконой Божией Матери.<br />
  •  Близость к природе (рядом лес) и удобная транспортная доступность (проходит объездная дорога).<br />
<br />
Финансовая и юридическая информация:<br />
<br />
•  Документы: Все документы готовы к продаже.<br />
•  Кредит: Возможна продажа через кредит банка.<br />
•  Торг: Уместен!<br />
<br />
Звоните (пишите) прямо сейчас, чтобы узнать больше и договориться о просмотре!<br />
Не упустите свой шанс стать владельцем этого прекрасного дома в тихом районе, рядом со святым местом!<br />
<br />
•  Рассмотрю все предложенные варианты.<br />
•  Убедительная просьба риэлторские агентства не беспокоить!
Возможно купить в лизинг
logo_bank
Выгодная альтернатива кредитам при покупке квартир на вторичном рынке и готовых новостроек.
Узнайте больше у консультантов Prometr.by
Получить бесплатную консультацию.png
от 13%
60,120 месяцев
Площадь: 315 / 150 / 20 м2
Этаж: 2
Цена:
96 973.0 BYN (34 500 USD)
consultation
Проверьте квартиру и проведите сделку безопасно. Подробнее
Собственник:
Имя: Татьяна
Купить квартиру в Минске в новостройке: список предложений
Добавить объявление