09.23

право (7).png
Личный кабинет
Войти с помощью соцсетей:
Для сброса пароля свяжитесь с менеджером по электронной почте: zenevich@t-s.by
Восстановление пароля
Придумайте новый пароль
Подтвердите новый пароль
Пароль минимум 7 символов. Буквы A-z (мин. одна заглавная) и цифры 0-9.
eye
0 просмотр
Обновлен 25.04.2026

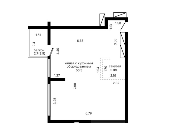
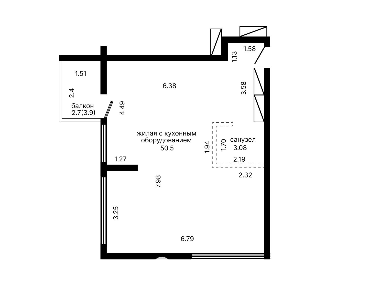
Продажа 3-комнатной квартиры, 57м2, 10 этаж

417 796 BYN
(149 000 USD)
Описание квартиры:
57 м2 - общая площадь
50 м2 - жилая площадь
1 м2 - кухня
Количество комнат: 3
Ремонт: Косметический
Санузел: Совмещенный
10 из 16 этажей
Высота потолков: 2.73 м
Балкон или лоджия: 1
О доме:
Тип дома: Современная панель
Год постройки: 2021
Стены: Каркасно блочные
Современная евротрёшка в доме «Калининград» — центр Минск Мира

ул. Игоря Лученка, 7 | Октябрьский район, Минск

Пространство, где стиль, функциональность и локация сошлись в едином, безупречном решении. Квартира для жизни «без компромиссов» и объект с высокой инвестиционной привлекательностью.

О квартире

Трёхкомнатная квартира формата евротрёшка расположена на 10 этаже 16‑этажного каркасно‑блочного дома 2021 года постройки — известного дома «Калининград», находящегося в центральной части жилого комплекса Minsk World.

Площадь по СНБ — 57 м² Общая площадь — 54,3 м² Жилая площадь — 50 м² Высота потолков — 2,73 м

Застеклённая лоджия

Планировка продумана до мелочей:

две изолированные спальни,

просторная кухня‑гостиная с функциональным зонированием,

отдельные зоны для отдыха, работы и приёма гостей.

Интерьер и оснащение

В квартире выполнен качественный современный ремонт, и она полностью готова к проживанию — формат «заезжай и живи».

Внутреннее оснащение:

  • Посудомоечная машина Bosch
  • Кондиционер (режим охлаждение + обогрев)
  • Квариловая ванна Villeroy & Boch
  • Тёплый пол в ванной комнате
  • Бойлер на 50 литров
  • Обеденная зона + барная стойка
  • Отдельная рабочая зона
  • Уютная ТВ‑зона

Каждый элемент интерьера работает на удобство повседневной жизни: комфортно жить, работать из дома и отдыхать.

Дом и уровень сервиса

Дом «Калининград» — современный и комфортный объект с продуманной архитектурой и сервисом:

  • Стильное дизайнерское лобби на первом этаже
  • Три лифта, включая панорамный
  • Аккуратный, ухоженный подъезд
  • Спокойные, доброжелательные соседи
Локация — одно из главных преимуществ

Дом расположен в центральной части Минск Мира — самой сбалансированной по инфраструктуре и транспортной доступности.

Метро — всего около 500 м пешком

Школа — через дорогу

Детский сад — прямо во дворе

В пешей доступности:

  • магазины и сервисы
  • аптеки, поликлиники
  • кафе и городская инфраструктура нового формата

Отличное транспортное сообщение и быстрый доступ к центру города.

Возможно купить в лизинг
logo_bank
Выгодная альтернатива кредитам при покупке квартир на вторичном рынке и готовых новостроек.
Узнайте больше у консультантов Prometr.by
Получить бесплатную консультацию.png
от 13%
60,120 месяцев
Площадь: 57 / 50 / 1 м2
Этаж: 10 из 16 этаж
Цена:
417 796 BYN (149 000 USD)
Продажа
Агентство :
ООО "ТВОЯ СТОЛИЦА"
УНП: 101136973
Лицензия: № 02240/15 от 17.02.2005 г
Договор: 454/13 от 23.04.2026
Похожие предложения
Фото объекта 1
Агентство
с ремонтом
eye 39
15.04.2026
Минск, Минская область, Аладовых ул.., 17, метро Кунцевщина
81 / 53.6 / 9.4 м2
8 этаж
Фото объекта 1
Собственник
12.03.2026
Минск, Чкалова ул.., 18/1
76.8 / 38 / 11.2 м2
11 этаж
Фото объекта 1
Собственник
eye 90
12.03.2026
Минск, Николы Теслы ул.., 29
51.3 / 33.9 / 7 м2
11 этаж
Фото объекта 1
Агентство
с ремонтом
eye 96
11.03.2026
Минск, Минская область, Аэродромная ул.., 26
60.2 / 54.4 / 1 м2
18 этаж
Фото объекта 1
Агентство
с ремонтом
eye 125
15.01.2026
Минск, Минская область, Жореса Алфёрова ул.., 12
56 / 49.6 / 1 м2
25 этаж
Фото объекта 1
Собственник
с ремонтом
eye 205
08.11.2025
Минск, 6
77.10 / 38.80 / 21 м2
17 этаж
Купить квартиру в Минске в новостройке: список предложений
Добавить объявление