09.23

право (7).png
Личный кабинет
Войти с помощью соцсетей:
Для сброса пароля свяжитесь с менеджером по электронной почте: zenevich@t-s.by
Восстановление пароля
Придумайте новый пароль
Подтвердите новый пароль
Пароль минимум 7 символов. Буквы A-z (мин. одна заглавная) и цифры 0-9.
eye
0 просмотр
Обновлен 09.04.2026

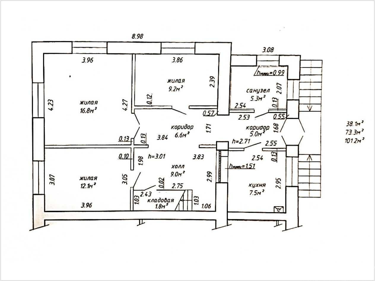
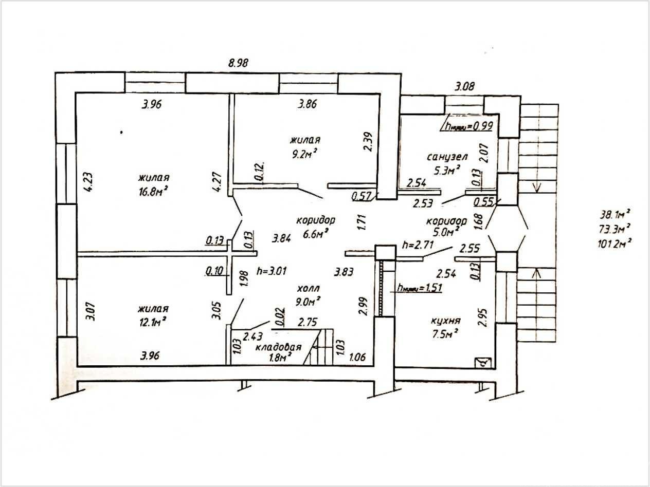
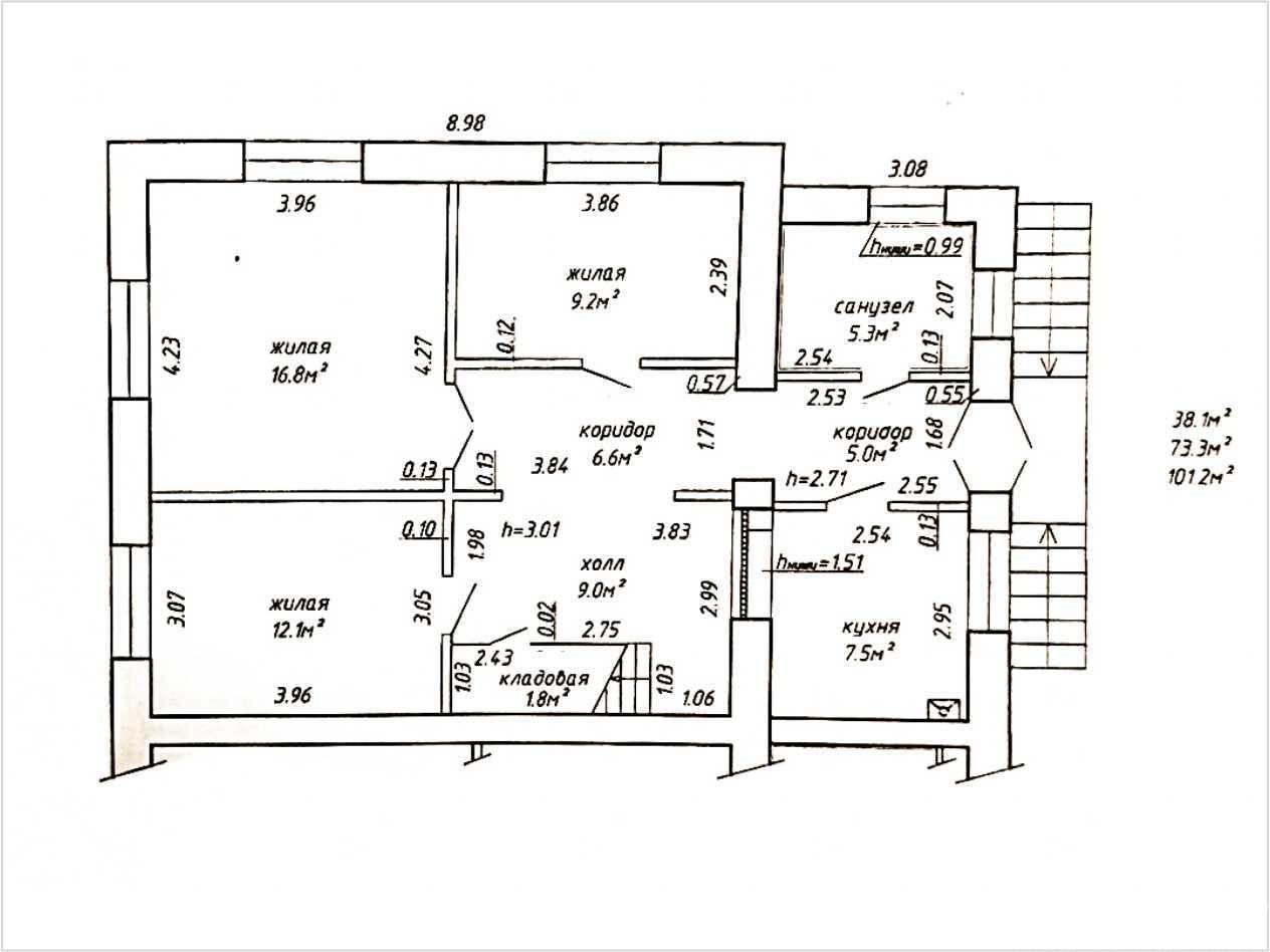
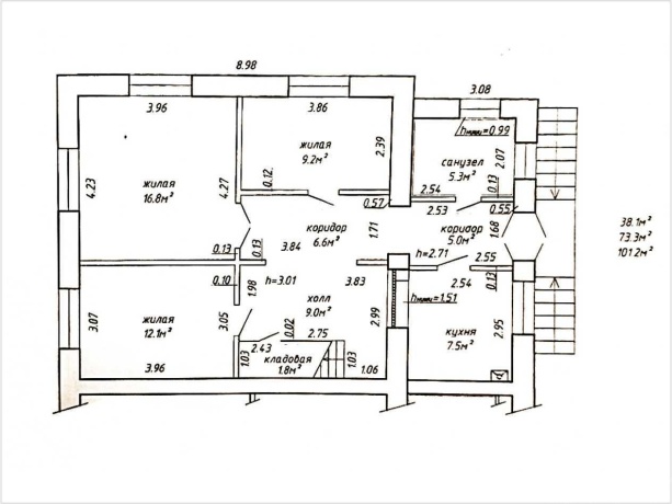
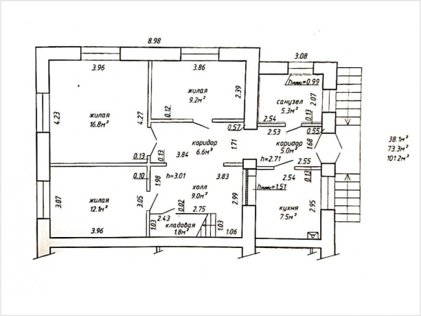
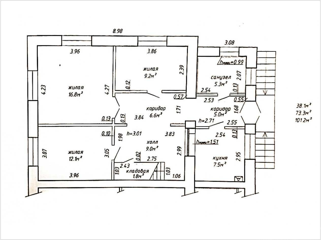
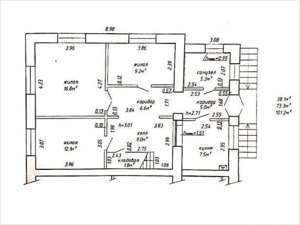
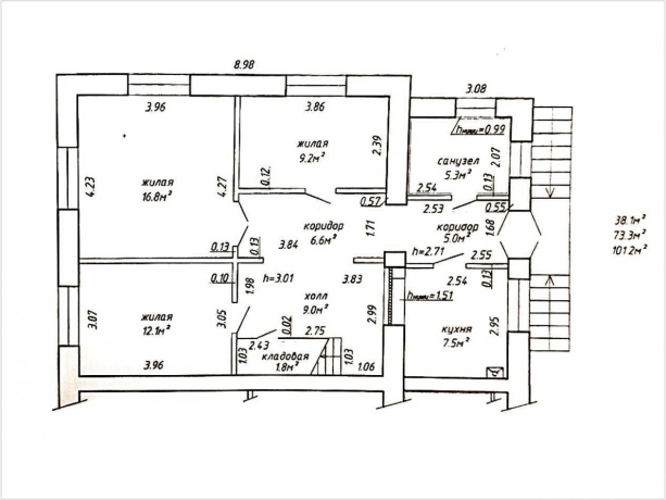
Продажа 3-комнатной квартиры, 101.2м2, 1 этаж

311 608 BYN
(110 000 USD)
Описание квартиры:
101.2 м2 - общая площадь
38.1 м2 - жилая площадь
7.5 м2 - кухня
Количество комнат: 3
Ремонт: Дизайнерский
Санузел: Совмещенный
1 из 2 этажей
Балкон или лоджия: нет
О доме:
Тип дома: Не типовая
Год постройки: 1975
Стены: Кирпич

Уютный уголок города идеально подойдет для комфортной жизни!

Квартира находится на первом этаже двухэтажного кирпичного дома 1975 года постройки, что гарантирует надежность и хорошую шумоизоляцию. Общая площадь составляет внушительные 101.2 кв.м, из которых 38.1 кв.м приходится на жилую зону, а кухня имеет площадь 7.5 кв.м. Вы оцените отличное состояние ремонта: квартира полностью готова к заселению и не требует дополнительных вложений. Установлена металлическая дверь и современные стеклопакеты, что обеспечивает тепло и тишину. Санузел совмещенный.

Квартира продается с бытовой техникой, что позволит вам сразу же наслаждаться всеми удобствами. Дополнительным преимуществом является наличие подвала для хранения вещей.

Расположение просто замечательное – вы находитесь в центре города, но при этом окружены зеленой зоной. Территория дома огорожена, что обеспечивает дополнительную безопасность и уют. Для вашего автомобиля предусмотрена стоянка.

Не упустите возможность стать обладателем этой прекрасной квартиры в историческом кирпичном доме! Отличное сочетание комфорта, инфраструктуры и местоположения.

Просьба от продавца - осмотр объекта только с агентом объекта!

Звоните, чтобы узнать подробности и договориться о просмотре.

Возможно купить в лизинг
logo_bank
Выгодная альтернатива кредитам при покупке квартир на вторичном рынке и готовых новостроек.
Узнайте больше у консультантов Prometr.by
Получить бесплатную консультацию.png
от 13%
60,120 месяцев
Площадь: 101.2 / 38.1 / 7.5 м2
Этаж: 1 из 2 этаж
Цена:
311 608 BYN (110 000 USD)
Продажа
Агентство :
ООО "ТВОЯ СТОЛИЦА"
УНП: 101136973
Лицензия: № 02240/15 от 17.02.2005 г
Договор: 926/13 от 01.10.2025
Похожие предложения
Фото объекта 1
Собственник
eye 50
18.03.2026
Минск, Партизанский просп.., 68
58 / 46 / 7.5 м2
1 этаж
Фото объекта 1
Агентство
с ремонтом
eye 85
17.12.2025
Минск, Минская область, Мирошниченко ул.., 49
62.6 / 42.95 / 7.31 м2
4 этаж
Фото объекта 1
Агентство
с ремонтом
eye 370
06.10.2025
Минск, Минская область, Руссиянова ул.., 12, метро Уручье
63.4 / 43.5 / 7.2 м2
6 этаж
Фото объекта 1
Агентство
с ремонтом
eye 856
10.09.2024
Минск, Минская область, Шабаны ул.., 13, метро Могилевская
74.5 / 42.6 / 9.2 м2
9 этаж
Фото объекта 1
Агентство
с ремонтом
eye 1438
04.06.2024
Минск, Минская область, Брилевская ул.., 37, метро Ковальская Слобода
54.9 / 50.2 / 1 м2
24 этаж
Купить квартиру в Минске в новостройке: список предложений
Добавить объявление