09.23

право (7).png
Личный кабинет
Войти с помощью соцсетей:
Для сброса пароля свяжитесь с менеджером по электронной почте: zenevich@t-s.by
Восстановление пароля
Придумайте новый пароль
Подтвердите новый пароль
Пароль минимум 7 символов. Буквы A-z (мин. одна заглавная) и цифры 0-9.
eye
0 просмотр
Обновлен 06.05.2026

Продажа 3-комнатной квартиры, 65.9м2, 21 этаж

Агентство
с ремонтом
Фото объекта
Описание квартиры:
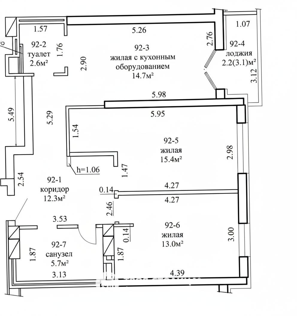
65.9 м2 - общая площадь
43.1 м2 - жилая площадь
14.7 м2 - кухня
Количество комнат: 3
Ремонт: Дизайнерский
Санузел: Раздельный
21 из 22 этажей
Балкон или лоджия: 1
О доме:
Тип дома: Современная непанель
Год постройки: 2022
Стены: Каркасно блочные

Предлагаем к продаже 3-комнатную квартиру в престижном Советском районе Минска, по адресу ул. Богдановича 144. Это идеальное предложение для тех, кто ищет комфортное жилье в современном доме с развитой инфраструктурой в Минске.

Квартира расположена на 21 этаже 22-этажного каркасно-блочного дома, построенного в 2022 году. Отличный вид из окон, светлые и уютные комнаты. Общая площадь составляет 65.9 м2 (СНБ), жилая — 43.1 м2, а просторная кухня — 14.7 м2 — станет центром семейных встреч.

Квартира с отличным ремонтом, выполненным с использованием качественных материалов. Вам не придется тратить время и средства на обустройство – здесь уже есть все необходимое для комфортного проживания. В квартире установлены встроенные шкафы, качественная металлическая дверь, стеклопакеты, а также вся необходимая мебель, встроенная кухня с техникой европейских производителей. Раздельный санузел. Дополнительный бонус - наличие бойлера, перебоев с горячей водой точно не будет.

Район отличается развитой инфраструктурой: школы, поликлиники, детские сады, магазины и торговые центры. Наличие зеленой зоны поблизости создает прекрасные условия для отдыха и прогулок.

Эта квартира - воплощение вашей мечты о современном и уютном доме. Не упустите шанс приобрести квартиру с ремонтом в одном из лучших районов столицы.

Звоните прямо сейчас, чтобы узнать больше и договориться о просмотре!

Возможно купить в лизинг
logo_bank
Выгодная альтернатива кредитам при покупке квартир на вторичном рынке и готовых новостроек.
Узнайте больше у консультантов Prometr.by
Получить бесплатную консультацию.png
от 13%
60,120 месяцев
Площадь: 65.9 / 43.1 / 14.7 м2
Этаж: 21 из 22 этаж
Продажа
Агентство :
ООО "ТВОЯ СТОЛИЦА"
УНП: 101136973
Лицензия: № 02240/15 от 17.02.2005 г
Договор: 391/13 от 08.04.2026
Похожие предложения
Фото объекта 1
Агентство
с ремонтом
eye 10
15.05.2026
Минск, Минская область, Колесникова ул.., 37, метро Каменная горка
71.8 / 44.3 / 9.3 м2
6 этаж
Фото объекта 1
Агентство
с ремонтом
eye 11
15.05.2026
Минск, Минская область, Водолажского ул.., 19
62 / 41 / 8.2 м2
9 этаж
Фото объекта 1
Собственник
eye 22
13.05.2026
Вилейка, 17 Сентября ул.., 26
80 / 44 / 9 м2
1 этаж
Фото объекта 1
Агентство
с ремонтом
eye 9
13.05.2026
Минск, Минская область, Гвишиани ул.., 4, метро Уручье
75 / 45.2 / 9.5 м2
4 этаж
Фото объекта 1
Собственник
eye 19
12.05.2026
Орша, 11
53.90 / 36.20 / 8.00 м2
5 этаж
Фото объекта 1
Агентство
с ремонтом
eye 24
11.05.2026
Минск, Минская область, Притыцкого ул.., 97, метро Каменная горка
61.4 / 24.2 / 20.4 м2
7 этаж
Фото объекта 1
Собственник
eye 52
10.05.2026
Подсвилье, 59
60 / 37 / 8 м2
2 этаж
Фото объекта 1
Агентство
с ремонтом
eye 30
08.05.2026
Минск, Минская область, Кольцова ул.., 32
73.43 / 53.02 / 6.67 м2
7 этаж
Фото объекта 1
Агентство
с ремонтом
eye 49
06.05.2026
Минск, Минская область, Братская ул.., 13
55.4 / 43.7 / 1 м2
6 этаж
Фото объекта 1
Агентство
с ремонтом
eye 39
06.05.2026
Минск, Минская область, Кальварийская ул.., 5, метро Фрунзенская
90.4 / 54.1 / 7.9 м2
3 этаж
Фото объекта 1
Агентство
с ремонтом
eye 45
05.05.2026
Минск, Минская область, Бурдейного ул.., 14, метро Кунцевщина
106.2 / 54.3 / 13.6 м2
2 этаж
Фото объекта 1
Агентство
с ремонтом
eye 40
04.05.2026
Минск, Минская область, Гинтовта ул.., 40
71.1 / 43 / 9.2 м2
1 этаж
Фото объекта 1
Агентство
с ремонтом
eye 43
03.05.2026
Минск, Минская область, Аэродромная ул.., 32
69.7 / 62.8 / 1 м2
4 этаж
Фото объекта 1
Агентство
с ремонтом
eye 27
30.04.2026
Минск, Минская область, Победителей просп.., 97, 1
64.3 / 38.1 / 8.9 м2
12 этаж
Купить квартиру в Минске в новостройке: список предложений
Добавить объявление