09.23

право (7).png
Личный кабинет
Войти с помощью соцсетей:
Для сброса пароля свяжитесь с менеджером по электронной почте: zenevich@t-s.by
Восстановление пароля
Придумайте новый пароль
Подтвердите новый пароль
Пароль минимум 7 символов. Буквы A-z (мин. одна заглавная) и цифры 0-9.
eye
0 просмотр
Обновлен 22.05.2026

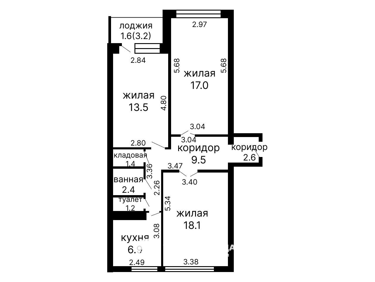
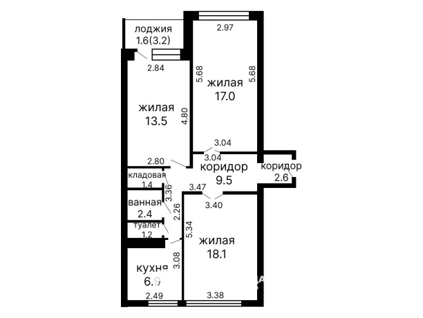
Продажа 3-комнатной квартиры, 72.6м2, 5 этаж

341 438.0 BYN
ориентировочная цена
Описание квартиры:
72.6 м2 - общая площадь
48.6 м2 - жилая площадь
74.2 м2 - площадь по СНБ
6.9 м2 - кухня
Количество комнат: 3
Ремонт: Косметический
Санузел: Раздельный
5 из 9 этажей
Высота потолков: 2.52 м
Балкон или лоджия: 1
О доме:
Тип дома: Стандартная
Год постройки: 1977
Год кап. ремонта: 2024
Стены: Кирпич

Трехкомнатная квартира возле Севастопольского парка!

Практичная и функциональная планировка: три изолированные комнаты, раздельный санузел, практически квадратная кухня, просторный коридор и широкая лоджия.

Окна выходят на противоположные стороны дома. Аккуратный и чистый подъезд. На придомовой территории достаточно гостевых парковок - всегда найдётся свободное место.

На полу в жилых комнатах и коридоре уложен паркет Кухня с газовой плитой. Простор для творчества: квартира под ремонт, но с удачной планировкой

В доме в 2024 году выполнен капитальный ремонт: обновлен фасад здания, заменены сантехнические трубы и установлены счетчики воды.

В шаговой доступности находятся детские сады, гимназия, поликлиника, магазины, кафе, объекты сервисного обслуживания, медицинские центры.

Развитая транспортная сеть со всеми районами столицы и ближайшим пригородом: автобусы, трамваи, троллейбусы и маршрутное такси. Удобный выезд на МКАД. В ближайшей перспективе рядом откроется Зелёная ветка метро.

Недалеко от дома расположены Северный лесопарк, Полоцкий и Севастопольский парки, набережная канала Слепянской водной системы, экотропа и Цнянское водохранилище, окруженное хвойным лесом, места для прогулок, активного отдыха и занятий спортом.

Трехкомнатная квартира Логойский тракт 25 (Советский район):

Материал стен: кирпичный;

Год постройки: 1977;

Гол капитального ремонта: 2024;

Этаж: 5/9, лоджия застеклена;

Общая площадь: 72,6 кв.м.;

Жилая площадь: 48,6 кв.м.;

Площадь кухни: 6.9 кв.м.;

Высота потолка: 2.52 м.

Возможно купить в лизинг
logo_bank
Выгодная альтернатива кредитам при покупке квартир на вторичном рынке и готовых новостроек.
Узнайте больше у консультантов Prometr.by
Получить бесплатную консультацию.png
от 13%
60,120 месяцев
Площадь: 72.6 / 48.6 / 6.9 м2
Этаж: 5 из 9 этаж
Цена:
341 438.0 BYN
ориентировочная цена,
Продажа
Агентство :
ООО "ТВОЯ СТОЛИЦА"
УНП: 101136973
Лицензия: № 02240/15 от 17.02.2005 г
Договор: 377/13 от 06.04.2026
Похожие предложения
Фото объекта 1
Агентство
с ремонтом
eye 60
29.04.2026
Минск, Минская область, Горецкого ул.., 39
63.2 / 43.2 / 7.1 м2
3 этаж
Фото объекта 1
Агентство
с ремонтом
eye 74
27.04.2026
Минск, Минская область, Мира просп.., 1, метро Ковальская Слобода
43.7 / 39.3 / 1 м2
12 этаж
Фото объекта 1
Агентство
с ремонтом
eye 87
17.04.2026
Минск, Минская область, Бельского ул.., 65
75.46 / 43.64 / 9.31 м2
7 этаж
Фото объекта 1
Агентство
с ремонтом
eye 74
16.04.2026
Минск, Минская область, Космонавтов ул.., 44
68.2 / 40.5 / 8.9 м2
2 этаж
Фото объекта 1
Агентство
с ремонтом
eye 90
10.02.2026
Минск, Минская область, Герасименко ул.., 19, метро Могилевская
71.6 / 43.2 / 9.32 м2
2 этаж
Фото объекта 1
Агентство
с ремонтом
eye 453
24.06.2025
агрогородок Сеница, Минская область, Купалы ул.., 3
113 / 39.6 / 16 м2
4 этаж
Фото объекта 1
Агентство
с ремонтом
eye 1494
04.06.2024
Минск, Минская область, Брилевская ул.., 37, метро Ковальская Слобода
54.9 / 50.2 / 1 м2
24 этаж
Купить квартиру в Минске в новостройке: список предложений
Добавить объявление