09.23

право (7).png
Личный кабинет
Войти с помощью соцсетей:
Для сброса пароля свяжитесь с менеджером по электронной почте: zenevich@t-s.by
Восстановление пароля
Придумайте новый пароль
Подтвердите новый пароль
Пароль минимум 7 символов. Буквы A-z (мин. одна заглавная) и цифры 0-9.
eye
0 просмотр
Обновлен 14.05.2026

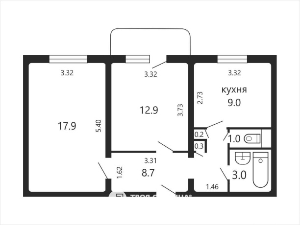
Продажа 2-комнатной квартиры, 52.4м2, 5 этаж

Агентство
с ремонтом
Фото объекта
Описание квартиры:
52.4 м2 - общая площадь
30.2 м2 - жилая площадь
9 м2 - кухня
Количество комнат: 2
Ремонт: Косметический
Санузел: Раздельный
5 из 9 этажей
Высота потолков: 2.5 м
Балкон или лоджия: 1
О доме:
Тип дома: Стандартная
Год постройки: 1993
Стены: Панель

Продается 2-комнатная квартира в Минске, Фрунзенский район, микрорайон Сухарево, по адресу: ул. Лобанка, 62.

Квартира расположена на 5 этаже 9-этажного дома 1993 года постройки.

Общая площадь по СНБ 53.4 составляет 52,4 м², жилая — 30,2 м², кухня — 9 м². Высота потолков — 2,50 м.

Квартира в хорошем жилом состоянии, выполнен качественный ремонт, что позволяет заехать и комфортно проживать без дополнительных вложений. Установлены стеклопакеты, металлическая входная дверь, приборы учета воды, домофон. Санузел раздельный, после свежего ремонта. Балкон застеклен и также отремонтирован, что создает дополнительное функциональное пространство.

Дом расположен в районе с развитой инфраструктурой: в шаговой доступности школа, детский сад, поликлиника, аптеки, магазины и объекты бытового обслуживания. Рядом зеленая зона для прогулок и отдыха.

Квартира отлично подойдет как для проживания, так и для инвестиции.

Возможно купить в лизинг
logo_bank
Выгодная альтернатива кредитам при покупке квартир на вторичном рынке и готовых новостроек.
Узнайте больше у консультантов Prometr.by
Получить бесплатную консультацию.png
от 13%
60,120 месяцев
Площадь: 52.4 / 30.2 / 9 м2
Этаж: 5 из 9 этаж
Продажа
Агентство :
ООО "ТВОЯ СТОЛИЦА"
УНП: 101136973
Лицензия: № 02240/15 от 17.02.2005 г
Договор: 376/13 от 06.04.2026
Похожие предложения
Фото объекта 1
Агентство
с ремонтом
eye 14
16.05.2026
Минск, Минская область, Авакяна ул.., 38
50.3 / 31.6 / 7.7 м2
3 этаж
Фото объекта 1
Агентство
с ремонтом
eye 26
15.05.2026
Минск, Минская область, Лосика ул.., 57, метро Каменная горка
41.8 / 35.4 / 1 м2
2 этаж
Фото объекта 1
Собственник
eye 36
14.05.2026
Подсвилье, Октябрьская ул.., 59а
68.5 / 45 / 10 м2
2 этаж
Фото объекта 1
Агентство
с ремонтом
14.05.2026
агрогородок Ратомка, Минская область, Солнечный пер.., 2
70.3 / 32.8 / 21.5 м2
1 этаж
Фото объекта 1
Агентство
с ремонтом
eye 13
13.05.2026
Минск, Минская область, Лермонтова ул.., 49, метро Грушевка
42.5 / 26.9 / 6 м2
4 этаж
Фото объекта 1
Агентство
с ремонтом
eye 24
11.05.2026
Минск, Минская область, Мястровская ул.., 24
72.9 / 50 / 10.36 м2
18 этаж
Фото объекта 1
Агентство
с ремонтом
eye 30
11.05.2026
Солигорск, Минская область, Козлова ул.., 21
37.8 / 23.3 / 6.1 м2
2 этаж
Фото объекта 1
Собственник
eye 30
11.05.2026
Илья, Советская ул.., 107
40 / 30 / 7.2 м2
1 этаж
Фото объекта 1
Собственник
eye 15
10.05.2026
Поставы, 46
44 / 30 / 7 м2
1 этаж
Фото объекта 1
Агентство
с ремонтом
eye 47
08.05.2026
Минск, Минская область, Кижеватова ул.., 3, Г
43.7 / 36.9 / 1 м2
7 этаж
Фото объекта 1
Агентство
с ремонтом
eye 44
08.05.2026
Минск, Минская область, Аэродромная ул.., 32
42.9 / 11 / 11.7 м2
2 этаж
Фото объекта 1
Агентство
с ремонтом
eye 11
05.05.2026
агрогородок Колодищи, Минская область, Военный Городок ул.., 230
65 / 34.5 / 10.1 м2
1 этаж
Фото объекта 1
Агентство
с ремонтом
eye 53
05.05.2026
Минск, Минская область, Ильянская ул.., 4
50.4 / 34.5 / 1 м2
7 этаж
Фото объекта 1
Агентство
с ремонтом
eye 55
04.05.2026
Заславль, Минская область, Дехновка ул.., 85, Б
53.4 / 30.6 / 8.1 м2
1 этаж
Фото объекта 1
Агентство
с ремонтом
eye 34
30.04.2026
Минск, Минская область, Ташкентская ул.., 2, А
51.93 / 29.36 / 9.28 м2
7 этаж
Фото объекта 1
Агентство
с ремонтом
eye 52
28.04.2026
Минск, Минская область, Васнецова ул.., 15, А
42.2 / 27.8 / 5.7 м2
3 этаж
Фото объекта 1
Агентство
с ремонтом
eye 70
28.04.2026
Минск, Минская область, Богдановича ул.., 78
53.2 / 33.9 / 10.1 м2
7 этаж
Фото объекта 1
Агентство
с ремонтом
eye 57
28.04.2026
Минск, Минская область, Нововиленская ул.., 51
42.3 / 29.8 / 1 м2
6 этаж
Фото объекта 1
Агентство
с ремонтом
eye 48
27.04.2026
Минск, Минская область, Рокоссовского просп.., 123, Б
62.1 / 31.2 / 9.6 м2
2 этаж
Купить квартиру в Минске в новостройке: список предложений
Добавить объявление