09.23

право (7).png
Личный кабинет
Войти с помощью соцсетей:
Для сброса пароля свяжитесь с менеджером по электронной почте: zenevich@t-s.by
Восстановление пароля
Придумайте новый пароль
Подтвердите новый пароль
Пароль минимум 7 символов. Буквы A-z (мин. одна заглавная) и цифры 0-9.
eye
0 просмотр
Обновлен 05.03.2026

Продажа 2-комнатной квартиры, 42.9м2, 1 этаж

0 BYN
ориентировочная цена
Агентство
с ремонтом
Фото объекта
Описание квартиры:
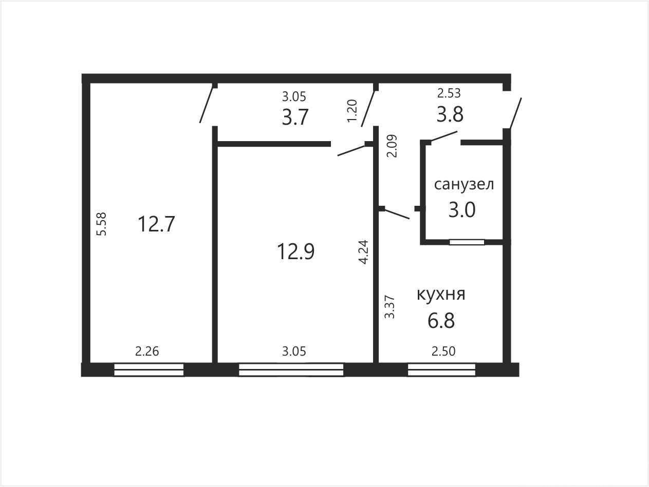
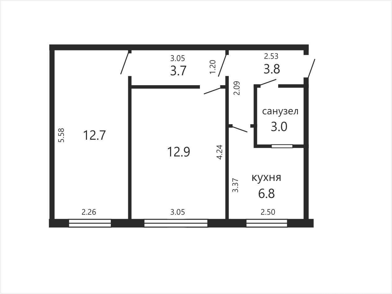
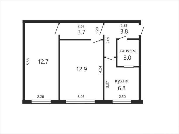
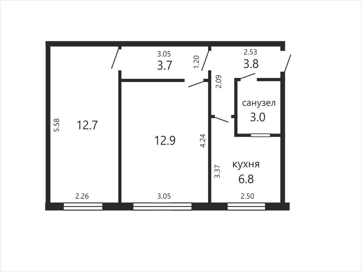
42.9 м2 - общая площадь
25.6 м2 - жилая площадь
6.8 м2 - кухня
Количество комнат: 2
Ремонт: Косметический
Санузел: Совмещенный
1 из 4 этажей
Высота потолков: 2.5 м
Балкон или лоджия: нет
О доме:
Тип дома: Хрущевка/брежневка
Год постройки: 1961
Год кап. ремонта: 2015
Стены: Кирпич

Двухкомнатная квартира в Октябрьском районе, ул. Казинца,107

Кирпичный дом 1961 года постройки.

Квартира требует косметического ремонта.

Капитальный ремонт дома с заменой сантехнических коммуникаций, электропроводки и тепловой модернизацией фасадов проведен в 2015 году.

В оконных проемах установлены стеклопакеты с профилем ПВХ.

Подключены приборы учета воды и газа. Телефон, домофон, оптоволоконная связь.

Имеется подвальное помещение, закрепленное за квартирой.

Отлично развита инфраструктура: в шаговой доступности детские сады, школы, гимназия, колледж электроники, магазины, поликлиники, объекты сервисного обслуживания и досуга.

Хорошо развита транспортная сеть: автобусы, троллейбусы, маршрутное такси, в 4 остановках транспорта станция метро Слуцкий гостинец.

Прямой выезд на МКАД.

Достаточное количество мест для спокойных прогулок и для активного досуга: горнолыжный центр «Солнечная долина», учебно-спортивный центр «Альпийский снег», живописная набережная водохранилища Лошица, парк с памятником усадебно-парковой архитектуры неоклассицизма «Белая дача».

Подбираются варианты.

Хотите узнать больше? Звоните, записывайтесь на просмотр.

Поможем выгодно и безопасно подать вашу недвижимость для покупки этой квартиры.

Возможно купить в лизинг
logo_bank
Выгодная альтернатива кредитам при покупке квартир на вторичном рынке и готовых новостроек.
Узнайте больше у консультантов Prometr.by
Получить бесплатную консультацию.png
от 13%
60,120 месяцев
Площадь: 42.9 / 25.6 / 6.8 м2
Этаж: 1 из 4 этаж
Цена:
0 BYN
ориентировочная цена
Продажа
Агентство :
ООО "ТВОЯ СТОЛИЦА"
УНП: 101136973
Лицензия: № 02240/15 от 17.02.2005 г
Договор: 560/13 от 01.07.2025
Похожие предложения
Фото объекта 1
Агентство
с ремонтом
eye 13
11.05.2026
Солигорск, Минская область, Козлова ул.., 21
37.8 / 23.3 / 6.1 м2
2 этаж
Фото объекта 1
Агентство
с ремонтом
eye 27
09.05.2026
Минск, Минская область, Нестерова ул.., 61, метро Могилевская
46.9 / 28.4 / 7.3 м2
7 этаж
Фото объекта
Агентство
с ремонтом
eye 29
08.05.2026
Минск, Минская область, Кижеватова ул.., 3, Г
43.7 / 36.9 / 1 м2
7 этаж
Фото объекта 1
Агентство
с ремонтом
eye 32
08.05.2026
Минск, Минская область, Аэродромная ул.., 32
42.9 / 11 / 11.7 м2
2 этаж
Фото объекта 1
Агентство
с ремонтом
eye 40
05.05.2026
Минск, Минская область, Ильянская ул.., 4
50.4 / 34.5 / 1 м2
7 этаж
Фото объекта 1
Агентство
с ремонтом
eye 43
04.05.2026
Заславль, Минская область, Дехновка ул.., 85, Б
53.4 / 30.6 / 8.1 м2
1 этаж
Фото объекта 1
Агентство
с ремонтом
eye 22
04.05.2026
Минск, Минская область, Глебки ул.., 70
38.5 / 23.71 / 6.22 м2
1 этаж
Фото объекта 1
Агентство
с ремонтом
eye 20
01.05.2026
Минск, Минская область, Кольцова ул.., 37
61.6 / 32 / 12.1 м2
8 этаж
Фото объекта 1
Агентство
с ремонтом
eye 17
30.04.2026
Минск, Минская область, Ташкентская ул.., 2, А
51.93 / 29.36 / 9.28 м2
7 этаж
Фото объекта 1
Агентство
с ремонтом
eye 42
28.04.2026
Минск, Минская область, Васнецова ул.., 15, А
42.2 / 27.8 / 5.7 м2
3 этаж
Фото объекта 1
Агентство
с ремонтом
eye 64
28.04.2026
Минск, Минская область, Богдановича ул.., 78
53.2 / 33.9 / 10.1 м2
7 этаж
Фото объекта 1
Агентство
с ремонтом
eye 48
28.04.2026
Минск, Минская область, Нововиленская ул.., 51
42.3 / 29.8 / 1 м2
6 этаж
Купить квартиру в Минске в новостройке: список предложений
Добавить объявление