09.23

право (7).png
Личный кабинет
Войти с помощью соцсетей:
Для сброса пароля свяжитесь с менеджером по электронной почте: zenevich@t-s.by
Восстановление пароля
Придумайте новый пароль
Подтвердите новый пароль
Пароль минимум 7 символов. Буквы A-z (мин. одна заглавная) и цифры 0-9.
eye
0 просмотр
Обновлен 23.03.2026

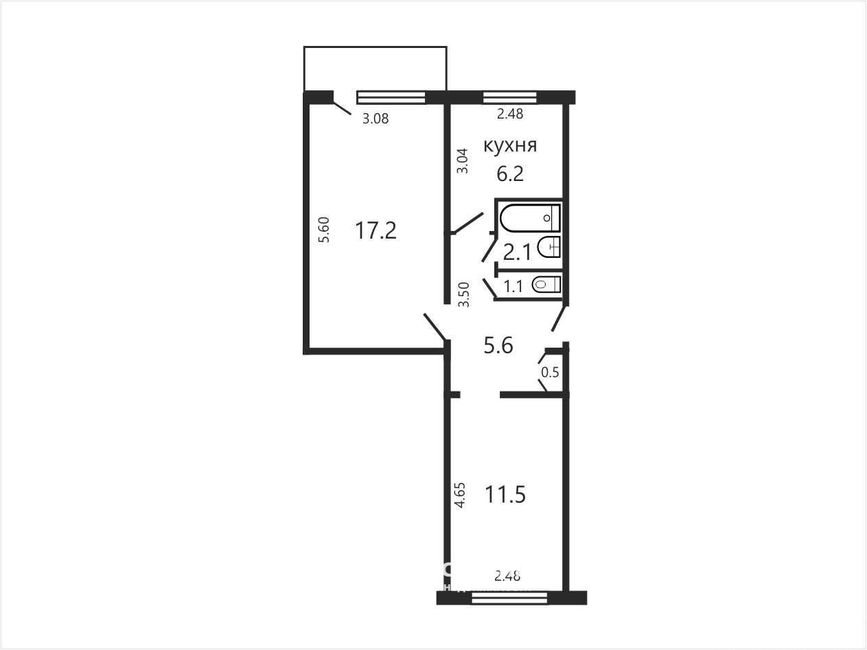
Продажа 2-комнатной квартиры, 44.2м2, 5 этаж

0 BYN
ориентировочная цена
Агентство
с ремонтом
Фото объекта
Описание квартиры:
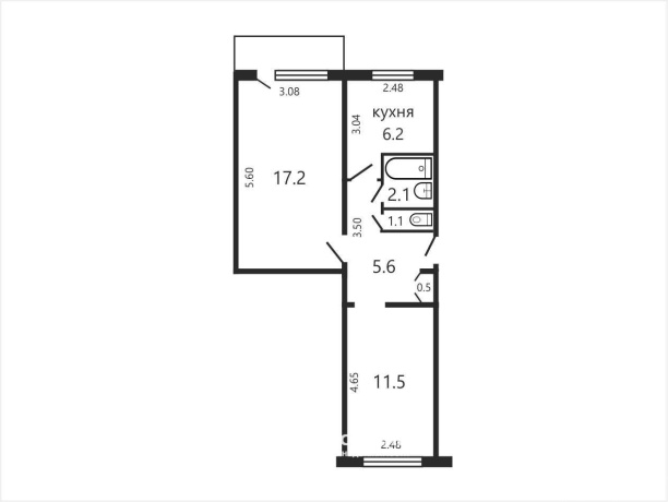
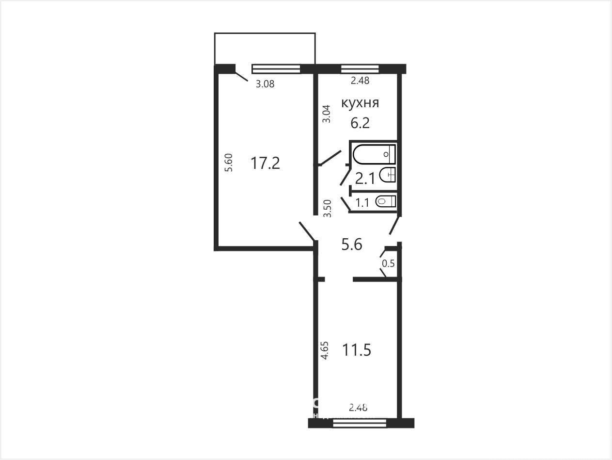
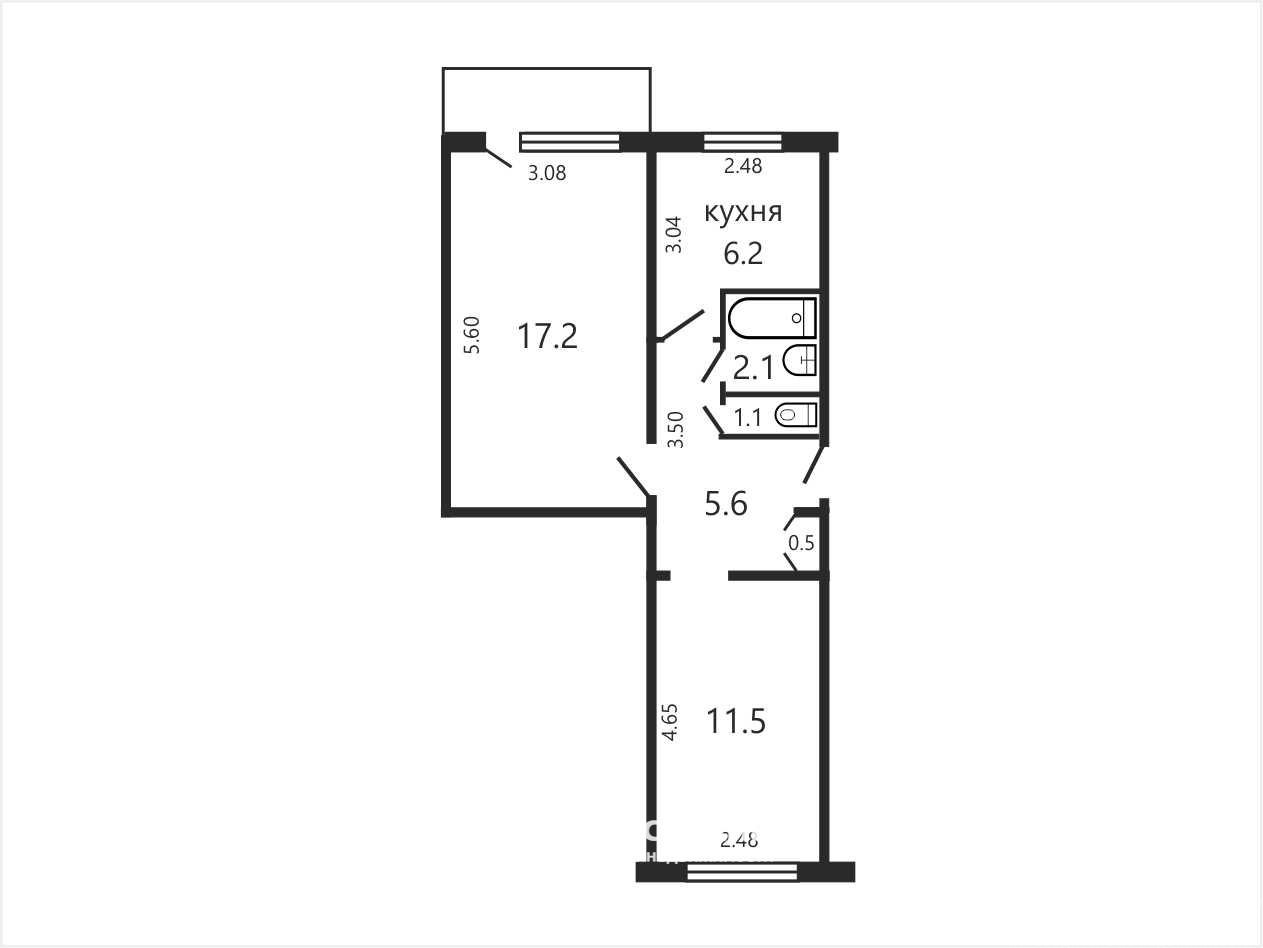
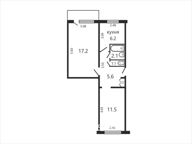
44.2 м2 - общая площадь
28.7 м2 - жилая площадь
45.1 м2 - площадь по СНБ
6.2 м2 - кухня
Количество комнат: 2
Ремонт: Косметический
Санузел: Совмещенный
5 из 5 этажей
Высота потолков: 2.61 м
Балкон или лоджия: 1
О доме:
Тип дома: Стандартная
Год постройки: 1966
Год кап. ремонта: 2005
Стены: Панель

В продаже уютная двухкомнатная квартира на Ангарской ул., д. 18, в Заводском районе — готова к проживанию.

Функциональная планировка с окнами, выходящими на разные стороны, создаёт приятную атмосферу и обеспечивает хорошее естественное освещение.

Дом панельный, построен в 1966 году

Капитальный ремонт дома выполнен в 2005году

Квартира расположена на 5 этаже из 5.

Общая площадь — 44,2 м², жилая — 28,7 м², кухня — 6,2 м², высота потолков — 2,61 м. Застеклённый балкон с раздвижными алюминиевыми рамами станет отличным местом для отдыха.

В квартире установлены стеклопакеты ПВХ, в прихожей и одной из комнат — вместительные встроенные шкафы-купе, а также современная встроенная кухня с бытовой техникой. Санузел облицован стильной современной плиткой.

Район обеспечен чистой водой из подземных артезианских источников.

Инфраструктура развита: рядом несколько детских садов, школы, магазины, гипермаркет «МОМО», сервисные центры и спортивно-оздоровительный комплекс «Мандарин».

Отличное транспортное сообщение — в шаговой доступности станция метро «Могилевская» и удобный выезд на МКАД.

Купить или продать квартиру в Минске - легко и выгодно вместе с агентством недвижимости " Твоя столица"! Получите бесплатную консультацию покупке, продаже и обмену квартиры в Минске у опытных риэлтеров. Для Вас - актуальная база жилья с ценами, фото, планировками и услуги продажи квартир. Проконсультируем по алгоритму сделки, по необходимым документам!, Приходите на бесплатную консультацию риэлтера для покупки. Наш офис находится по адресу - Минск, Кирова, 8

Возможно купить в лизинг
logo_bank
Выгодная альтернатива кредитам при покупке квартир на вторичном рынке и готовых новостроек.
Узнайте больше у консультантов Prometr.by
Получить бесплатную консультацию.png
от 13%
60,120 месяцев
Площадь: 44.2 / 28.7 / 6.2 м2
Этаж: 5 из 5 этаж
Цена:
0 BYN
ориентировочная цена
Продажа
Агентство :
ООО "ТВОЯ СТОЛИЦА"
УНП: 101136973
Лицензия: № 02240/15 от 17.02.2005 г
Договор: 551/13 от 27.06.2025
Похожие предложения
Фото объекта 1
Агентство
с ремонтом
eye 13
15.05.2026
Минск, Минская область, Лосика ул.., 57, метро Каменная горка
41.8 / 35.4 / 1 м2
2 этаж
Фото объекта 1
Собственник
eye 20
14.05.2026
Подсвилье, Октябрьская ул.., 59а
68.5 / 45 / 10 м2
2 этаж
Фото объекта 1
Агентство
с ремонтом
eye 12
11.05.2026
Минск, Минская область, Мястровская ул.., 24
72.9 / 50 / 10.36 м2
18 этаж
Фото объекта 1
Агентство
с ремонтом
eye 24
11.05.2026
Солигорск, Минская область, Козлова ул.., 21
37.8 / 23.3 / 6.1 м2
2 этаж
Фото объекта 1
Собственник
eye 19
11.05.2026
Илья, Советская ул.., 107
40 / 30 / 7.2 м2
1 этаж
Фото объекта 1
Агентство
с ремонтом
eye 36
08.05.2026
Минск, Минская область, Кижеватова ул.., 3, Г
43.7 / 36.9 / 1 м2
7 этаж
Фото объекта 1
Агентство
с ремонтом
eye 39
08.05.2026
Минск, Минская область, Аэродромная ул.., 32
42.9 / 11 / 11.7 м2
2 этаж
Фото объекта 1
Агентство
с ремонтом
eye 47
05.05.2026
Минск, Минская область, Ильянская ул.., 4
50.4 / 34.5 / 1 м2
7 этаж
Фото объекта 1
Агентство
с ремонтом
eye 52
04.05.2026
Заславль, Минская область, Дехновка ул.., 85, Б
53.4 / 30.6 / 8.1 м2
1 этаж
Фото объекта 1
Агентство
с ремонтом
eye 33
04.05.2026
Минск, Минская область, Глебки ул.., 70
38.5 / 23.71 / 6.22 м2
1 этаж
Фото объекта 1
Агентство
с ремонтом
eye 27
30.04.2026
Минск, Минская область, Ташкентская ул.., 2, А
51.93 / 29.36 / 9.28 м2
7 этаж
Фото объекта 1
Агентство
с ремонтом
eye 49
28.04.2026
Минск, Минская область, Васнецова ул.., 15, А
42.2 / 27.8 / 5.7 м2
3 этаж
Фото объекта 1
Агентство
с ремонтом
eye 67
28.04.2026
Минск, Минская область, Богдановича ул.., 78
53.2 / 33.9 / 10.1 м2
7 этаж
Фото объекта 1
Агентство
с ремонтом
eye 54
28.04.2026
Минск, Минская область, Нововиленская ул.., 51
42.3 / 29.8 / 1 м2
6 этаж
Фото объекта 1
Агентство
с ремонтом
eye 43
27.04.2026
Минск, Минская область, Рокоссовского просп.., 123, Б
62.1 / 31.2 / 9.6 м2
2 этаж
Фото объекта 1
Агентство
с ремонтом
eye 61
26.04.2026
Минск, Минская область, Жудро ул.., 12
41 / 24 / 6.2 м2
2 этаж
Фото объекта 1
Агентство
с ремонтом
eye 63
25.04.2026
Минск, Минская область, Шаранговича ул.., 70
57.5 / 31.1 / 9.3 м2
13 этаж
Купить квартиру в Минске в новостройке: список предложений
Добавить объявление