09.23

право (7).png
Личный кабинет
Войти с помощью соцсетей:
Для сброса пароля свяжитесь с менеджером по электронной почте: zenevich@t-s.by
Восстановление пароля
Придумайте новый пароль
Подтвердите новый пароль
Пароль минимум 7 символов. Буквы A-z (мин. одна заглавная) и цифры 0-9.
eye
0 просмотр
Обновлен 30.04.2026

Продажа 1-комнатной квартиры, 30.3м2, 2 этаж

225 558.0 BYN
(79 900 USD)
Агентство
с ремонтом
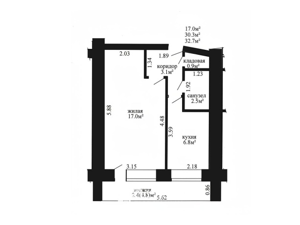
План объекта
Описание квартиры:
30.3 м2 - общая площадь
17 м2 - жилая площадь
32.7 м2 - площадь по СНБ
6.8 м2 - кухня
Количество комнат: 1
Ремонт: Косметический
Санузел: Совмещенный
2 из 9 этажей
Высота потолков: 2.47 м
Балкон или лоджия: 1
О доме:
Тип дома: Не типовая
Год постройки: 1967
Год кап. ремонта: 2010
Стены: Кирпич

Однокомнатная квартира у метро Грушевка, Либкнехта, 98

Продается просторная «однушка» в тихом районе в кирпичном доме на ул. Либкнехта, 98. Ключевое преимущество — пешая доступность до метро Грушевка (менее 10 минут) и отличная транспортная развязка.

Почему стоит посмотреть:

Дом: кирпич — лучшая тепло- и шумоизоляция. Стены «дышат», соседей не слышно.

Этаж: второй этаж из 9. Удобно — не нужен лифт, но при этом выше первого (холод/сырость/шум с улицы исключены).

Балкон: изюминка квартиры — двойной застекленный балкон (зимой дополнительная термоподушка, летом — мастерская или зона отдыха).

Состояние: требуется косметический ремонт. Это дает вам свободу: сделать дизайн под себя и не переплачивать за чужой «евроремонт» (цена уже снижена на эту разницу).

Планировка:

Комната изолированная

Санузел совмещенный

Просторная кухня.

В районе: школы, сады, магазины, парковая зона.

Идеально для жизни или сдачи в аренду (спрос на такую локацию стабильный).

Поможем выгодно продать вашу квартиру для покупки этой!

Консультация по кредиту!

Расширенные консультации по покупке, продаже и обмену вашей недвижимости можно получить в офисе Центральном , расположенном в Бизнес-центре Kiroff по адресу Минск, улица Кирова, 8. 2 этаж.

Возможно купить в лизинг
logo_bank
Выгодная альтернатива кредитам при покупке квартир на вторичном рынке и готовых новостроек.
Узнайте больше у консультантов Prometr.by
Получить бесплатную консультацию.png
от 13%
60,120 месяцев
Площадь: 30.3 / 17 / 6.8 м2
Этаж: 2 из 9 этаж
Цена:
225 558.0 BYN (79 900 USD)
Продажа
Агентство :
ООО "ТВОЯ СТОЛИЦА"
УНП: 101136973
Лицензия: № 02240/15 от 17.02.2005 г
Договор: 463/13 от 25.04.2026
Похожие предложения
Фото объекта 1
Агентство
с ремонтом
30.04.2026
Минск, Минская область, Лещинского ул.., 13, метро Кунцевщина
34.07 / 16.88 / 7.23 м2
2 этаж
Фото объекта 1
Агентство
с ремонтом
eye 10
27.04.2026
Минск, Минская область, Жореса Алфёрова ул.., 22
27.9 / 19.8 / 1 м2
5 этаж
Фото объекта 1
Агентство
с ремонтом
eye 14
27.04.2026
Минск, Минская область, Прушинских ул.., 18
42.8 / 17.9 / 9.1 м2
1 этаж
Фото объекта 1
Агентство
с ремонтом
eye 57
09.04.2026
Минск, Минская область, Логойский тракт., 11
38.7 / 18.4 / 8.4 м2
7 этаж
Фото объекта 1
Агентство
с ремонтом
eye 79
02.04.2026
Минск, Минская область, Белинского ул.., 15
30.3 / 18.4 / 5.6 м2
5 этаж
Фото объекта 1
Агентство
с ремонтом
eye 87
01.04.2026
Минск, Минская область, Калиновского ул.., 48, 2, метро Восток
33.2 / 17.1 / 7.19 м2
9 этаж
Фото объекта 1
Агентство
с ремонтом
eye 80
28.03.2026
Минск, Минская область, Лучины ул.., 46
37 / 17 / 8.9 м2
3 этаж
Фото объекта 1
Агентство
с ремонтом
eye 95
24.03.2026
Минск, Минская область, Победителей просп.., 97, 1
36.1 / 17.9 / 6.6 м2
1 этаж
Фото объекта 1
Агентство
с ремонтом
eye 113
21.03.2026
Минск, Минская область, Слободская ул.., 15
35.2 / 17 / 7.1 м2
8 этаж
Фото объекта 1
Агентство
с ремонтом
eye 127
11.03.2026
Минск, Минская область, Космонавтов ул.., 23, 3, метро Малиновка
33.7 / 16.74 / 7.17 м2
3 этаж
Фото объекта 1
Агентство
с ремонтом
eye 91
02.03.2026
деревня Боровляны, Минская область, Фрунзенская ул.., 39, А
41 / 17.1 / 8.7 м2
7 этаж
Фото объекта 1
Агентство
с ремонтом
eye 199
16.02.2026
Минск, Минская область, Неманская ул.., 37
43.1 / 17.9 / 9.1 м2
8 этаж
Фото объекта 1
Агентство
с ремонтом
eye 167
10.02.2026
Минск, Минская область, Громова ул.., 46
36.2 / 18 / 6.6 м2
14 этаж
Фото объекта 1
Агентство
с ремонтом
eye 249
16.12.2025
Минск, Минская область, Леонида Щемелёва ул.., 30
32.3 / 25 / 1 м2
20 этаж
Фото объекта 1
Агентство
с ремонтом
eye 305
02.10.2025
Минск, Минская область, Червякова ул.., 25
36.2 / 18.1 / 6.3 м2
5 этаж
Купить квартиру в Минске в новостройке: список предложений
Добавить объявление