1. Что за объект
 Бизнес-центр «Каскад-Альфа» - это строгий, современный офисный комплекс на улице Кальварийской, 42, всего в нескольких минутах от центра Минска. Он стал частью 
миниполиса «Каскад» - полноценной городской среды, где удобно жить, работать и решать повседневные задачи, не покидая квартал.
 
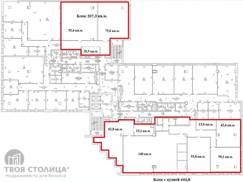
 В здании предлагаются к аренде офисные блоки на 4-м этаже площадью 207,3 м² и 444,8 м². Это редкое сочетание просторных помещений, качественной отделки и разумной арендной ставки для локации такого уровня.
2. Почему в топе
 Причин несколько - и каждая веская.
 
	- Во-первых, идеальное соотношение цены и качества: в «Каскад-Альфе» арендаторы получают уровень бизнес-класса без переплаты за «центр любой ценой».
- 
	Во-вторых, редкие площади - свободные блоки здесь появляются нечасто, ведь средняя заполняемость комплекса достигает 97–99%.
- 
	И, наконец, единая управляющая компания, отвечающая за все здания миниполиса. Это обеспечивает стабильное качество сервиса, предсказуемость условий и ощущение порядка, которое ценят серьёзные компании.
3. Что внутри
 Помещения светлые, с большими окнами и готовой отделкой в современном стиле.
 
 Комбинация открытых зон и кабинетов позволяет гибко организовать рабочее пространство.
 
 Приятный светлый ламинат, стеклянные перегородки с матовыми вставками, встроенная система вентиляции и кондиционирования создают ощущение лёгкости и деловой собранности.
 
 В каждом блоке, при наличии потребности, есть возможность организации мини-кухни - деталь, которая превращает офис не просто в место работы, а в комфортную зону для команды.
4. Что снаружи
 Фасад здания лаконичен и строг, а входная группа оформлена в том же сдержанном стиле.
 
 В распоряжении арендаторов - крытый и наземный паркинг, а для тех, кто приезжает на велосипеде, есть оборудованная велостоянка. По периметру действует система видеонаблюдения с сотней камер, а внутри - современные лифты и круглосуточный доступ.
5. Локация
 До станции метро «Молодёжная» - около 500 метров.
 
 Рядом проходят десятки маршрутов общественного транспорта: автобусы, троллейбусы, маршрутные такси.
 А для автомобилистов - удобный выезд на Кальварийскую и проспект Победителей, что делает локацию практичной для ежедневных поездок по городу.
 
 Рядом расположены ТРЦ "Корона", фитнес-клубы, например, «Онегинъ» и другие, которые предлагают широкий спектр услуг, включая тренажерные залы, групповые и персональные тренировки, а также новый современный бассейн, ИТ-шники это ценят. При необходимости можно обратится в медицинский центр "Каскад клиника", который находится по соседству.
6. Кому подходит
 Этот объект оценят средние и крупные компании, которым важно подчеркнуть статус, обеспечить комфорт команде и не переплачивать за избыточный пафос центра.
  
 Отличный вариант и для представительств иностранных фирм, IT-компаний, проектных бюро, консалтинговых агентств - тех, кто ценит продуманную среду и стабильный сервис.
7. Условия сделки
 Предлагаются блоки 207,3 м² и 444,8 м² (возможна аренда целиком - 652,1 м²).
 
 Арендные договоры заключаются на долгосрочной основе (обычно от 3 до 5 лет), что удобно для тех, кто планирует развитие и стабильность бизнеса.
8. Экспертное мнение
 «Каскад-Альфа» - пример зрелого офисного продукта, где всё продумано с точки зрения эффективности, обслуживания и повседневного комфорта.
 
 Это не просто здание, а часть устойчивого минигорода, где бизнес чувствует себя комфортно и уверенно!
9. Лучше один раз увидеть...
 
 На фотографиях - простор, свет и ощущение воздуха. Но настоящие преимущества этого бизнес-центра видны, когда входишь внутрь: ровный ритм света, тишина, качество материалов и вид из окон, напоминающий, что работать можно с удовольствием.
 
 (с) 
Антон Алейников, специалист отдела Недвижимость для бизнеса агентства Твоя столица. Консультации по тел. 
+375 29 688 88 11