09.23

Новая Боровая
Личный кабинет
Войти с помощью соцсетей:
Для сброса пароля свяжитесь с менеджером по электронной почте: zenevich@t-s.by
Восстановление пароля
Придумайте новый пароль
Подтвердите новый пароль
Пароль минимум 7 символов. Буквы A-z (мин. одна заглавная) и цифры 0-9.
eye
** (**/ **)
Обновлен 19.11.2025

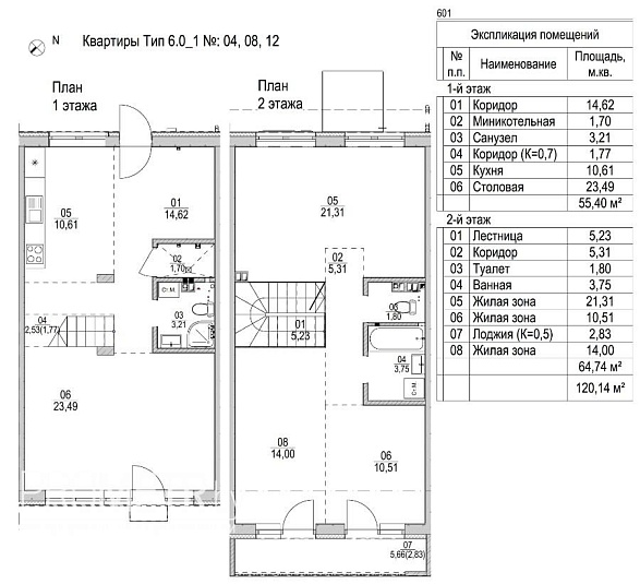
Продается 2-комнатная квартира, 120.14м2, ЖК Погораны

от 266 265.0 BYN (93 709 USD)
от 2 216.0 BYN / за м² 780 USD / м²
Подробнее о квартире:
Квартира находится в доме Дом № 5.1, жилой комплекс Погораны
На карте
Гродно, мкр. Погораны-Кошевники, ул. Молодая
Ход строительства Дом № 5.1
Площадь: 120.14 / м²
Срок сдачи: 2023
Узнать подробнее +375 29 628-90-50
Мы нашли 4 похожих жилых комплекса
Купить квартиру в Минске в новостройке: список предложений