09.23

Новая Боровая
Личный кабинет
Войти с помощью соцсетей:
Для сброса пароля свяжитесь с менеджером по электронной почте: zenevich@t-s.by
Восстановление пароля
Придумайте новый пароль
Подтвердите новый пароль
Пароль минимум 7 символов. Буквы A-z (мин. одна заглавная) и цифры 0-9.
eye
** (**/ **)
Обновлен 19.11.2025

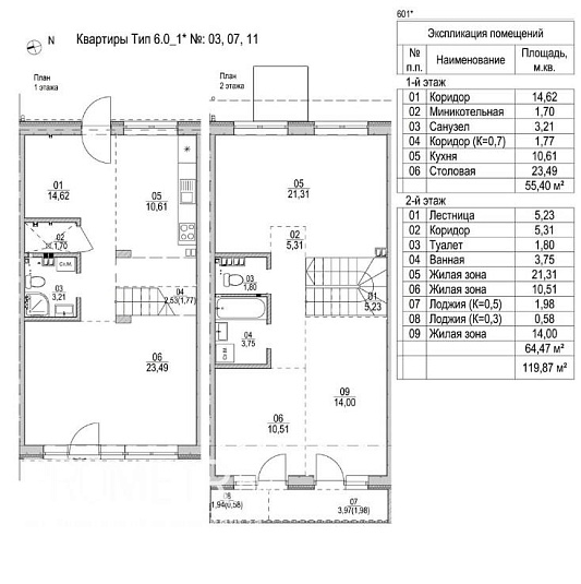
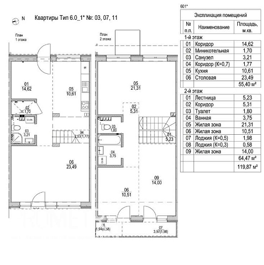
Продается 2-комнатная квартира, 120.7м2, ЖК Погораны

от 267 506.0 BYN (94 146 USD)
от 2 216.0 BYN / за м² 780 USD / м²
Подробнее о квартире:
  • Планировка 120.7 м² общая площадь
  • ЖК Погораны
  • Дом № 4.1
  • Айрон застройщик
  • 3 квартал 2022
  • Класс престиж
  • каркасно-блочный
  • Высота потолка - 2.8 м.
  • купля - продажа
Квартира находится в доме Дом № 4.1, жилой комплекс Погораны
На карте
Гродно, г. Гродно, мкр. Погораны-Кошевники
Ход строительства Дом № 4.1
Площадь: 120.7 / м²
Срок сдачи: 3 квартал 2022
Узнать подробнее +375 29 628-90-50
Мы нашли 4 похожих жилых комплекса
Купить квартиру в Минске в новостройке: список предложений