09.23

Новая Боровая
Личный кабинет
Войти с помощью соцсетей:
Для сброса пароля свяжитесь с менеджером по электронной почте: zenevich@t-s.by
Восстановление пароля
Придумайте новый пароль
Подтвердите новый пароль
Пароль минимум 7 символов. Буквы A-z (мин. одна заглавная) и цифры 0-9.

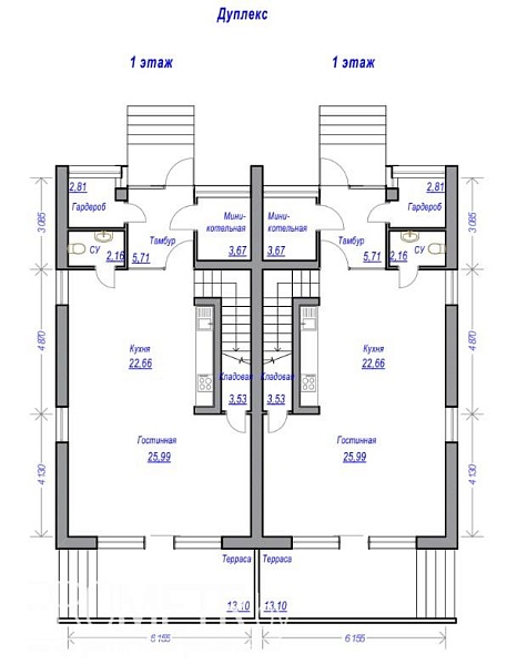
Кухня  с кладовой. Индивидуальная мини-котельная. Благоустроенная терраса, огражденный участок.

Показать еще
Инфраструктура
Объект застройщика по указанному адресу

Дуплексы в ЖК «Белые Росы»

  • Гродно, г. Гродно, ул. Малыщинская
от 423 504.0 BYN (149 500 USD)
  • 3 квартал 2024
  • комфорт
  • монолитный
  • Готовы стены дома, внутренние и внешние отделочные работы
  • 3 м.
  • купля - продажа
Контакты
Квартиры в этом доме
Комнат
4
Планировка
  • Дуплексы в ЖК «Белые Росы» -
ПЛОЩАДЬ М2
145
ЦЕНА ЗА М2
2 921.0 BYN / 1 031 USD
ЦЕНА квартиры
423 504.0 BYN / 149 500 USD
 
Ход строительства
Застройщик
ООО «МиллениумСити»
+375 29 724-21-38 office@millenium-city.by