09.23

Новая Боровая
Личный кабинет
Войти с помощью соцсетей:
Для сброса пароля свяжитесь с менеджером по электронной почте: zenevich@t-s.by
Восстановление пароля
Придумайте новый пароль
Подтвердите новый пароль
Пароль минимум 7 символов. Буквы A-z (мин. одна заглавная) и цифры 0-9.

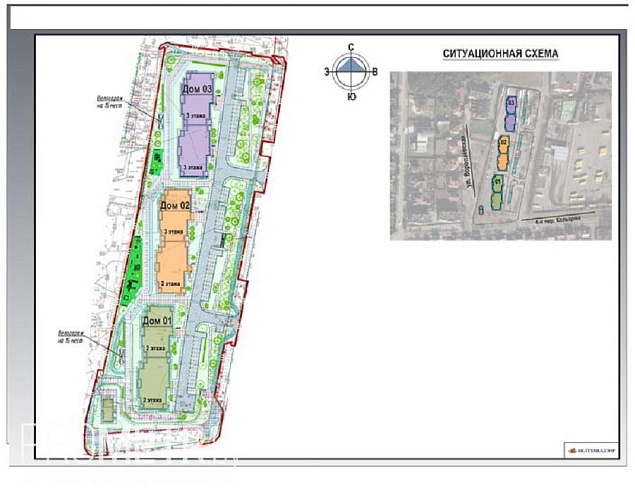
Жилой комплекс по пер. 4-ому Кольцова

нет в продаже
Минск, Советский, пер. 4-ый Кольцова
Объект реализован
/
Обновлен 13.01.2026

УКС Советского района

Жилой комплекс состоит из трёх малоэтажных домов, расположенных в районе Цнянского водохранилища. В каждом доме запроектированы только 3-х и 4-х комнатные квартиры.

.......................................................................................................................................

В помощь покупателю: 

узнайте, как продать свою квартиру дороже для покупки новостройки взамен.

БЕСПЛАТНЫЕ КОНСУЛЬТАЦИИ ПО ПРОДАЖЕ

.......................................................................................................................................

Показать еще

Обновлен 13.01.2026

На карте
Показать инфраструктуру и панораму на карте
Ход строительства по пер. 4-ому Кольцова

Узнай какая новостройка тебе подходит

Вопрос из

1. Сколько вы готовы потратить на покупку новостройки?

Вопрос из

2. Желаемая площадь

Вопрос из

3. Какой тип застройки Вы предпочитаете?

Вопрос из

4. Какой район города Вам нравится больше всего?

Вопрос из

5. Выберите срок сдачи

Оцените ЖК по пер. 4-ому Кольцова
Авторизация
Выберите Ваш статус*
Общая оценка жилого коплекса*
Транспортная доступность*
(близость и удобство, интервалы движения общественного транспорта)
Обеспеченность парковки*
(возможность припарковать автомобиль у дома в послеобеденное время)
Качество строительства*
(степень дефектов при приемке, соответствие заявленным параметрам)
Социальная инфраструктура*
(Школы, сады, магазины, медицинские учреждения и т.п.)
Придомовая территория и подъезды*
(дворы без авто, велопарковки, оборудованные детские площадки, спортивные площадки и т.п.)
Планировочные решения*
(удобство планировок, практичность)
Правила публикации отзывов
Размещение информации об этом объекте не носит коммерческий характер и представлено для максимально полного информирования о рынке новостроек Минска и Беларуси. Информация взята из открытых источников, актуализируется не реже одного раза в месяц.
Обновлен 13.01.2026

Мы нашли 4 похожих жилых комплекса