09.23

Новая Боровая
Личный кабинет
Войти с помощью соцсетей:
Для сброса пароля свяжитесь с менеджером по электронной почте: zenevich@t-s.by
Восстановление пароля
Придумайте новый пароль
Подтвердите новый пароль
Пароль минимум 7 символов. Буквы A-z (мин. одна заглавная) и цифры 0-9.

16.39 "Мирский замок", квартал "Родная страна"

от 277 238 BYN (97 867 USD)
Минск, Октябрьский, ул. Савицкого
метро «Ковальская Слобода», 440 м
/
Обновлен 21.04.2026
  • 4 квартал 2026
  • стандарт
  • каркасно-блочный
  • Готовы стены дома, внутренние и внешние отделочные работы
Узнать подробнее +375 29 565-80-21 +375 44 565-80-21
Упростить выбор / покупку

Многофункциональные бизнес-апартаменты для жизни и бизнеса, где можно зарегистрироваться по месту жительства (оформить «постоянную прописку») и/или оформить регистрацию юридического лица!

16-этажный «Мирский замок» появится в юго-западной части квартала. Новостройка будет иметь  П-образную форму. В уютном прилегающем к дому пространстве запроектированы места отдыха, появится развитая инфраструктура встроенных коммерческих помещений. 

Этаж -1 (частично подземный). Здесь будут входные группы многофункциональных бизнес-апартаментов и общественных помещений, помещения для коммерции, а также нижний уровень гаража стоянки.

На 1 этаже коммерческие помещения с отдельными входами и верхний уровень гаража-стоянки. На 2-м — коммерческие и административные помещения, а также кафе для вкусных обедов и романтических вечеров с видом на сквер. Высота потолков на первых 2 этажах будет достигать 3,27 м.

С 3 по 16 этаж — многофункциональные бизнес-апартаменты свободной планировки. При этом на 3 этаже будут созданы апартаменты с открытыми террасами. На 5-13 этажах — с остеклёнными лоджиями и неостеклёнными балконами. На 15-16 этажах — с неостеклёнными балконами.

Основные входы в многофункциональные бизнес-апартаменты будут расположены на 3-16 этажах зданий. Они запроектированы в двух равноудалённых точках. У жителей будет возможность попасть в свои апартаменты через любую входную группу. Будет реализована концепция безбарьерного доступа.

В дизайнерском лобби все детали будут погружать жильцов и их гостей в атмосферу старинного замка, появится букшеринг, санитарная комната, место работы консьержа.

В доме «Мирский замок» предусмотрены 4 скоростных малошумных лифта: по 2 на каждую входную группу.

ООО "Твоя столицаконсалт", УНП 190285638, лицензия №02240/129 от 06.09.06г.

Договор на оказание риэлтерских услуг № 449/6, от 04.09.2025

Показать еще

Обновлен 21.04.2026
  • 4 квартал 2026
  • стандарт
  • каркасно-блочный
  • Готовы стены дома, внутренние и внешние отделочные работы
Узнать подробнее +375 29 565-80-21 +375 44 565-80-21
Упростить выбор / покупку

На карте
Показать инфраструктуру и панораму на карте
Квартиры

Специальные условия покупки

Рассрочка до 48 месяцев
Рассрочка от Застройщика
Описание:

На многофункциональные бизнес-апартаменты применяется специальный калькулятор с возможностью рассрочки до 48 месяцев. Первоначальный взнос не менее 20% с удорожанием стоимости.

Все дома в Бизнес-апартаменты "Минск Мир"
  • 16.39 "Мирский замок", квартал "Родная страна" - 21.1 «Континенталь», квартал "Западный"
    21.1 «Континенталь», квартал "Западный" ул. Брилевская, 54
    Многофункциональные бизнес-апартаменты в квартале Западный - универсальный вариант для жизни, инвестиций...
    Подробнее о доме
  • 16.39 "Мирский замок", квартал "Родная страна" - 11.5 «Адриатик», квартал "Австралия  и Океания"
    11.5 «Адриатик», квартал "Австралия и Океания" пр. Мира
    Дом «Адриатик» - многофункциональные бизнес-апартаменты для бизнеса и проживания! Это возможность жить...
    Подробнее о доме
  • 16.39 "Мирский замок", квартал "Родная страна" - 11.2 Медитерранеан квартал Австралия и Океания
    11.2 Медитерранеан квартал Австралия и Океания ул. Лученка
    15 этажное многофункциональное здание-кольцо Коммерческие помещения на -1 и 1 этаже. 33 торгово-административных...
    Подробнее о доме
  • 16.39 "Мирский замок", квартал "Родная страна" - 11.3 «Атлантик», квартал "Австралия  и Океания"
    11.3 «Атлантик», квартал "Австралия и Океания" просп. Мира
    Новый дом в квартале Австралия и Океания - дом Атлантик! Возможна рассрочка до 24 месяцев!Многофункциональные...
    Подробнее о доме
  • 16.39 "Мирский замок", квартал "Родная страна" - 11.4 «Пацифик», квартал "Австралия  и Океания"
    11.4 «Пацифик», квартал "Австралия и Океания" просп. Мира
    Дом «Пацифик» расположен в юго-восточной части квартала Австралия и Океания, в шаговой доступности от...
    Подробнее о доме
  • 16.39 "Мирский замок", квартал "Родная страна" - 11.6 "Карибиан", квартал "Австралия  и Океания"
    11.6 "Карибиан", квартал "Австралия и Океания" ул. Братская
    Новый дом в квартале Австралия и Океания - дом Карибиан! Возможна рассрочка до 48 месяцев!Многофункциональные...
    Подробнее о доме
  • 16.39 "Мирский замок", квартал "Родная страна" - 4.2. Эверест
    4.2. Эверест Николы Теслы
    Многофункциональное здание с многофункциональными бизнес-апартаментами. Подземный паркинг на 239 машиномест,...
    Подробнее о доме
  • 16.39 "Мирский замок", квартал "Родная страна" - Паркинг Эверест
    Паркинг Эверест ул. Николы Теслы
    МАШИНОМЕСТА в подземной одноуровневой гараж-стоянке дома Эверест. 239 машиномест с зарядными станциями...
    Подробнее о доме
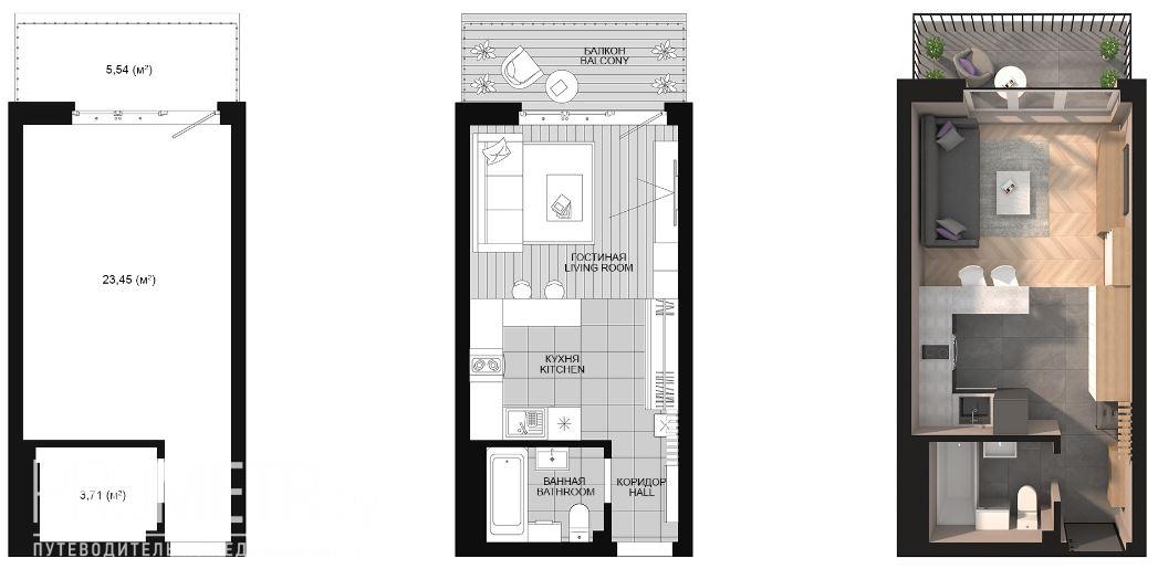
Планировки
Новости по Бизнес-апартаменты "Минск Мир"
Все новости
Ход строительства 16.39 "Мирский замок", квартал "Родная страна"

Обменяйте свою квартиру на жилье от застройщика выгодно и удобно

Кредит и рассрочка

станут простыми и понятными с нашей помощью: рассчитаем платежи, поможем собрать и проверим пакет документов, запишем в банк для подачи

До 10% Moneyback

Вы получите от стоимости риэлтерских услуг по продаже квартиры (программа лояльности KeyCard ОАО «Приорбанк») как участник программы «Переезжаем в новостройку»

Бесплатно

Ответим на все вопросы по продаже и покупке жилья, подберем новостройку по цене застройщика и поможем оформить документы в том числе на получение кредита.

В каких проектах вы предпочли бы выбрать новую квартиру?

Сколько комнат должно быть в новой квартире?

На какой стадии готовности должна быть новая квартира?

Сколько комнат в старой квартире на продажу?

Где она находится?

Введите ваш адрес

Пожалуйста, представьтесь

Введите ваши контактные данные
Вопрос из
Отлично! Вы отправили нам свои пожелания, мы подготовим предложения и свяжемся с Вами в ближайшее время.
Размещение информации об этом объекте не носит коммерческий характер и представлено для максимально полного информирования о рынке новостроек Минска и Беларуси. Информация взята из открытых источников, актуализируется не реже одного раза в месяц.
Обновлен 21.04.2026
  • 4 квартал 2026
  • стандарт
  • каркасно-блочный
  • Готовы стены дома, внутренние и внешние отделочные работы
Узнать подробнее +375 29 565-80-21 +375 44 565-80-21
Упростить выбор / покупку