Личный кабинет
Войти с помощью соцсетей:
Для сброса пароля свяжитесь с менеджером по электронной почте: zenevich@t-s.by
Восстановление пароля
Придумайте новый пароль
Подтвердите новый пароль
Пароль минимум 7 символов. Буквы A-z (мин. одна заглавная) и цифры 0-9.

Описание

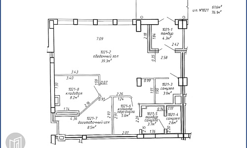
Сдается встроенное помещение в г. Минске, ул. Белградская 5, торгового назначения. Площадь (78.2) кв.м, (1) этаж, отдельный вход, (0) комнат, высота потолков h=(3.5) м, витринные (панорамные окна), собственный санузел. Коммуникации и инженерия: центральные коммуникации, (индивидуальная) вентиляция, мощность Р=(9) кВт, с возможностью увеличения до 15 кВт. Рядом расположены: Кофе Саунд, Остров, Семь Пятниц, Vino&Vino, Цветочка бел, Ego и дрю Варианты использования: Магазин, Сфера услуг, общепит, кафе. Арендатор не оплачивает услуги агентства. ОДО «Твоя столицаконсалт», лицензия выд. Минюстом 20.09.2006 № 02240/129, УНП 190285638, договор РУ №52/6В от 22.05.2026

Характеристики

Тип здания
в жилом доме
Название объекта
Торговые
Этаж / этажность
1 / 21
Отдельный вход
Арендуемая площадь
78.2 м 2
Высота потолка
от 3.5 м.
Собственный с/у
+

Аренда помещения Минск, Белградская, 5

  • Минск, Белградская, 5
  • 78.2 м2
    общая площадь
  • 66.0 руб./м 2 в мес.
    (от 20 EUR) без НДС (УСН)
Контакты
Получить консультацию по коммерческой недвижимости
В сравнении 0