Личный кабинет
Войти с помощью соцсетей:
Для сброса пароля свяжитесь с менеджером по электронной почте: zenevich@t-s.by
Восстановление пароля
Придумайте новый пароль
Подтвердите новый пароль
Пароль минимум 7 символов. Буквы A-z (мин. одна заглавная) и цифры 0-9.

Описание

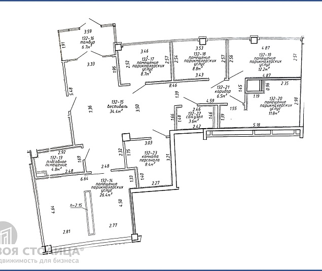
Сдается встроенное помещение в г.Минск, ул. Филимонова, 22. Многофункциональное помещение площадью 132,3 м.кв., находится на первом этаже жилого дома, имеет отдельный вход. Коммуникации и инженерия: электричество, центральное отопление, кондиционирование, система приточной вентиляции, пожарная сигнализация, высокоскоростной интернет. Рядом расположены: ЖК "Аквамарин". Варианты использования: парикмахерские, косметологические услуги. Арендатор не оплачивает услуги агентства. ОДО «Твоя столицаконсалт», лицензия выд. Минюстом 20.09.2006 № 02240/129, УНП 190285638, договор РУ №43/6а от 14.04.2026

Характеристики

Тип здания
в жилом доме
Название объекта
Сфера услуг
Этаж / этажность
1 / 9
Отдельный вход
Арендуемая площадь
132.3 м 2
Высота потолка
от 3.0 м.
Собственный с/у
2с/у
Парковка

Аренда помещения Минск, Филимонова, 22

  • Минск, Филимонова, 22
  • Московская
  • 132.3 м2
    общая площадь
  • 56.0 руб./м 2 в мес.
    (от 20 USD) с НДС
Контакты
Получить консультацию по коммерческой недвижимости
В сравнении 0