Личный кабинет
Войти с помощью соцсетей:
Для сброса пароля свяжитесь с менеджером по электронной почте: zenevich@t-s.by
Восстановление пароля
Придумайте новый пароль
Подтвердите новый пароль
Пароль минимум 7 символов. Буквы A-z (мин. одна заглавная) и цифры 0-9.

Описание

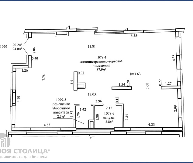
Сдается встроенное помещение в г.Минске, ул.М.Савицкого, 23, административно-торгового назначения назначения. Площадь 94 кв.м, 1 этаж, отдельный вход, торговый зал 87.9 кв.м, высота потолков h= 5 м, витринные (панорамные окна), собственный санузел, без отделки. Коммуникации и инженерия: центральные коммуникации, (индивидуальная) вентиляция, мощность Р=(19) кВт. Рядом расположены: (метро Аэродромная, ТЦ "Авиа Молл"). Варианты использования: торговля, сфера услуг, офис. Арендатор не оплачивает услуги агентства. ОДО «Твоя столицаконсалт», лицензия выд. Минюстом 20.09.2006 № 02240/129, УНП 190285638, договор РУ №17/6а от 10.02.2026

Характеристики

Тип здания
в жилом доме
Название объекта
Торговые
Этаж / этажность
1 / 13
Отдельный вход
Арендуемая площадь
94 м 2
Высота потолка
от 5.0 м.
Собственный с/у
+
Парковка

Аренда помещения Минск, Михаила Савицкого, 23

  • Минск, Михаила Савицкого, 23
  • 94 м2
    общая площадь
  • 67.0 руб./м 2 в мес.
    (от 20 EUR) без НДС (физ.лицо)
Контакты
Получить консультацию по коммерческой недвижимости
В сравнении 0