Личный кабинет
Войти с помощью соцсетей:
Для сброса пароля свяжитесь с менеджером по электронной почте: zenevich@t-s.by
Восстановление пароля
Придумайте новый пароль
Подтвердите новый пароль
Пароль минимум 7 символов. Буквы A-z (мин. одна заглавная) и цифры 0-9.

Описание

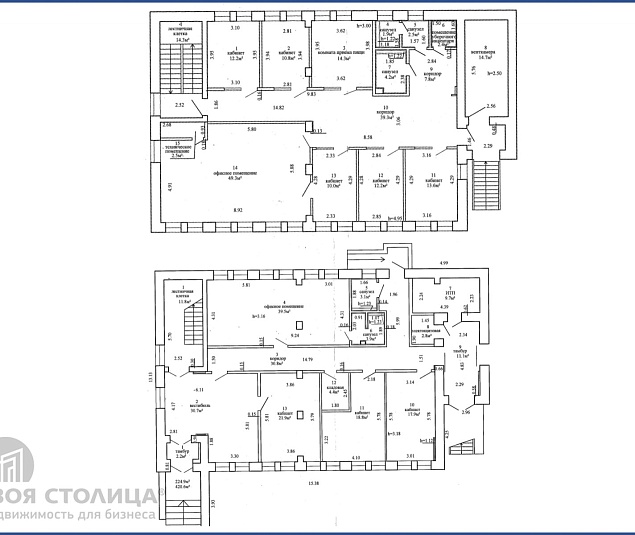
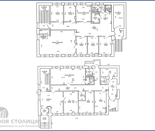
Продается отдельно стоящее здание в г. Минск, Антоновская ул., 14/а. Недалеко находятся станция метро Пролетарская. Встроенное помещение (Медицина, Офис,) площадью 420.6м.кв., находится на 1 этаже (отдельно стоящее). Коммуникации и инженерия: отопление, электричество, вода, оптоволокно. ОДО «Твоя столицаконсалт», лицензия выд. Минюстом 20.09.2006 № 02240/129, УНП 190285638, договор РУ №488/6 от 06.10.2025

Характеристики

Тип здания
отдельно стоящее
Название объекта
Офис
Этаж / этажность
1 / 2
Отдельный вход
Арендуемая площадь
420.6 м 2
Высота потолка
от 3.0 м.
Собственный с/у
2с/у
Парковка

Продажа помещения Минск, Антоновская ул., 14

  • Минск, Антоновская ул., 14
  • Победы пл.
  • 420.6 м2
    общая площадь
  • 6 641.0 руб./м 2
    (от 2355 USD) с НДС
Контакты
Получить консультацию по коммерческой недвижимости
В сравнении 0