Личный кабинет
Войти с помощью соцсетей:
Для сброса пароля свяжитесь с менеджером по электронной почте: zenevich@t-s.by
Восстановление пароля
Придумайте новый пароль
Подтвердите новый пароль
Пароль минимум 7 символов. Буквы A-z (мин. одна заглавная) и цифры 0-9.

Описание

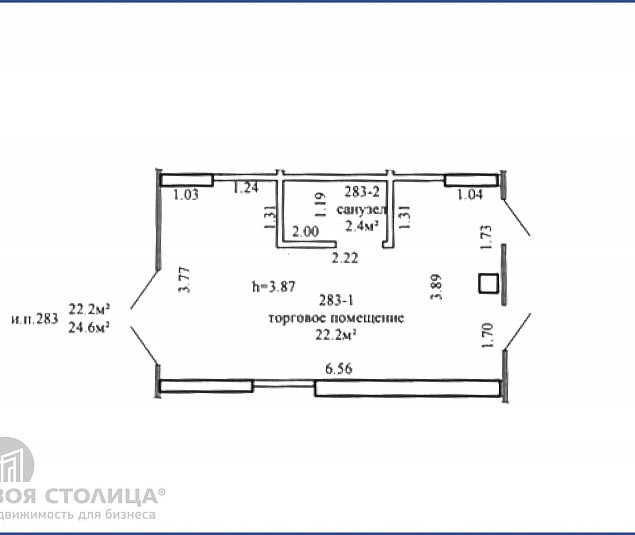
Сдается встроенное помещение в г.Минск, ул.Братская, 13, торгового назначения. Площадь 24.6 кв.м, 1 этаж, отдельный вход, 1 комната, торговый зал 22.2 кв.м, высота потолков h= 3.89 м., витринные (панорамные окна), собственный санузел, с хорошей отделкой, 3 входа. Коммуникации и инженерия: центральные коммуникации, отдельная вентиляция, возможность установки кондиционера, мощность 8 кВт. Рядом расположены: (ТЦ "Авиа Молл и метро Аэродромная). Варианты использования: сфера услуг, торговля, офис. Арендатор/покупатель не оплачивает услуги агентства. ОДО «Твоя столицаконсалт», лицензия выд. Минюстом 20.09.2006 № 02240/129, УНП 190285638, договор РУ №50/6а от 30.07.2025

Характеристики

Тип здания
в жилом доме
Название объекта
Сфера услуг
Этаж / этажность
1 / 25
Отдельный вход
Арендуемая площадь
24.6 м 2
Высота потолка
от 3.5 м.
Собственный с/у
+
Парковка

Аренда помещения Минск, Братская ул., 13

  • Минск, Братская ул., 13
  • 24.6 м2
    общая площадь
  • 80.0 руб./м 2 в мес.
    (от 23 EUR) без НДС (физ.лицо)
Контакты
Получить консультацию по коммерческой недвижимости
В сравнении 0