Личный кабинет
Войти с помощью соцсетей:
Для сброса пароля свяжитесь с менеджером по электронной почте: zenevich@t-s.by
Восстановление пароля
Придумайте новый пароль
Подтвердите новый пароль
Пароль минимум 7 символов. Буквы A-z (мин. одна заглавная) и цифры 0-9.

Описание

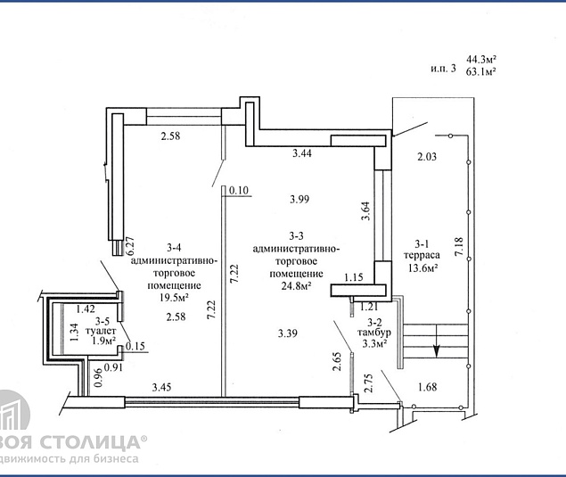
Сдается встроенное помещение в г. Минске, ул. Игоря Лученка 9, торгового назначения. Площадь (63.1) кв.м, (1) этаж, отдельный вход, (2) комнаты, высота потолков h=(3.0) м, собственный санузел. Коммуникации и инженерия: центральные коммуникации, (индивидуальная) вентиляция, мощность Р=(10) кВт. Варианты использования: Магазин, Сфера услуг, общепит, аптека. Покупатель не оплачивает услуги агентства. ОДО «Твоя столицаконсалт», лицензия выд. Минюстом 20.09.2006 № 02240/129, УНП 190285638, договор РУ №7/6а от 30.01.2026

Характеристики

Тип здания
в жилом доме
Название объекта
Торговые
Этаж / этажность
1 / 25
Отдельный вход
Арендуемая площадь
63.1 м 2
Высота потолка
от 3.0 м.
Собственный с/у
+
Парковка

Аренда помещения Минск, Игоря Лученка ул., 9

  • Минск, Игоря Лученка ул., 9
  • 63.1 м2
    общая площадь
  • 73.0 руб./м 2 в мес.
    (от 22 EUR) без НДС (УСН)
Контакты
Получить консультацию по коммерческой недвижимости
В сравнении 0