Личный кабинет
Войти с помощью соцсетей:
Для сброса пароля свяжитесь с менеджером по электронной почте: zenevich@t-s.by
Восстановление пароля
Придумайте новый пароль
Подтвердите новый пароль
Пароль минимум 7 символов. Буквы A-z (мин. одна заглавная) и цифры 0-9.

Описание

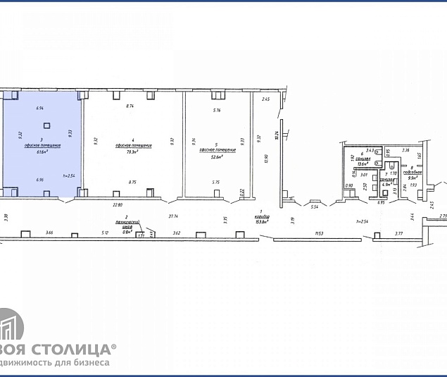
Сдается встроенное помещение в г.Минск, Толбухина ул., 2. Недалеко находятся станция метро Парк Челюскинцев. Встроенное помещение (Офис, Сфера услуг, Учебный центр,) площадью 61,6.кв., находится на 1 этаже (БЦ). Коммуникации и инженерия: отопление, электричество, вода, оптоволокно. ОДО «Твоя столицаконсалт», лицензия выд. Минюстом 20.09.2006 № 02240/129, УНП 190285638, договор РУ №59/2а от 29.03.2022

Характеристики

Тип здания
БЦ
Название объекта
Офис
Этаж / этажность
1 / 5
Отдельный вход
Отделка
с отделкой
Арендуемая площадь
61.6 м 2
Высота потолка
от 2.7 м.
Парковка

Аренда помещения Минск, Толбухина ул., 2

  • Минск, Толбухина ул., 2
  • Парк Челюскинцев
  • 61.6 м2
    общая площадь
  • 37.0 руб./м 2 в мес.
    (от 11 EUR) с НДС
Контакты
Получить консультацию по коммерческой недвижимости
В сравнении 0