Личный кабинет
Войти с помощью соцсетей:
Для сброса пароля свяжитесь с менеджером по электронной почте: zenevich@t-s.by
Восстановление пароля
Придумайте новый пароль
Подтвердите новый пароль
Пароль минимум 7 символов. Буквы A-z (мин. одна заглавная) и цифры 0-9.
Объект реализован

Описание

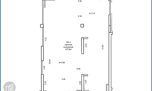
Сдается встроенное помещение в г.Минск, пр-т Независимости,185, назначение торговое, первый этаж жилого дома, площадь 44,5 кв.м., выделен торговый зал, служебное помещение, сан.узел, с отделкой (на полу плитка, стены окрашены, потолок окрашен), кондиционер. Варианты использования: аптека, банк, детский центр, магазин, офис, парикмахерская, стрит ритейл, сфера услуг, учебный центр. Удобное транспортное сообщение, рядом остановки общественного транспорта, ст. метро «Уручье» в пешеходной доступности. Арендатор не оплачивает услуги риэлтерской организации. ОДО «Твоя столицаконсалт», лицензия выд. Минюстом 20.09.2006 № 02240/129, УНП 190285638, договор РУ №114/2а от 16.05.2022

Характеристики

Тип здания
в жилом доме
Название объекта
Торговые
Этаж / этажность
1 / 14
Отдельный вход
Арендуемая площадь
44.5 м 2
Собственный с/у
+

Аренда помещения Минск, Независимости просп., 185

  • Минск, Независимости просп., 185
  • Уручье
  • 44.5 м2
    общая площадь
  • 51 руб./м 2 в мес.
    (от 15 EUR) без НДС (физ.лицо)
Получить консультацию по коммерческой недвижимости
В сравнении 0