Личный кабинет
Войти с помощью соцсетей:
Для сброса пароля свяжитесь с менеджером по электронной почте: zenevich@t-s.by
Восстановление пароля
Придумайте новый пароль
Подтвердите новый пароль
Пароль минимум 7 символов. Буквы A-z (мин. одна заглавная) и цифры 0-9.

Описание

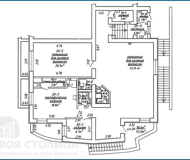
Сдается встроенное помещение в г.Минск, ул. Восточная,39, назначение многофункциональное, цокольный этаж жилого дома, площадь 141 кв.м., зал 67,8 кв.м, тамбур, кабинеты, душевая, сан.узел, с отделкой (на полу плитка, стены окрашены, потолок типа армстронг), разведена компьютерная сеть, телефония, кондиционирование, центральные коммуникации, на входе установлены ролеты. Рядом размещаются торговые объекты, банки, общепит. Варианты использования: магазин, шоу-рум, офис, страховые услуги, учебный класс, сфера услуг. Удобное транспортное сообщение, рядом остановки общественного транспорта, ближайшее метро ст. «Академия наук". Арендатор не оплачивает услуги риэлтерской организации. ОДО «Твоя столицаконсалт», лицензия выд. Минюстом 20.09.2006 № 02240/129, УНП 190285638, договор РУ №42/6а от 02.07.2025

Характеристики

Тип здания
в жилом доме
Название объекта
Сфера услуг
Этаж / этажность
Цокольный / 10
Отдельный вход
Отделка
с отделкой
Арендуемая площадь
141 м 2
Высота потолка
от 2.7 м.
Собственный с/у
+

Аренда помещения Минск, Восточная ул., 39

  • Минск, Восточная ул., 39
  • Академия наук
  • 141 м2
    общая площадь
  • 24.0 руб./м 2 в мес.
    (от 7 EUR) без НДС (физ.лицо)
Контакты
Получить консультацию по коммерческой недвижимости
В сравнении 0