09.23

право (7).png
Личный кабинет
Войти с помощью соцсетей:
Для сброса пароля свяжитесь с менеджером по электронной почте: zenevich@t-s.by
Восстановление пароля
Придумайте новый пароль
Подтвердите новый пароль
Пароль минимум 7 символов. Буквы A-z (мин. одна заглавная) и цифры 0-9.
eye
0 просмотр
Обновлен 17.02.2026

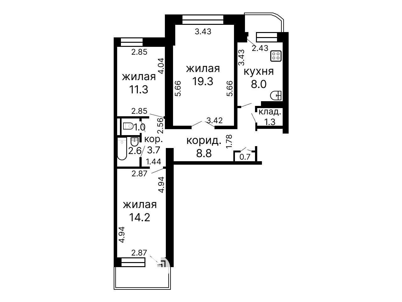
Продажа 3-комнатной квартиры, 70.9м2, 6 этаж

Агентство
с ремонтом
Фото объекта
Описание квартиры:
70.9 м2 - общая площадь
44.8 м2 - жилая площадь
74.2 м2 - площадь по СНБ
8 м2 - кухня
Количество комнат: 3
Ремонт: Косметический
Санузел: Раздельный
6 из 9 этажей
Высота потолков: 2.5 м
Балкон или лоджия: 2
О доме:
Тип дома: Стандартная
Год постройки: 1977
Стены: Кирпич

Трехкомнатная квартира в кирпичном доме.

Рациональная планировка: жилые комнаты изолированные, большая кухня 8 кв.м. Окна выходят на противоположные стороны дома, что визуально делает квартиру ещё более просторной и светлой.

Общая площадь квартиры по СНБ 74.2 кв.м., общая площадь - 70.9 кв.м. Комфортный 6 этаж 9-этажного дома.

Квартира в жилом состоянии. Полы в комнатах покрыты паркетом, в коридоре и кухне уложена плитка, а потолки выровнены и побелены. Санузел также отделан плиткой, установлена необходимая сантехника, в т.ч. бойлер. Окна кухни и двух комнат 19.3 кв.м. и 11.3 кв.м. выходят в сторону метро и зеленой зоны (освещено солнцем во второй половине дня), окна комнаты 14.2 кв.м. - во двор (солнце в первой половине дня). В оконных проемах стеклопакеты ПВХ, в т.ч. на лоджии. Встроенная кухня в техникой: варочная газовая панель, духовой шкаф, вытяжка, посудомоечная машина. Межкомнатные двери МДФ. Входная металлическая дверь.

В доме произведена замена лифта.

 Квартира находится в самом востребованном и комфортном районе столицы:

– прекрасное расположение дома для людей, передвигающихся как на личном транспорте, также для людей, которым важно наличие метро, так как в пешей доступности 3 минут две ветки метро зеленая - ст. метро «Юбилейная площадь» и красная ветка – ст. метро «Фрунзенская»;

– развитая инфраструктура. Рядом с домом расположен ТЦ «Корона», магазины, аптеки, фитнес зал, кинотеатры, рестораны и кафе, медицинские центры, школы и гимназии, в нескольких минут поездки находятся крупные торговые центры Минска «Галерея», «Палаццо», «Метрополь», крупнейший бассейн города;

– обустроенная придомовая территория: зеленая зона, детская площадка, множество парковочных мест;

– рядом памятники историко-культурной ценности, места для прогулок и активного отдыха, парки и скверы, набережная реки Свислочь. Живописные виды.

 Объект по достоинству оценят как современные молодые люди с активным образом жизни, так и ценители исторического наследия, сторонники размеренности, жаждущие комфорта. Не упустите шанс стать счастливым обладателем!  Прямая продажа.

Возможно купить в лизинг
logo_bank
Выгодная альтернатива кредитам при покупке квартир на вторичном рынке и готовых новостроек.
Узнайте больше у консультантов Prometr.by
Получить бесплатную консультацию.png
от 13%
60,120 месяцев
Площадь: 70.9 / 44.8 / 8 м2
Этаж: 6 из 9 этаж
Продажа
Агентство :
ООО "ТВОЯ СТОЛИЦА"
УНП: 101136973
Лицензия: № 02240/15 от 17.02.2005 г
Договор: 1243/13 от 16.12.2025
Похожие предложения
Фото объекта 1
Агентство
с ремонтом
eye 13
16.02.2026
Минск, Минская область, Кунцевщина ул.., 4
63.5 / 44 / 7.2 м2
4 этаж
Фото объекта 1
Агентство
с ремонтом
eye 7
13.02.2026
Минск, Минская область, Харьковская ул.., 58, метро Молодежная
89.5 / 50.1 / 11.5 м2
3 этаж
Фото объекта 1
Агентство
с ремонтом
eye 32
09.02.2026
Минск, Минская область, Независимости просп.., 88, метро Московская
51.3 / 43.8 / 1 м2
9 этаж
Фото объекта 1
Агентство
с ремонтом
eye 45
05.02.2026
Минск, Минская область, Гуртьева ул.., 12
51.1 / 46.8 / 23.1 м2
1 этаж
Фото объекта 1
Агентство
с ремонтом
eye 42
04.02.2026
Минск, Минская область, 50 лет Победы ул.., 20, метро Уручье
82 / 45 / 13.2 м2
7 этаж
Фото объекта 1
Агентство
с ремонтом
eye 39
03.02.2026
Минск, Минская область, Филимонова ул.., 45
64.2 / 38.7 / 9.3 м2
8 этаж
Фото объекта 1
Агентство
с ремонтом
eye 52
02.02.2026
Марьина Горка, Минская область, Горького ул.., 25
67.9 / 36.7 / 8.8 м2
1 этаж
Фото объекта 1
Агентство
с ремонтом
eye 44
31.01.2026
Минск, Минская область, Асаналиева ул.., 20, 2
69.37 / 44.79 / 7.13 м2
2 этаж
Фото объекта 1
Агентство
с ремонтом
eye 50
30.01.2026
Минск, Минская область, Гамарника ул.., 26
62.36 / 40.5 / 8.2 м2
5 этаж
Фото объекта 1
Агентство
с ремонтом
eye 37
29.01.2026
Минск, Минская область, Каховская ул.., 58
60.66 / 44.56 / 6.2 м2
1 этаж
Фото объекта 1
Агентство
с ремонтом
eye 39
29.01.2026
Фаниполь, Минская область, Коласа ул.., 8
70.5 / 53.7 / 7.6 м2
3 этаж
Фото объекта 1
Агентство
с ремонтом
eye 38
26.01.2026
Минск, Минская область, Дроздовича ул.., 4
73.2 / 43.4 / 9.3 м2
8 этаж
Фото объекта 1
Агентство
с ремонтом
eye 65
19.01.2026
Минск, Минская область, Рокоссовского просп.., 71
50.23 / 34.01 / 6.13 м2
5 этаж
Фото объекта 1
Агентство
с ремонтом
eye 60
15.01.2026
Минск, Минская область, Жореса Алфёрова ул.., 12
56 / 49.6 / 1 м2
25 этаж
Купить квартиру в Минске в новостройке: список предложений
Добавить объявление