09.23

право (7).png
Личный кабинет
Войти с помощью соцсетей:
Для сброса пароля свяжитесь с менеджером по электронной почте: zenevich@t-s.by
Восстановление пароля
Придумайте новый пароль
Подтвердите новый пароль
Пароль минимум 7 символов. Буквы A-z (мин. одна заглавная) и цифры 0-9.
eye
0 просмотр
Обновлен 26.11.2025

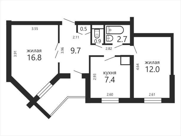
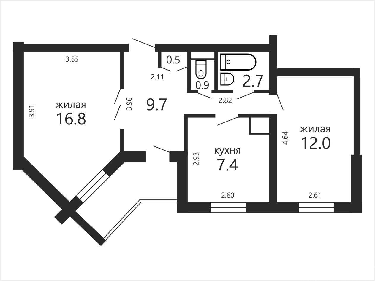
Продажа 2-комнатной квартиры, 53м2, 2 этаж

Агентство
с ремонтом
Фото объекта
Описание квартиры:
53 м2 - общая площадь
29 м2 - жилая площадь
7.4 м2 - кухня
Количество комнат: 2
Ремонт: Дизайнерский
Санузел: Раздельный
2 из 9 этажей
Балкон или лоджия: 1
О доме:
Тип дома: Стандартная
Год постройки: 1997
Стены: Кирпич

2-комнатная квартира с ремонтом на ул. Пономаренко, 52 (Фрунзенский район)

Кирпичный дом, 1997 г. постройки | 2 этаж из 9

  • Площадь по СНБ — 53 м²
  • Общая площадь — 50 м²
  • Жилая — 29 м²
  • Кухня — 7.4 м²

Квартира отлично подходит для инвестиций или проживания молодой семьи.

Дом расположен в зелёной зоне рядом с парковой аллеей «940-летия Минска» и лесопарком «Медвежино».

Преимущества кирпичного дома:

  • Теплоизоляция — кирпич хорошо сохраняет тепло зимой и прохладу летом
  • Шумоизоляция — стены из кирпича обеспечивают высокий уровень звукоизоляции
  • Надёжность и долговечность — кирпичные дома служат десятилетиями, устойчивы к влаге и перепадам температуры
  • Пожаробезопасность — кирпич не горит и не поддерживает горение
  • Экологичность — натуральный материал, безопасный для здоровья
  • Микроклимат — в кирпичных домах комфортная влажность и циркуляция воздуха

Инфраструктура:

В шаговой доступности — два детских сада, школа, музыкальная школа, магазины, аптека, строительный супермаркет, кафе, почта, банки.

Удобное транспортное сообщение: рядом автобусные остановки, до метро «Спортивная» — 10 минут пешком.

Идеальное сочетание природы и городской инфраструктуры.

Прямая продажа.

Возможно купить в лизинг
logo_bank
Выгодная альтернатива кредитам при покупке квартир на вторичном рынке и готовых новостроек.
Узнайте больше у консультантов Prometr.by
Получить бесплатную консультацию.png
от 13%
60,120 месяцев
Площадь: 53 / 29 / 7.4 м2
Этаж: 2 из 9 этаж
Продажа
Агентство :
ООО "ТВОЯ СТОЛИЦА"
УНП: 101136973
Лицензия: № 02240/15 от 17.02.2005 г
Договор: 1056/13 от 31.10.2025
Похожие предложения
Фото объекта 1
Агентство
с ремонтом
eye 21
03.12.2025
Минск, Минская область, Победителей просп.., 51, 1
55.8 / 31.6 / 7.9 м2
7 этаж
Фото объекта 1
Агентство
с ремонтом
eye 24
03.12.2025
Минск, Минская область, Рокоссовского просп.., 51
37.8 / 23.3 / 6 м2
1 этаж
Фото объекта 1
Агентство
с ремонтом
eye 26
01.12.2025
городской поселок Мачулищи, Минская область, Молодежная ул.., 12
61.3 / 38.5 / 7.5 м2
1 этаж
Фото объекта 1
Агентство
с ремонтом
eye 25
01.12.2025
Минск, Минская область, Чкалова ул.., 22
42.4 / 26.4 / 6.5 м2
5 этаж
Фото объекта 1
Агентство
с ремонтом
eye 26
28.11.2025
Минск, Минская область, Кедышко ул.., 13, метро Парк Челюскинцев
44.2 / 32.8 / 5.8 м2
3 этаж
Фото объекта 1
Агентство
с ремонтом
eye 34
27.11.2025
Минск, Минская область, Кирова ул.., 3
60 / 32.09 / 10.57 м2
5 этаж
Фото объекта 1
Агентство
с ремонтом
eye 31
26.11.2025
Жодино, Минская область, Ленина просп.., 16
43.2 / 25 / 6.9 м2
8 этаж
Фото объекта 1
Агентство
с ремонтом
eye 37
26.11.2025
Минск, Минская область, Рокоссовского просп.., 130
46.9 / 27.55 / 7.11 м2
5 этаж
Фото объекта 1
Агентство
с ремонтом
eye 51
25.11.2025
Минск, Минская область, Лобанка ул.., 75, метро Каменная горка
52.5 / 29 / 8.9 м2
6 этаж
Фото объекта 1
Агентство
с ремонтом
eye 37
24.11.2025
Минск, Минская область, Волгоградская ул.., 27
43.2 / 26.7 / 5.8 м2
4 этаж
Фото объекта 1
Агентство
с ремонтом
eye 25
24.11.2025
Минск, Минская область, Багратиона ул.., 69
57.7 / 30.1 / 9 м2
7 этаж
Фото объекта 1
Собственник
eye 57
23.11.2025
Минск, Макаенка ул.., 12д
47 / 45 / 2 м2
23 этаж
Фото объекта 1
Агентство
с ремонтом
eye 18
22.11.2025
Фаниполь, Минская область, Коласа ул.., 1
49.4 / 28.6 / 8.3 м2
4 этаж
Фото объекта 1
Агентство
с ремонтом
eye 32
22.11.2025
Минск, Минская область, Шугаева ул.., 17, 1, метро Уручье
47 / 28.6 / 7.2 м2
9 этаж
Фото объекта 1
Агентство
с ремонтом
eye 47
21.11.2025
Минск, Минская область, Ольшевского ул.., 37, 2
44.9 / 30 / 6.3 м2
5 этаж
Фото объекта 1
Агентство
с ремонтом
eye 50
21.11.2025
Минск, Минская область, Рокоссовского просп.., 85
47.3 / 27.88 / 7.25 м2
5 этаж
Фото объекта 1
Агентство
с ремонтом
eye 38
21.11.2025
агрогородок Михановичи, Минская область, Привокзальная ул.., 3
43.3 / 25.2 / 7.7 м2
2 этаж
Купить квартиру в Минске в новостройке: список предложений
Добавить объявление