09.23

право (7).png
Личный кабинет
Войти с помощью соцсетей:
Для сброса пароля свяжитесь с менеджером по электронной почте: zenevich@t-s.by
Восстановление пароля
Придумайте новый пароль
Подтвердите новый пароль
Пароль минимум 7 символов. Буквы A-z (мин. одна заглавная) и цифры 0-9.
eye
0 просмотр
Обновлен 03.04.2026

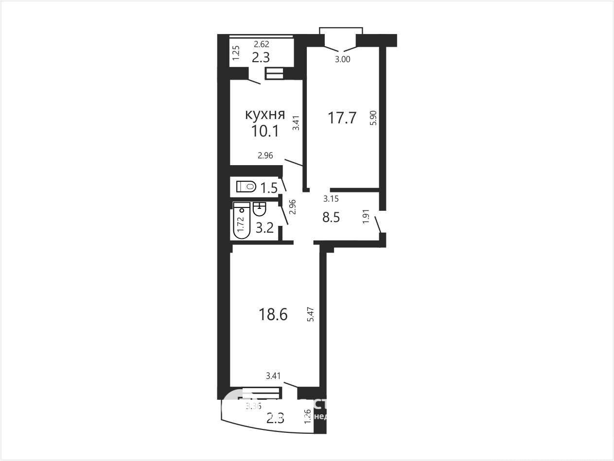
Продажа 2-комнатной квартиры, 59.7м2, 5 этаж

Агентство
Фото объекта
Описание квартиры:
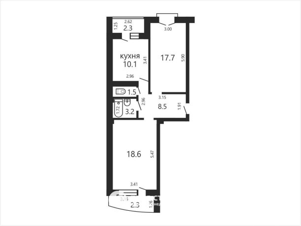
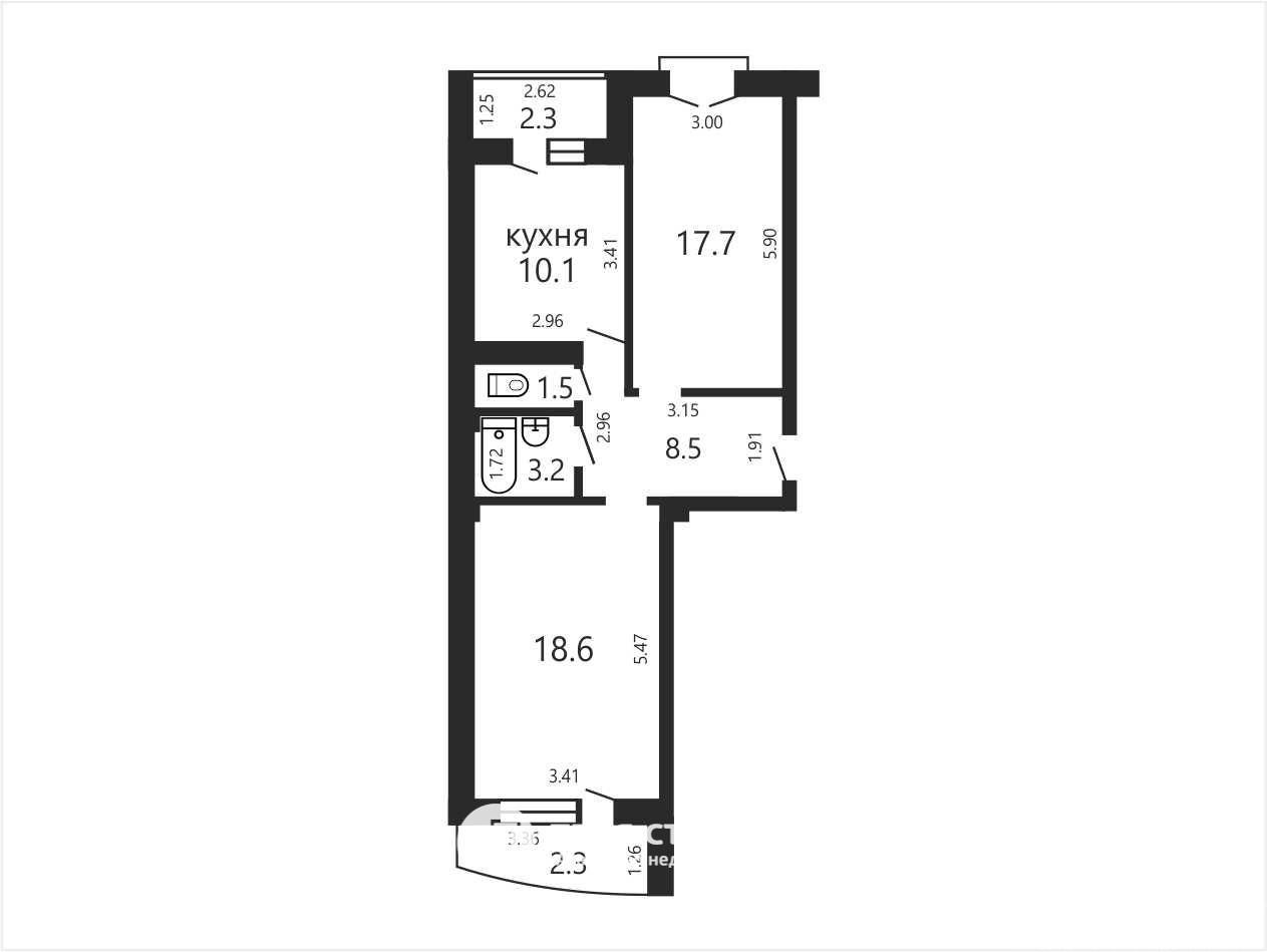
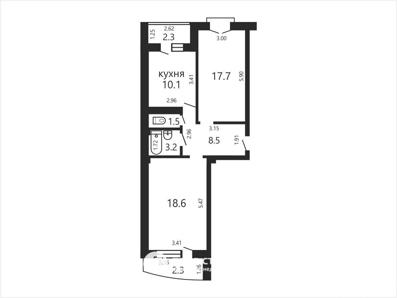
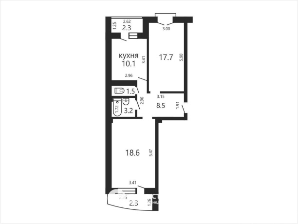
59.7 м2 - общая площадь
36.3 м2 - жилая площадь
64.3 м2 - площадь по СНБ
10.1 м2 - кухня
Количество комнат: 2
Ремонт: Без ремонта
Санузел: Раздельный
5 из 5 этажей
Высота потолков: 2.51 м
Балкон или лоджия: 2
О доме:
Тип дома: Современная непанель
Год постройки: 2014
Стены: Каркасно блочные
Продаётся уютная 2-комнатная квартира в новостройке!

Колодищи, ул. Геофизика, 26А

Характеристики:

  • Материал стен: каркасно-блочный
  • Год постройки: 2014
  • Этаж: 5 из 5
  • Площадь по СНБ — 64.3 м²
  • Общая — 59.7 м²
  • Жилая — 36.3 м²
  • Кухня — 10.1 м²
  • 2 застеклённые лоджии

Планировка — функциональная и удобная, идеально подойдёт как для семьи, так и для пары.

Инфраструктура и окружение:
  • Отличное транспортное сообщение: до метро "Уручье" — всего 12–15 минут на общественном транспорте, который ходит каждые 5–8 минут.
  • В шаговой доступности:
  • Евроопт, Белмаркет, Мила, Магия, торговый ряд, аптеки, банки, парикмахерские
  • Рядом — поликлиника
Комфорт и природа:
  • Чистая, зелёная зона — наслаждайтесь свежим воздухом каждый день
  • Артезианская вода
  • Велодорожки
  • Достаточное количество парковочных мест
  • Чистый и аккуратный подъезд

Прямая продажа.

Купить или продать квартиру в Минске - легко и выгодно вместе с агентством недвижимости " Твоя столица"! Получите бесплатную консультацию покупке, продаже и обмену квартиры в Минске у опытных риэлтеров. Для Вас - актуальная база жилья с ценами, фото, планировками и услуги продажи квартир. Проконсультируем по алгоритму сделки, по необходимым документам!, Приходите на бесплатную консультацию риэлтера для покупки. Наш офис находится по адресу - Минск, Кирова, 8

Возможно купить в лизинг
logo_bank
Выгодная альтернатива кредитам при покупке квартир на вторичном рынке и готовых новостроек.
Узнайте больше у консультантов Prometr.by
Получить бесплатную консультацию.png
от 13%
60,120 месяцев
Площадь: 59.7 / 36.3 / 10.1 м2
Этаж: 5 из 5 этаж
Продажа
Агентство :
ООО "ТВОЯ СТОЛИЦА"
УНП: 101136973
Лицензия: № 02240/15 от 17.02.2005 г
Договор: 900/13 от 25.09.2025
Похожие предложения
Фото объекта 1
Агентство
с ремонтом
eye 6
10.04.2026
агрогородок Михановичи, Минская область, Советская ул.., 31
55.5 / 15.1 / 9.5 м2
1 этаж
Фото объекта 1
Агентство
с ремонтом
eye 4
10.04.2026
агрогородок Михановичи, Минская область, Советская ул.., 31
55.5 / 15.1 / 9.5 м2
1 этаж
Фото объекта
Агентство
с ремонтом
eye 6
09.04.2026
Минск, Минская область, Люксембург ул.., 177, метро Грушевка
43.3 / 32.8 / 5.9 м2
3 этаж
Фото объекта 1
Собственник
с ремонтом
eye 21
07.04.2026
Минск, 18
46 / 32 / 6 м2
3 этаж
Фото объекта 1
Агентство
с ремонтом
eye 29
06.04.2026
Минск, Минская область, Лобанка ул.., 62, метро Каменная горка
52.4 / 30.2 / 9 м2
5 этаж
Фото объекта 1
Агентство
с ремонтом
eye 47
06.04.2026
Минск, Минская область, Васнецова ул.., 5, метро Партизанская
44.2 / 30.6 / 5.7 м2
4 этаж
Фото объекта 1
Агентство
с ремонтом
eye 9
05.04.2026
Минск, Минская область, Бядули ул.., 8, метро Площадь Победы
50.3 / 46.2 / 1 м2
3 этаж
Фото объекта 1
Агентство
с ремонтом
eye 5
03.04.2026
Минск, Минская область, Гастелло ул.., 8
50.5 / 37.5 / 8.7 м2
10 этаж
Фото объекта 1
Агентство
с ремонтом
eye 41
03.04.2026
Минск, Минская область, Виталия Цвирко ул.., 65
39.8 / 35.2 / 1 м2
5 этаж
Фото объекта 1
Агентство
с ремонтом
eye 51
01.04.2026
деревня Боровляны, Минская область, Первомайская ул.., 50
53.5 / 29.4 / 8.8 м2
9 этаж
Фото объекта 1
Агентство
с ремонтом
eye 37
01.04.2026
Минск, Минская область, Аэродромная ул.., 28
53.8 / 47.7 / 1 м2
22 этаж
Фото объекта 1
Агентство
с ремонтом
eye 36
31.03.2026
Минск, Минская область, Ильянская ул.., 10
72.3 / 38.7 / 12.1 м2
7 этаж
Купить квартиру в Минске в новостройке: список предложений
Добавить объявление