09.23

право (7).png
Личный кабинет
Войти с помощью соцсетей:
Для сброса пароля свяжитесь с менеджером по электронной почте: zenevich@t-s.by
Восстановление пароля
Придумайте новый пароль
Подтвердите новый пароль
Пароль минимум 7 символов. Буквы A-z (мин. одна заглавная) и цифры 0-9.
eye
0 просмотр
Обновлен 05.12.2025

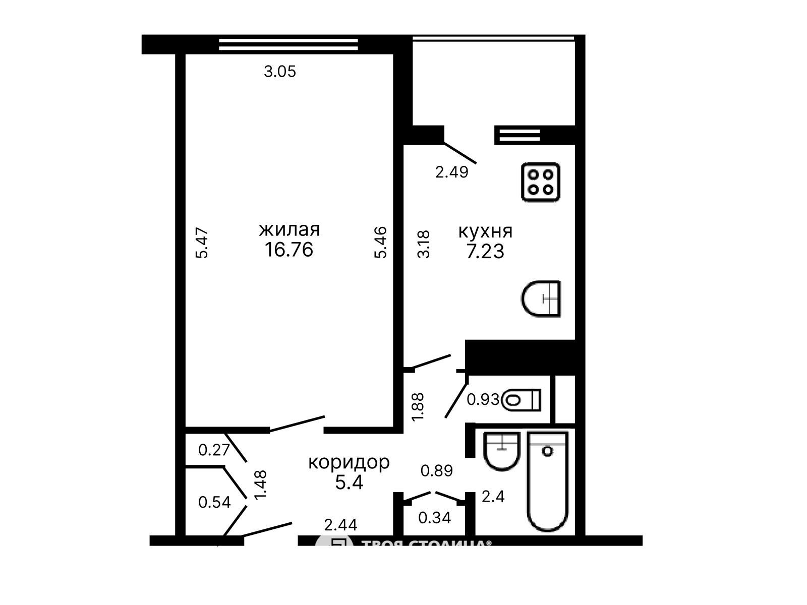
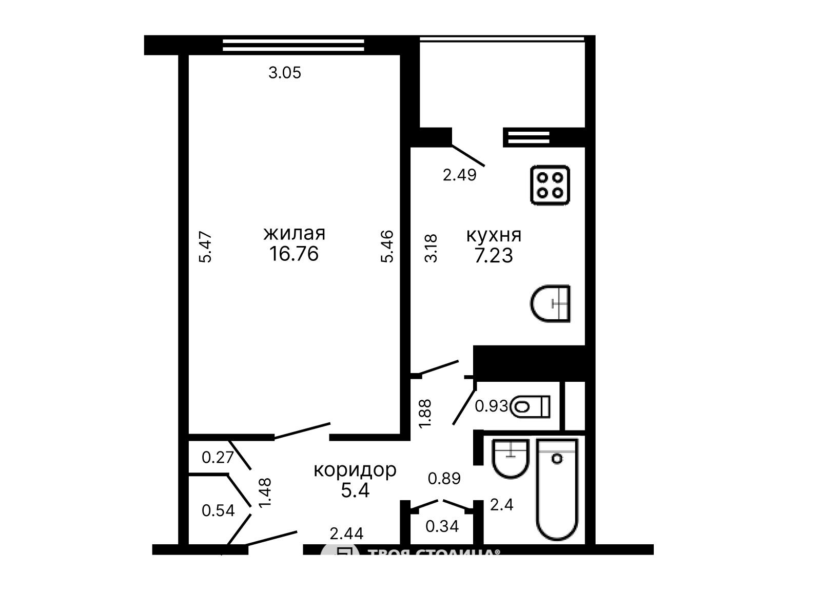
Продажа 1-комнатной квартиры, 33.87м2, 6 этаж

201 653.0 BYN
(69 000 USD)
Описание квартиры:
33.87 м2 - общая площадь
16.76 м2 - жилая площадь
35.87 м2 - площадь по СНБ
7.23 м2 - кухня
Количество комнат: 1
Ремонт: Косметический
Санузел: Раздельный
6 из 9 этажей
Высота потолков: 2.54 м
Балкон или лоджия: 1
О доме:
Тип дома: Стандартная
Год постройки: 1984
Стены: Панель

Предлагаем к продаже однокомнатную квартиру в тихом и зеленом микрорайоне города. Квартира находится в хорошем состоянии.

Особенности квартиры:

·Функциональная планировка, из кухни выход на застекленную лоджию.

·Ремонт: в санузлах уложена  плитка, в жилых помещениях напольное покрытие линолеум.

·Окна: установлены современные стеклопакеты ПВХ в квартире и на лоджии, обеспечивающие тепло и тишину.

·Кухня: укомплектована  встроенной мебелью, выход на застеклённую лоджию.

·Система хранения: в квартире уже есть два удобных шкафа-купе, что решает вопрос с хранением вещей.

·Безопасность: входная металлическая дверь.

Расположение и инфраструктура:

Район отличается спокойной атмосферой и обилием зелени. Рядом с домом — зеленая зона, что гарантирует чистый воздух и приятные прогулки.

В шаговой доступности вся необходимая инфраструктура: детские сады, школа и магазины. Станция метро находится всего в 3 остановках на общественном транспорте, что делает поездки по городу быстрыми и удобными.

Идеальный вариант для первого собственного жилья или выгодной инвестиции!

Прямая продажа

Поможем выгодно продать вашу квартиру для покупки этой. Расширенные консультации по покупке, продаже и обмену вашей квартиры на этот объект можно получить в Центральном офисе «Твоя столица по адресу г. Минск, ул. Кирова, 8

Возможно купить в лизинг
logo_bank
Выгодная альтернатива кредитам при покупке квартир на вторичном рынке и готовых новостроек.
Узнайте больше у консультантов Prometr.by
Получить бесплатную консультацию.png
от 13%
60,120 месяцев
Площадь: 33.87 / 16.76 / 7.23 м2
Этаж: 6 из 9 этаж
Цена:
201 653.0 BYN (69 000 USD)
Продажа
Агентство :
ООО "ТВОЯ СТОЛИЦА"
УНП: 101136973
Лицензия: № 02240/15 от 17.02.2005 г
Договор: 910/13 от 27.09.2025
Похожие предложения
Фото объекта 1
Агентство
с ремонтом
eye 18
04.12.2025
Минск, Минская область, Леонида Щемелёва ул.., 28
26.2 / 19.7 / 1 м2
11 этаж
Фото объекта 1
Агентство
с ремонтом
eye 57
25.11.2025
Минск, Минская область, Тикоцкого ул.., 16
32.9 / 17.1 / 7.2 м2
3 этаж
Фото объекта
Агентство
с ремонтом
eye 48
11.11.2025
Минск, Минская область, Столетова ул.., 2, метро Академия наук
33.2 / 17.1 / 7.1 м2
7 этаж
Фото объекта 1
Агентство
с ремонтом
eye 120
24.10.2025
Фаниполь, Минская область, Комсомольская ул.., 22, 2
43.2 / 17.3 / 8.8 м2
5 этаж
Фото объекта 1
Агентство
с ремонтом
eye 131
23.10.2025
Минск, Минская область, Райниса ул.., 1, А
37.6 / 16.8 / 7.1 м2
8 этаж
Фото объекта 1
Агентство
с ремонтом
eye 162
21.10.2025
Минск, Минская область, Якубовского ул.., 54
35.28 / 17.17 / 7.18 м2
2 этаж
Фото объекта 1
Агентство
с ремонтом
eye 165
17.10.2025
Минск, Минская область, Брилевская ул.., 12, метро Институт культуры
31.11 / 18.01 / 5.89 м2
1 этаж
Фото объекта 1
Собственник
eye 198
14.10.2025
Минск, Одоевского ул.., 42
35 / 18 / 8 м2
2 этаж
Фото объекта 1
Агентство
с ремонтом
eye 165
13.10.2025
Минск, Минская область, Багратиона ул.., 67
40.5 / 17.8 / 9 м2
9 этаж
Фото объекта 1
Агентство
с ремонтом
eye 145
02.10.2025
Минск, Минская область, Червякова ул.., 25
36.2 / 18.1 / 6.3 м2
5 этаж
Фото объекта 1
Агентство
с ремонтом
eye 270
29.09.2025
Минск, Минская область, Леонида Щемелёва ул.., 30
30.4 / 24.4 / 1 м2
2 этаж
Фото объекта 1
Агентство
с ремонтом
eye 287
18.09.2025
Минск, Минская область, Рафиева ул.., 78, метро Малиновка
35 / 17.1 / 7 м2
2 этаж
Фото объекта 1
Собственник
eye 315
30.07.2025
Минск, Минская область, Якубовского ул.., 36
33.60 / 16.80 / 7.10 м2
5 этаж
Фото объекта 1
Агентство
с ремонтом
eye 258
22.07.2025
Минск, Минская область, Лейтенанта Кижеватова ул.., 3, Б
29.2 / 22.7 / 6.5 м2
13 этаж
Фото объекта 1
Агентство
с ремонтом
eye 46
14.05.2025
Минск, Минская область, Одинцова ул.., 27, метро Каменная горка
33.42 / 17.29 / 7.09 м2
9 этаж
Купить квартиру в Минске в новостройке: список предложений
Добавить объявление